物件コード | 00238-200036 | ||
---|---|---|---|
物件名 | Lega春日山MODEL HOUSU | ||
交通 | 駅:妙高はねうまライン 春日山駅から徒歩11分、バス:春日山駅入口から徒歩4分 | ||
物件所在地 | 新潟県上越市春日山町3丁目地内 | ||
物件種別 | 新築一戸建て | ||
構造 | 木造 | 階建 | 地上2階建 |
建ぺい率/容積率 | 60%/200% | ||
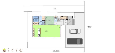
建物面積 | 1階 62.11㎡/ 2階 56.39㎡/ 計 118.5㎡ /35.84坪 | ||
土地面積 | 185.29㎡ /56.05坪 | ||
築年月 | 2025年10月完成予定 | ||
入居時期 | 即入居可 | ||
用途地域 | 準工業地域 | 地目 | 宅地 |
都市計画 | 市街化区域 | 学校区 | 高志小学校(441m)・春日中学校(850m) |
形状 | 間口 10m × 奥行 8m | 道路 | 東側6.5M上越市道 |
私道 | - |
所在階/階数 | - | 号室 | - |
---|---|---|---|
販売価格 | 26,800,000円 | 方位 | 東 |
間取り | 4LDK | ||
専有面積 | - | バルコニー面積 | - |
その他面積 | - | 駐車場 | - |
管理費 | - | 修繕積立金 | - |
現況 | 空家 | ||
仲介手数料 | なし | ||
利用制限 | - | ||
設備 | 整形地、前面道路6m以上、日当り良好、閑静な住宅街、LDK15畳以上、駐車場3台以上、TVインターホン、システムキッチン、IHクッキングヒーター、食器洗浄乾燥機、追いだき機能付き、バス1坪以上、シャワー付き洗面台、エアコン、都市ガス、上水道、下水道、ウォークインクローゼット、シューズインクローゼット、即引き渡し可能 | ||
取引態様 | 売主 | ||
備考 | - | ||
情報登録日 | 2025/09/29 | 次回更新予定日 | 2025/10/16 |
取引条件有効期限 | 2026/01/06 |
![]() |
![]() |
![]() |
![]() |
TEL: | 025-524-6441 |
---|---|
所在地: | 新潟県上越市木田1-8-11 |
交通: | 妙高はねうまライン春日山駅徒歩10分 |
営業時間: | 平日9:00~18:30 土9:00~18:00/定休日:日曜、祝日 |
免許番号: | 新潟県知事(15)第861号 |
所属団体名: | 公社 新潟県宅地建物取引協会 上越支部 |
取引態様: | 売主 |