物件掲載企業数:301|賃貸物件:3,261件|売買物件:3,251件|今週の登録物件:296
閲覧中のブラウザ(インターネットエクスプローラー)は非推奨ブラウザです。
物件が正しく表示されなかったり、正しく検索されない場合があります。最新のブラウザ(Google Chrome・Edgeなど)にてご利用お願いいたします。
  

新潟県上越市春日新田1丁目3-49 新築一戸建て 3LDK 27,800,000円の物件情報

新築!平家の建売住宅

物件名/所在地 詳細 価格
【新築】春日新田1丁目 平家建
新潟県上越市春日新田1丁目3-49
  • 土地面積
    :297.53㎡ /90坪
  • 建物面積
    :67.49㎡ /20.41坪
  • 間取り
    :3LDK
  • 築年月
    :2025年10月
27,800,000
  • 【新築】春日新田1丁目 平家建
    株式会社 お不動さん
  • この物件を問い合わせる/無料
  • TEL: 025-520-8197

物件画像

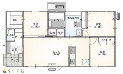
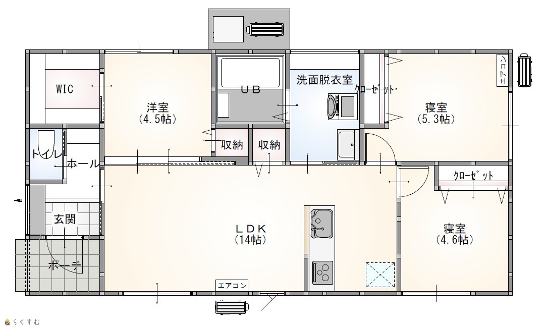
外観 間取り
物件画像
※画像クリックで拡大表示
外観
物件画像
※画像クリックで拡大表示
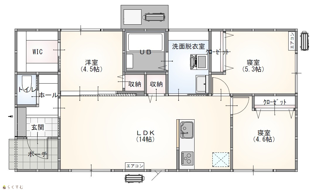
間取り
詳細画像


物件概要

☆即入居可能☆
物件コード 00200-200281
物件名 【新築】春日新田1丁目 平家建
交通 駅:信越線 直江津駅から徒歩19分、バス:春日新田東から徒歩3分
物件所在地 新潟県上越市春日新田1丁目3-49
物件種別 新築一戸建て
構造 木造 階建 地上1階建
建ぺい率/容積率 80%/300%
建物面積 1階 67.49㎡/ 計 67.49㎡ /20.41坪
土地面積 297.53㎡ /90坪
築年月 2025年10月(築7ヶ月)
入居(引き渡し)時期 随時入居(引き渡し)可
用途地域 近隣商業地域 地目 宅地  (現状:宅地)
都市計画 市街化区域 学校区 春日新田小学校(612m)・直江津東中学校(1,340m)
形状 間口 9.697m × 奥行 30.68m 道路 南側/県道/幅員12.2m/除雪路線
私道 - その他の制限 景観法・盛土等規制法・都市再生特別措置法・水防法・津波防災に関する法律
  • 【新築】春日新田1丁目 平家建
    株式会社 お不動さん
  • この物件を問い合わせる/無料
  • TEL: 025-520-8197

物件詳細情報

所在階/階数 1階/1階 号室 -
販売価格 27,800,000円 方位
間取り 3LDK (洋室:4.5、5.3、4.6)
LDK14
専有面積 - バルコニー面積 -
その他面積 3.3㎡ /0.99坪  ウオークインクローゼット 駐車場 -
管理費 - 修繕積立金 -
現況 空家
仲介手数料 983,400円
契約印紙代 10,000円
利用制限 -
設備 整形地、前面道路6m以上、日当り良好、BELS/省エネ基準適合認定建物、建物確認・完了検査済証あり、駐車場2台以上、南向き、TVインターホン、複層ガラス、ディンプルキー、システムキッチン、IHクッキングヒーター、追いだき機能付き、バス1坪以上、温水洗浄便座、シャワー付き洗面台、エアコン、オール電化、省エネ給湯、高気密高断熱住宅、上水道、下水道、電気、ウォークインクローゼット、全居室収納あり、照明器具付き、即引き渡し可能
取引態様 一般
備考 ・準防火地域
取り扱い会社

株式会社 お不動さん

上越市中央一丁目12番36号

情報登録日 2025/12/23 次回更新予定日 2026/06/05
取引条件有効期限 2026/03/31
  • 【新築】春日新田1丁目 平家建
    株式会社 お不動さん
  • この物件を問い合わせる/無料
  • TEL: 025-520-8197

この物件の地図・周辺情報・行政情報

この物件の周辺情報・行政情報を詳しく見る
【周辺情報】
物件の近くにあるコンビニや銀行・学校など、アイコン付のマップで詳しく表示できます!
【行政情報】
水道料や下水道料・ガス料金など、暮らしに関係のある情報を表示しています。
ローソン 上越川原町店(コンビニ)まで660m
セブン-イレブン 上越下源入店(コンビニ)まで530m
春日山新田西バス停(病院)まで320m
古川内科医院(病院)まで540m
川端内科消化器科医院(病院)まで430m
上越信用金庫 有田支店(銀行)まで240m
第四北越銀行 直江津支店(銀行)まで450m
直江津有田郵便局(郵便局)まで90m
直江津港郵便局(郵便局)まで1000m

※カメラのアイコンがある場合は、マウスをポイントするとその施設の画像がご覧いただけます。


担当取扱い店舗情報

取扱い店舗画像
株式会社 お不動さん
TEL: 025-520-8197
所在地: 上越市中央一丁目12番36号
交通: 直江津駅
営業時間: 8:30~17:30/定休日:日曜・祝日・第2土曜日・第4土曜日
免許番号: 新潟県知事(2)第5449号 この会社の情報を詳しく見る
所属団体名: 公社 新潟県宅地建物取引協会 上越支部
取引態様: 一般
ホームページ: https://ofudousan.amebaownd.com/