| ☆即入居可能☆ | |||
| 物件コード | 00200-200281 | ||
|---|---|---|---|
| 物件名 | 【新築】春日新田1丁目 平家建 | ||
| 交通 | 駅:信越線 直江津駅から徒歩19分、バス:春日新田東から徒歩3分 | ||
| 物件所在地 | 新潟県上越市春日新田1丁目3-49 | ||
| 物件種別 | 新築一戸建て | ||
| 構造 | 木造 | 階建 | 地上1階建 |
| 建ぺい率/容積率 | 80%/300% | ||
| 建物面積 | 1階 67.49㎡/ 計 67.49㎡ /20.41坪 | ||
| 土地面積 | 297.53㎡ /90坪 | ||
| 築年月 | 2025年10月(築7ヶ月) | ||
| 入居時期 | 随時入居(引き渡し)可 | ||
| 用途地域 | 近隣商業地域 | 地目 | 宅地 (現状:宅地) |
| 都市計画 | 市街化区域 | 学校区 | 春日新田小学校(612m)・直江津東中学校(1,340m) |
| 形状 | 間口 9.697m × 奥行 30.68m | 道路 | 南側/県道/幅員12.2m/除雪路線 |
| 私道 | - | ||
| 所在階/階数 | 1階/1階 | 号室 | - |
|---|---|---|---|
| 販売価格 | 27,800,000円 | 方位 | 南 |
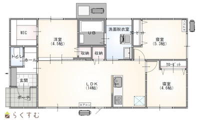
| 間取り |
3LDK (洋室:4.5、5.3、4.6) LDK14 |
||
| 専有面積 | - | バルコニー面積 | - |
| その他面積 | 3.3㎡ /0.99坪 ウオークインクローゼット | 駐車場 | - |
| 管理費 | - | 修繕積立金 | - |
| 現況 | 空家 | ||
| 仲介手数料 | 983,400円 | ||
| 利用制限 | - | ||
| 設備 | 整形地、前面道路6m以上、日当り良好、BELS/省エネ基準適合認定建物、建物確認・完了検査済証あり、駐車場2台以上、南向き、TVインターホン、複層ガラス、ディンプルキー、システムキッチン、IHクッキングヒーター、追いだき機能付き、バス1坪以上、温水洗浄便座、シャワー付き洗面台、エアコン、オール電化、省エネ給湯、高気密高断熱住宅、上水道、下水道、電気、ウォークインクローゼット、全居室収納あり、照明器具付き、即引き渡し可能 | ||
| 取引態様 | 一般 | ||
| 備考 | ・準防火地域 | ||
| 情報登録日 | 2025/12/23 | 次回更新予定日 | 2026/06/05 |
| 取引条件有効期限 | 2026/03/31 | ||
|
|
|
|
| TEL: | 025-520-8197 |
|---|---|
| 所在地: | 上越市中央一丁目12番36号 |
| 交通: | 直江津駅 |
| 営業時間: | 8:30~17:30/定休日:日曜・祝日・第2土曜日・第4土曜日 |
| 免許番号: | 新潟県知事(2)第5449号 |
| 所属団体名: | 公社 新潟県宅地建物取引協会 上越支部 |
| 取引態様: | 一般 |