物件掲載企業数:301|賃貸物件:3,261件|売買物件:3,251件|今週の登録物件:296
閲覧中のブラウザ(インターネットエクスプローラー)は非推奨ブラウザです。
物件が正しく表示されなかったり、正しく検索されない場合があります。最新のブラウザ(Google Chrome・Edgeなど)にてご利用お願いいたします。
  

新潟県長岡市川崎3丁目2191-2 新築一戸建て 3LDK 34,600,000円の物件情報

【仲介手数料不要】30.7坪に「欲しい」がつまった新築住宅

物件名/所在地 詳細 価格
川崎モデルハウス販売
新潟県長岡市川崎3丁目2191-2
  • 土地面積
    :236.63㎡ /71.58坪
  • 建物面積
    :101.7㎡ /30.76坪
  • 間取り
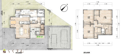
    :3LDK
  • 築年月
    :2025年7月
34,600,000
  • 川崎モデルハウス販売
    株式会社 ハーティーホーム
  • この物件を問い合わせる/無料
  • TEL: 0258-21-3266

物件画像

外観 間取り
物件画像
※画像クリックで拡大表示
外観
物件画像
※画像クリックで拡大表示
間取り
詳細画像


物件概要

「耐震等級3」 「セルロースファイバー断熱」 「C値0.3㎠/㎡」
物件コード 00169-200018
物件名 川崎モデルハウス販売
交通 駅:信越線 長岡駅から徒歩26分、バス:東川崎三叉路から徒歩2分
物件所在地 新潟県長岡市川崎3丁目2191-2
物件種別 新築一戸建て
構造 木造 階建 地上2階建
建ぺい率/容積率 60%/200%
建物面積 1階 52.02㎡/ 2階 49.68㎡/ 計 101.7㎡ /30.76坪
土地面積 236.63㎡ /71.58坪
築年月 2025年7月(築10ヶ月)
入居(引き渡し)時期 相談
用途地域 第2種中高層住居専用地域 地目 宅地
都市計画 市街化区域 学校区 川崎小学校(1,012m)・東北中学校(552m)
形状 間口 23.89m × 奥行 18.3m 道路 市道178号 幅員4.4m
私道 - その他の制限 -
  • 川崎モデルハウス販売
    株式会社 ハーティーホーム
  • この物件を問い合わせる/無料
  • TEL: 0258-21-3266

物件詳細情報

所在階/階数 - 号室 -
販売価格 34,600,000円 方位 南東
間取り 3LDK (洋室:6、6、7.5)
LDK15
専有面積 - バルコニー面積 -
その他面積 - 駐車場 -
管理費 - 修繕積立金 -
現況 -
仲介手数料 なし
利用制限 -
設備 角地、日当り良好、設計住宅性能評価付き、耐震構造、BELS/省エネ基準適合認定建物、瑕疵担保保険付き、建物確認・完了検査済証あり、LDK15畳以上、全室フローリング、駐車場3台以上、南向き、TVインターホン、システムキッチン、IHクッキングヒーター、食器洗浄乾燥機、3口コンロ、追いだき機能付き、バス1坪以上、温水洗浄便座、シャワー付き洗面台、エアコン、24時間換気システム、省エネ給湯、高気密高断熱住宅、都市ガス、上水道、下水道、電気、ウォークインクローゼット、全居室収納あり、シューズインクローゼット、BS端子、照明器具付き
取引態様 売主
備考 ■玄関シューズクローク■食洗機付キッチン■造り付洗面化粧台■トイレ個別手洗■1階サンルーム■パントリー■2台用カーポート+2台 計4台駐車可
取り扱い会社

株式会社 ハーティーホーム

新潟県長岡市三ツ郷屋2丁目1-15

情報登録日 2026/02/05 次回更新予定日 2026/06/05
取引条件有効期限 2025/12/06
  • 川崎モデルハウス販売
    株式会社 ハーティーホーム
  • この物件を問い合わせる/無料
  • TEL: 0258-21-3266

この物件の地図・周辺情報・行政情報

この物件の周辺情報・行政情報を詳しく見る
【周辺情報】
物件の近くにあるコンビニや銀行・学校など、アイコン付のマップで詳しく表示できます!
【行政情報】
水道料や下水道料・ガス料金など、暮らしに関係のある情報を表示しています。

担当取扱い店舗情報

取扱い店舗画像
株式会社 ハーティーホーム
TEL: 0258-21-3266
所在地: 新潟県長岡市三ツ郷屋2丁目1-15
交通:
営業時間: 9:00~18:00/定休日:不定休
免許番号: 新潟県知事(2)第5037号 この会社の情報を詳しく見る
所属団体名: 全日本不動産協会 新潟県本部
取引態様: 売主
ホームページ: http://heartyhome.jp/