物件掲載企業数:299|賃貸物件:3,627件|売買物件:3,333件|今週の登録物件:211
閲覧中のブラウザ(インターネットエクスプローラー)は非推奨ブラウザです。
物件が正しく表示されなかったり、正しく検索されない場合があります。最新のブラウザ(Google Chrome・Edgeなど)にてご利用お願いいたします。
  

長岡市新産4丁目6番地4丁目6番地 投資物件・その他 13,800,000円の物件情報

新産4丁目の事務所・工場・倉庫に最適 建物内外の状態は良好 駐車は建物内4台・屋外3台以上可に付き修理工場などにも有用 融雪用井戸(組合加入条件)で冬季の営業も安心 月額13万円で賃貸借も可です

物件名/所在地 詳細 価格
表面利回り
新産4丁目 売事務所兼倉庫
長岡市新産4丁目6番地4丁目6番地
  • 土地面積
    :168.69㎡ /51.02坪
  • 建ぺい率
    :60%
  • 容積率
    :200%
13,800,000
-
  • 新産4丁目 売事務所兼倉庫
    有限会社 アットホーム
  • この物件を問い合わせる/無料
  • TEL: 0258-37-5450

物件画像

外観 間取り
物件画像
※画像クリックで拡大表示
外観
物件画像
※画像クリックで拡大表示
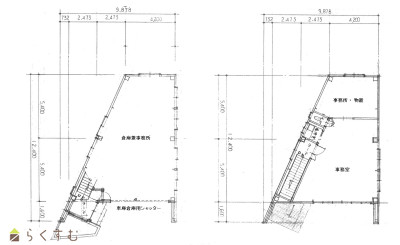
間取り
詳細画像


物件概要

賃貸としてお貸しも出来ます 月額13万円(税込) 敷金3ケ月 その他ご相談下さい
物件コード 00144-200100
物件名 新産4丁目 売事務所兼倉庫
交通 駅:信越線 来迎寺駅から徒歩69分、バス:長峰団地入口から徒歩2分
物件所在地 長岡市新産4丁目6番地4丁目6番地
物件種別 投資物件・その他
物件区分 その他
構造 鉄骨 階建 地上2階建
建ぺい率/容積率 60%/200%
建物面積 1階 73.61㎡/ 2階 72.09㎡/ 計 145.7㎡ /44.07坪
土地面積 168.69㎡ /51.02坪
築年月 1989年1月(築36年)
入居(引き渡し)時期 随時入居(引き渡し)可
用途地域 準工業地域 地目 宅地
都市計画 市街化区域 学校区 才津小学校(1,100m)・西中学校(2,251m)
形状 - 道路 長岡市道9m(融雪・歩道も含めて)に面する
私道 - その他の制限 -
  • 新産4丁目 売事務所兼倉庫
    有限会社 アットホーム
  • この物件を問い合わせる/無料
  • TEL: 0258-37-5450

物件詳細情報

所在階/階数 - 号室 -
販売価格 13,800,000円 方位 -
表面利回り(満室想定時) - 満室想定年収 - (想定月収: - )
現行利回り - 現行年間年収 -
住戸数 -
間取り -
専有面積 - バルコニー面積 -
その他面積 - 駐車場 -
管理費 - 修繕積立金 -
現況 空家
仲介手数料 なし
利用制限 -
設備 駐車場(近隣含む)、公営水道、都市ガス、下水道、事業向け
取引態様 一般
備考 -
取り扱い会社

有限会社 アットホーム

新潟県長岡市西神田町2-5-17

情報登録日 2025/10/12 次回更新予定日 2025/11/09
取引条件有効期限 2025/12/11
  • 新産4丁目 売事務所兼倉庫
    有限会社 アットホーム
  • この物件を問い合わせる/無料
  • TEL: 0258-37-5450

この物件の地図・周辺情報・行政情報

この物件の周辺情報・行政情報を詳しく見る
【周辺情報】
物件の近くにあるコンビニや銀行・学校など、アイコン付のマップで詳しく表示できます!
【行政情報】
水道料や下水道料・ガス料金など、暮らしに関係のある情報を表示しています。

担当取扱い店舗情報

取扱い店舗画像
有限会社 アットホーム
TEL: 0258-37-5450
所在地: 新潟県長岡市西神田町2-5-17
交通: 長岡駅
営業時間: 9:00~18:00/定休日:不定休
免許番号: 新潟県知事(5)第4575号 この会社の情報を詳しく見る
所属団体名: 公益社団法人 全日本不動産協会 新潟県本部
取引態様: 一般
ホームページ: http://www.athome-no1.co.jp/