| 賃貸としてお貸しも出来ます 月額13万円(税込) 敷金3ケ月 その他ご相談下さい | |||
| 物件コード | 00144-200100 | ||
|---|---|---|---|
| 物件名 | 新産4丁目 売事務所兼倉庫 | ||
| 交通 | 駅:信越線 来迎寺駅から徒歩69分、バス:長峰団地入口から徒歩2分 | ||
| 物件所在地 | 長岡市新産4丁目6番地4丁目6番地 | ||
| 物件種別 | 投資物件・その他 | ||
| 物件区分 | その他 | ||
| 構造 | 鉄骨 | 階建 | 地上2階建 |
| 建ぺい率/容積率 | 60%/200% | ||
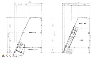
| 建物面積 | 1階 73.61㎡/ 2階 72.09㎡/ 計 145.7㎡ /44.07坪 | ||
| 土地面積 | 168.69㎡ /51.02坪 | ||
| 築年月 | 1989年1月(築36年) | ||
| 入居時期 | 随時入居(引き渡し)可 | ||
| 用途地域 | 準工業地域 | 地目 | 宅地 |
| 都市計画 | 市街化区域 | 学校区 | 才津小学校(1,100m)・西中学校(2,251m) |
| 形状 | - | 道路 | 長岡市道9m(融雪・歩道も含めて)に面する |
| 私道 | - | ||
| 所在階/階数 | - | 号室 | - |
|---|---|---|---|
| 販売価格 | 13,800,000円 | 方位 | - |
| 表面利回り (満室想定時) |
- | 満室想定年収 | - (想定月収: - ) |
| 現行利回り | - | 現行年間年収 | - |
| 住戸数 | - | ||
| 間取り | - | ||
| 専有面積 | - | バルコニー面積 | - |
| その他面積 | - | 駐車場 | - |
| 管理費 | - | 修繕積立金 | - |
| 現況 | 空家 | ||
| 仲介手数料 | なし | ||
| 利用制限 | - | ||
| 設備 | 駐車場(近隣含む)、公営水道、都市ガス、下水道、事業向け | ||
| 取引態様 | 一般 | ||
| 備考 | - | ||
| 情報登録日 | 2025/10/12 | 次回更新予定日 | 2025/11/09 |
| 取引条件有効期限 | 2025/12/11 | ||
|
|
|
|
|
|
| TEL: | 0258-37-5450 |
|---|---|
| 所在地: | 新潟県長岡市西神田町2-5-17 |
| 交通: | 長岡駅 |
| 営業時間: | 9:00~18:00/定休日:不定休 |
| 免許番号: | 新潟県知事(5)第4575号 |
| 所属団体名: | 公益社団法人 全日本不動産協会 新潟県本部 |
| 取引態様: | 一般 |