物件掲載企業数:301|賃貸物件:3,261件|売買物件:3,251件|今週の登録物件:296
閲覧中のブラウザ(インターネットエクスプローラー)は非推奨ブラウザです。
物件が正しく表示されなかったり、正しく検索されない場合があります。最新のブラウザ(Google Chrome・Edgeなど)にてご利用お願いいたします。
  

新潟県長岡市曲新町1丁目4-13 中古一戸建て 4DK 6,600,000円の物件情報

物件名/所在地 詳細 価格
曲新町1丁目 売住宅
新潟県長岡市曲新町1丁目4-13
  • 土地面積
    :149.3㎡ /45.16坪
  • 建物面積
    :106.75㎡ /32.29坪
  • 間取り
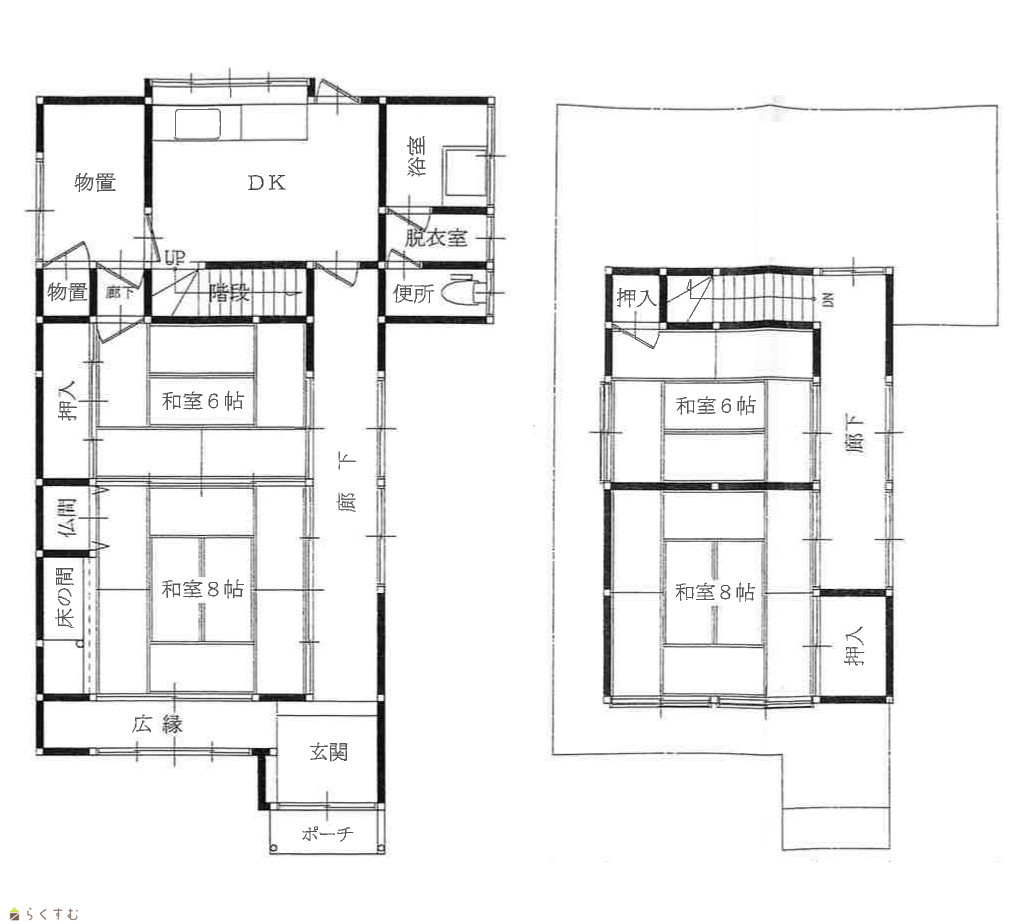
    :4DK
  • 築年月
    :1972年5月
6,600,000
  • 曲新町1丁目 売住宅
    株式会社 棚橋不動産
  • この物件を問い合わせる/無料
  • TEL: 0258-31-1700

物件画像

外観 間取り
物件画像
※画像クリックで拡大表示
外観
物件画像
※画像クリックで拡大表示
間取り
詳細画像


物件概要

物件コード 00117-200125
物件名 曲新町1丁目 売住宅
交通 駅:信越線 宮内駅から徒歩14分
物件所在地 新潟県長岡市曲新町1丁目4-13
物件種別 中古一戸建て
構造 木造 階建 地上2階建
建ぺい率/容積率 50%/100%
建物面積 1階 71.45㎡/ 2階 35.3㎡/ 計 106.75㎡ /32.29坪
土地面積 149.3㎡ /45.16坪
築年月 1972年5月(築54年)
入居(引き渡し)時期 相談
用途地域 第1種低層住居専用地域 地目 宅地  (現状:宅地)
都市計画 市街化区域 学校区 上組小学校(844m)・宮内中学校(935m)
形状 間口 9.01m × 奥行 16.57m 道路 南向き 位置指定道路 4m 消雪あり
私道 - その他の制限 -
  • 曲新町1丁目 売住宅
    株式会社 棚橋不動産
  • この物件を問い合わせる/無料
  • TEL: 0258-31-1700

物件詳細情報

所在階/階数 - 号室 -
販売価格 6,600,000円 方位
間取り 4DK (和室:8畳、8畳、6畳、6畳)
DK6
専有面積 - バルコニー面積 -
その他面積 4.95㎡ /1.49坪  物置部屋 駐車場 -
管理費 - 修繕積立金 -
現況 居住中
仲介手数料 330,000円
利用制限 -
設備 閑静な住宅街、駐車3台以上可能、南向き、ガスコンロ設置可能、追いだき機能付き、温水洗浄便座、エアコンあり、都市ガス、上水道、下水道、全居室収納あり
取引態様 仲介
備考 カーポート1台付き 前面道路消雪あり
取り扱い会社

株式会社 棚橋不動産

新潟県長岡市泉1-7-1

情報登録日 2026/03/26 次回更新予定日 2026/06/05
取引条件有効期限 2026/04/30
  • 曲新町1丁目 売住宅
    株式会社 棚橋不動産
  • この物件を問い合わせる/無料
  • TEL: 0258-31-1700

この物件の地図・周辺情報・行政情報

この物件の周辺情報・行政情報を詳しく見る
【周辺情報】
物件の近くにあるコンビニや銀行・学校など、アイコン付のマップで詳しく表示できます!
【行政情報】
水道料や下水道料・ガス料金など、暮らしに関係のある情報を表示しています。

担当取扱い店舗情報

取扱い店舗画像
株式会社 棚橋不動産
TEL: 0258-31-1700
所在地: 新潟県長岡市泉1-7-1
交通: 北長岡駅
営業時間: 8:30~17:30/定休日:土・日・祝
免許番号: 新潟県知事(5)第4749号 この会社の情報を詳しく見る
所属団体名: 全日本不動産協会 新潟県本部
取引態様: 仲介