物件掲載企業数:301|賃貸物件:3,265件|売買物件:3,245件|今週の登録物件:257
閲覧中のブラウザ(インターネットエクスプローラー)は非推奨ブラウザです。
物件が正しく表示されなかったり、正しく検索されない場合があります。最新のブラウザ(Google Chrome・Edgeなど)にてご利用お願いいたします。
  

新潟県長岡市大積町1丁目942-1 中古一戸建て 6DK 5,000,000円の物件情報

物件名/所在地 詳細 価格
大積1丁目売家
新潟県長岡市大積町1丁目942-1
  • 土地面積
    :240.99㎡ /72.89坪
  • 建物面積
    :201.76㎡ /61.03坪
  • 間取り
    :6DK
  • 築年月
    :1973年8月
5,000,000
  • 大積1丁目売家
    株式会社 丸藤
  • この物件を問い合わせる/無料
  • TEL: 0258-29-2987

物件画像

外観 間取り
物件画像
※画像クリックで拡大表示
東側の道路より
物件画像
※画像クリックで拡大表示
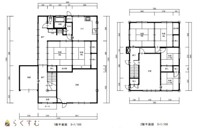
間取り図
詳細画像


物件概要

物件コード 00073-200073
物件名 大積1丁目売家
交通 駅:信越線 越後岩塚駅から徒歩93分、バス:大積から徒歩2分
物件所在地 新潟県長岡市大積町1丁目942-1
物件種別 中古一戸建て
構造 木造 階建 地上2階建
建ぺい率/容積率 70%/200%
建物面積 1階 128.48㎡/ 2階 73.28㎡/ 計 201.76㎡ /61.03坪
土地面積 240.99㎡ /72.89坪
築年月 1973年8月(築52年)
入居(引き渡し)時期 2025年10月1日
用途地域 無指定 地目 宅地  (現状:宅地)
都市計画 市街化調整区域 学校区 大積小学校(338m)・青葉台中学校(2,667m)
形状 間口 15m × 奥行 20m 道路 国道8号線
私道 - その他の制限 -
  • 大積1丁目売家
    株式会社 丸藤
  • この物件を問い合わせる/無料
  • TEL: 0258-29-2987

物件詳細情報

所在階/階数 - 号室 -
販売価格 5,000,000円 方位 南東
間取り 6DK (和室:8畳、8畳、6畳、6畳) (洋室:8、8)
専有面積 - バルコニー面積 -
その他面積 - 駐車場 -
管理費 - 修繕積立金 -
現況 居住中
仲介手数料 231,000円
利用制限 -
設備 日当り良好、南向き、LPG、上水道、下水道、田舎暮らし
取引態様 専任
備考 -
取り扱い会社

株式会社 丸藤

新潟県長岡市古正寺1丁目2801

情報登録日 2025/08/25 次回更新予定日 2026/06/07
取引条件有効期限 2024/09/05
  • 大積1丁目売家
    株式会社 丸藤
  • この物件を問い合わせる/無料
  • TEL: 0258-29-2987

この物件の地図・周辺情報・行政情報

この物件の周辺情報・行政情報を詳しく見る
【周辺情報】
物件の近くにあるコンビニや銀行・学校など、アイコン付のマップで詳しく表示できます!
【行政情報】
水道料や下水道料・ガス料金など、暮らしに関係のある情報を表示しています。

担当取扱い店舗情報

取扱い店舗画像
株式会社 丸藤
TEL: 0258-29-2987
所在地: 新潟県長岡市古正寺1丁目2801
交通: 長岡駅
営業時間: 9:00~17:00/定休日:日曜・祭日
免許番号: 新潟県知事(9)第3434号 この会社の情報を詳しく見る
所属団体名: 新潟県宅地建物取引協会 長岡支部
取引態様: 専任
ホームページ: https://www.maruhome.co.jp/