| 物件コード | 00073-200073 | ||
|---|---|---|---|
| 物件名 | 大積1丁目売家 | ||
| 交通 | 駅:信越線 越後岩塚駅から徒歩93分、バス:大積から徒歩2分 | ||
| 物件所在地 | 新潟県長岡市大積町1丁目942-1 | ||
| 物件種別 | 中古一戸建て | ||
| 構造 | 木造 | 階建 | 地上2階建 | 
| 建ぺい率/容積率 | 70%/200% | ||
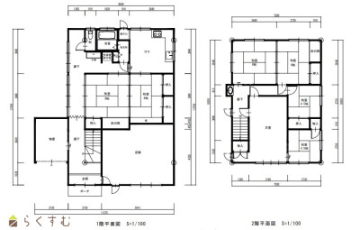
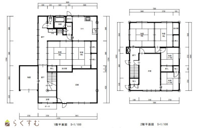
| 建物面積 | 1階 128.48㎡/ 2階 73.28㎡/ 計 201.76㎡ /61.03坪 | ||
| 土地面積 | 240.99㎡ /72.89坪 | ||
| 築年月 | 1973年8月(築52年) | ||
| 入居時期 | 2025年10月1日 | ||
| 用途地域 | 無指定 | 地目 | 宅地 (現状:宅地) | 
| 都市計画 | 市街化調整区域 | 学校区 | 大積小学校(338m)・青葉台中学校(2,667m) | 
| 形状 | 間口 15m × 奥行 20m | 道路 | 国道8号線 | 
| 私道 | - | ||
| 所在階/階数 | - | 号室 | - | 
|---|---|---|---|
| 販売価格 | 5,000,000円 | 方位 | 南東 | 
| 間取り | 6DK (和室:8畳、8畳、6畳、6畳) (洋室:8、8) | ||
| 専有面積 | - | バルコニー面積 | - | 
| その他面積 | - | 駐車場 | - | 
| 管理費 | - | 修繕積立金 | - | 
| 現況 | 居住中 | ||
| 仲介手数料 | 231,000円 | ||
| 利用制限 | - | ||
| 設備 | 日当り良好、南向き、LPG、上水道、下水道、田舎暮らし | ||
| 取引態様 | 専任 | ||
| 備考 | - | ||
| 情報登録日 | 2025/08/25 | 次回更新予定日 | 2025/11/19 | 
| 取引条件有効期限 | 2024/09/05 | ||
| 
							 | 
						
							 | 
					
| 
							 | 
						
							 
						 | 
					
| TEL: | 0258-29-2987 | 
|---|---|
| 所在地: | 新潟県長岡市古正寺1丁目2801 | 
| 交通: | 長岡駅 | 
| 営業時間: | 9:00~17:00/定休日:日曜・祭日 | 
| 免許番号: | 新潟県知事(9)第3434号 | 
| 所属団体名: | 新潟県宅地建物取引協会 長岡支部 | 
| 取引態様: | 専任 |