物件掲載企業数:301|賃貸物件:3,261件|売買物件:3,251件|今週の登録物件:296
閲覧中のブラウザ(インターネットエクスプローラー)は非推奨ブラウザです。
物件が正しく表示されなかったり、正しく検索されない場合があります。最新のブラウザ(Google Chrome・Edgeなど)にてご利用お願いいたします。
  

新潟県長岡市下々条町2484番地9 中古一戸建て 2LDK 23,800,000円の物件情報

木の温もりを感じる自然志向のログハウスライフ

物件名/所在地 詳細 価格
下々条町売ログハウス
新潟県長岡市下々条町2484番地9
  • 土地面積
    :222.98㎡ /67.45坪
  • 建物面積
    :105.62㎡ /31.95坪
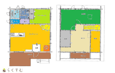
  • 間取り
    :2LDK
  • 築年月
    :2014年10月
23,800,000
  • 下々条町売ログハウス
    橋本建設 株式会社
  • この物件を問い合わせる/無料
  • TEL: 0258-63-1112

物件画像

外観 間取り
物件画像
※画像クリックで拡大表示
 
物件画像
※画像クリックで拡大表示
 
詳細画像


物件概要

薪ストーブやデッキ、ロフト等、のんびり楽しめる暮らしをしてみませんか?
物件コード 00070-200096
物件名 下々条町売ログハウス
交通 駅:信越線 押切駅から徒歩28分、バス:大野から徒歩2分
物件所在地 新潟県長岡市下々条町2484番地9
物件種別 中古一戸建て
構造 丸太組み構法 階建 地上2階建
建ぺい率/容積率 60%/200%
建物面積 1階 56.34㎡/ 2階 49.28㎡/ 計 105.62㎡ /31.95坪
土地面積 222.98㎡ /67.45坪
築年月 2014年10月(築11年)
入居(引き渡し)時期 相談
用途地域 第2種中高層住居専用地域 地目 宅地  (現状:宅地)
都市計画 市街化区域 学校区 黒条小学校(666m)・堤岡中学校(248m)
形状 間口 12.38m × 奥行 17.99m 道路 市道:黒条196号線
私道 - その他の制限 地区計画有(新組地区)
  • 下々条町売ログハウス
    橋本建設 株式会社
  • この物件を問い合わせる/無料
  • TEL: 0258-63-1112

物件詳細情報

所在階/階数 - 号室 -
販売価格 23,800,000円 方位 北西
間取り 2LDK (洋室:13.8、5.3)
LDK21
専有面積 - バルコニー面積 -
その他面積 - 駐車場 -
管理費 - 修繕積立金 -
現況 空家
仲介手数料 851,400円
利用制限 -
設備 閑静な住宅街、LDK15帖以上、全室フローリング、築15年以内、駐車3台以上可能、TVインターホン、複層ガラス、デインプルキー、カウンターキッチン、IHクッキングヒーター、追いだき機能付き、温水洗浄便座、エアコンあり、ウッドデッキ・テラス、都市ガス、上水道、下水道
取引態様 一般
備考 価格改定2,200万円→2,380万円(令和8年3月4日)
取り扱い会社

橋本建設 株式会社

新潟県見附市市野坪町31-3

情報登録日 2026/03/04 次回更新予定日 2026/06/05
取引条件有効期限 2027/09/30
  • 下々条町売ログハウス
    橋本建設 株式会社
  • この物件を問い合わせる/無料
  • TEL: 0258-63-1112

この物件の地図・周辺情報・行政情報

この物件の周辺情報・行政情報を詳しく見る
【周辺情報】
物件の近くにあるコンビニや銀行・学校など、アイコン付のマップで詳しく表示できます!
【行政情報】
水道料や下水道料・ガス料金など、暮らしに関係のある情報を表示しています。

担当取扱い店舗情報

取扱い店舗画像
橋本建設 株式会社
TEL: 0258-63-1112
所在地: 新潟県見附市市野坪町31-3
交通: 見附駅
営業時間: 9:00~17:00/定休日:水・木曜日
免許番号: 新潟県知事(9)第3180号 この会社の情報を詳しく見る
所属団体名: 公益社団法人 新潟県宅地建物取引業協会 三条支部
取引態様: 一般
ホームページ: http://hashikenhome.com/