| 薪ストーブやデッキ、ロフト等、のんびり楽しめる暮らしをしてみませんか? | |||
| 物件コード | 00070-200096 | ||
|---|---|---|---|
| 物件名 | 下々条町売ログハウス | ||
| 交通 | 駅:信越線 押切駅から徒歩28分、バス:大野から徒歩2分 | ||
| 物件所在地 | 新潟県長岡市下々条町2484番地9 | ||
| 物件種別 | 中古一戸建て | ||
| 構造 | 丸太組み構法 | 階建 | 地上2階建 |
| 建ぺい率/容積率 | 60%/200% | ||
| 建物面積 | 1階 56.34㎡/ 2階 49.28㎡/ 計 105.62㎡ /31.95坪 | ||
| 土地面積 | 222.98㎡ /67.45坪 | ||
| 築年月 | 2014年10月(築11年) | ||
| 入居時期 | 相談 | ||
| 用途地域 | 第2種中高層住居専用地域 | 地目 | 宅地 (現状:宅地) |
| 都市計画 | 市街化区域 | 学校区 | 黒条小学校(666m)・堤岡中学校(248m) |
| 形状 | 間口 12.38m × 奥行 17.99m | 道路 | 市道:黒条196号線 |
| 私道 | - | ||
| 所在階/階数 | - | 号室 | - |
|---|---|---|---|
| 販売価格 | 23,800,000円 | 方位 | 北西 |
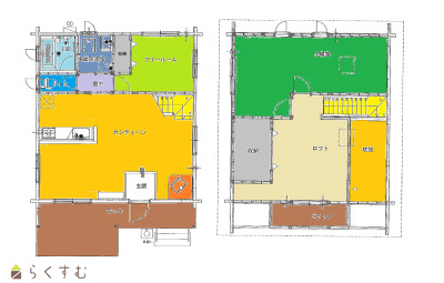
| 間取り |
2LDK (洋室:13.8、5.3) LDK21 |
||
| 専有面積 | - | バルコニー面積 | - |
| その他面積 | - | 駐車場 | - |
| 管理費 | - | 修繕積立金 | - |
| 現況 | 空家 | ||
| 仲介手数料 | 851,400円 | ||
| 利用制限 | - | ||
| 設備 | 閑静な住宅街、LDK15帖以上、全室フローリング、築15年以内、駐車3台以上可能、TVインターホン、複層ガラス、デインプルキー、カウンターキッチン、IHクッキングヒーター、追いだき機能付き、温水洗浄便座、エアコンあり、ウッドデッキ・テラス、都市ガス、上水道、下水道 | ||
| 取引態様 | 一般 | ||
| 備考 | 価格改定2,200万円→2,380万円(令和8年3月4日) | ||
| 情報登録日 | 2026/03/04 | 次回更新予定日 | 2026/06/06 |
| 取引条件有効期限 | 2027/09/30 | ||
|
|
|
|
|
| TEL: | 0258-63-1112 |
|---|---|
| 所在地: | 新潟県見附市市野坪町31-3 |
| 交通: | 見附駅 |
| 営業時間: | 9:00~17:00/定休日:水・木曜日 |
| 免許番号: | 新潟県知事(9)第3180号 |
| 所属団体名: | 公益社団法人 新潟県宅地建物取引業協会 三条支部 |
| 取引態様: | 一般 |