物件掲載企業数:299|賃貸物件:3,602件|売買物件:3,317件|今週の登録物件:275
閲覧中のブラウザ(インターネットエクスプローラー)は非推奨ブラウザです。
物件が正しく表示されなかったり、正しく検索されない場合があります。最新のブラウザ(Google Chrome・Edgeなど)にてご利用お願いいたします。
  

新潟県新潟市西蒲区間瀬6199-2 中古一戸建て 1LDK 8,800,000円の物件情報

「商談対応中」  別荘、住まいとしての利用 どちらにも最適  

物件名/所在地 詳細 価格
新潟市西蒲区間瀬 戸建
新潟県新潟市西蒲区間瀬6199-2
  • 土地面積
    :167.27㎡ /50.59坪
  • 建物面積
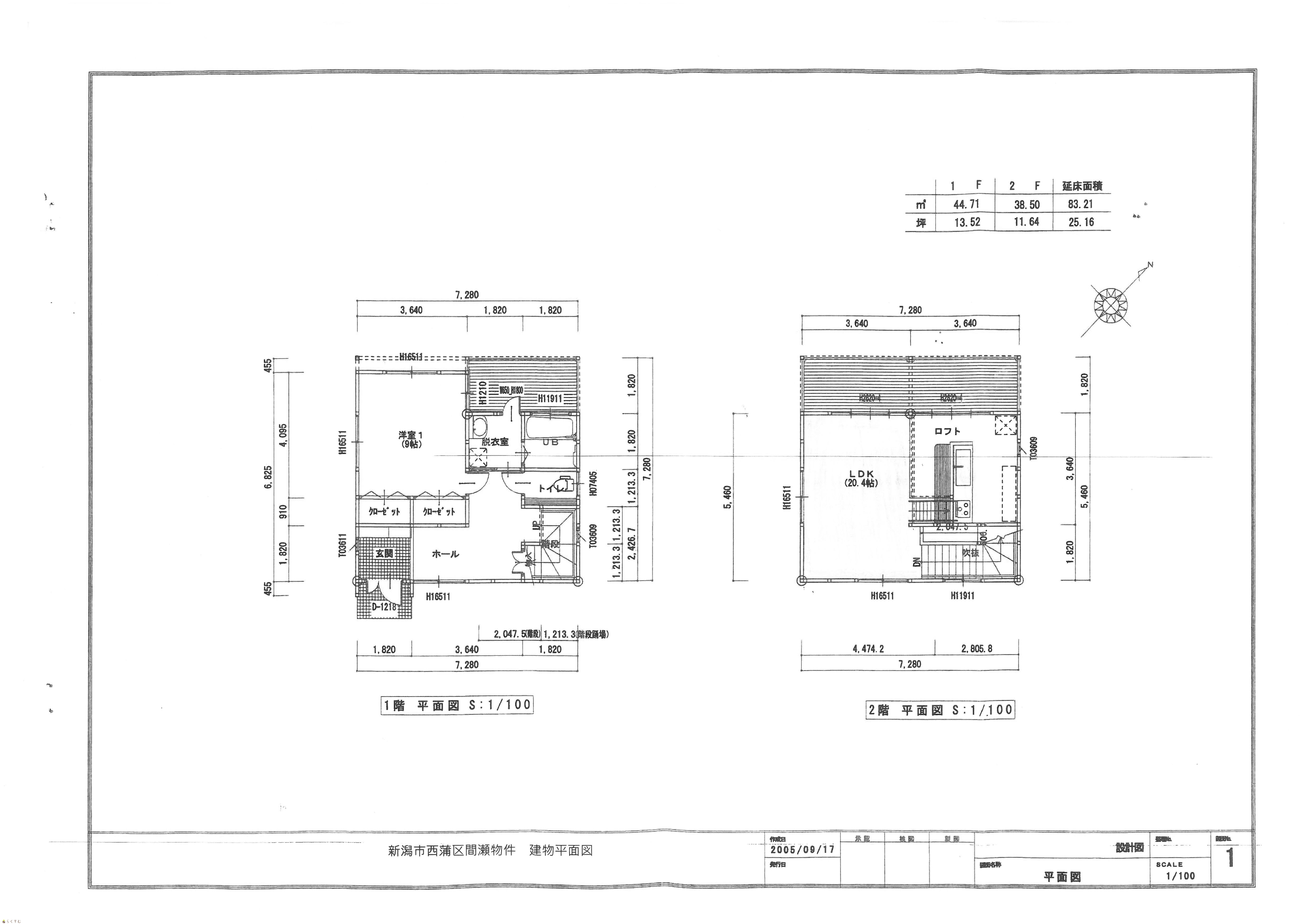
    :83.21㎡ /25.17坪
  • 間取り
    :1LDK
  • 築年月
    :2006年1月
8,800,000
  • 新潟市西蒲区間瀬 戸建
    株式会社 山六木材
  • この物件を問い合わせる/無料
  • TEL: 0258-78-4413

物件画像

外観 間取り
物件画像
※画像クリックで拡大表示
外観
物件画像
※画像クリックで拡大表示
間取り
詳細画像


物件概要

LDKから海が見えます!
物件コード 00063-200099
物件名 新潟市西蒲区間瀬 戸建
交通 駅:越後線 岩室駅から徒歩220分、バス:五ヶ峠登山口前から徒歩102分
物件所在地 新潟県新潟市西蒲区間瀬6199-2
物件種別 中古一戸建て
構造 木造 階建 地上2階建
建ぺい率/容積率 70%/200%
建物面積 1階 44.71㎡/ 2階 38.5㎡/ 計 83.21㎡ /25.17坪
土地面積 167.27㎡ /50.59坪
築年月 2006年1月(築19年)
入居(引き渡し)時期 相談
用途地域 無指定 地目 宅地  (現状:宅地)
都市計画 市街化調整区域 学校区 岩室小学校(5,085m)・岩室中学校(5,841m)
形状 間口 12m × 奥行 13m 道路 東側:既存道路 幅員9m
私道 - その他の制限 -
  • 新潟市西蒲区間瀬 戸建
    株式会社 山六木材
  • この物件を問い合わせる/無料
  • TEL: 0258-78-4413

物件詳細情報

所在階/階数 - 号室 -
販売価格 8,800,000円 方位 -
間取り 1LDK (洋室:9)
LDK:20.4帖
専有面積 - バルコニー面積 -
その他面積 - 駐車場 -
管理費 - 修繕積立金 -
現況 居住中
仲介手数料 330,000円
利用制限 -
設備 日当り良好、閑静な住宅街、LDK15帖以上、全室フローリング、駐車2台可能、追いだき機能付き、温水洗浄便座、エアコンあり、ウッドデッキ・テラス、LPG、上水道、浄化槽、別荘、田舎暮らし
取引態様 一般
備考 ・現況有姿取引となります。
・ウッドデッキあり、ロフトあり、敷地内に物置あり
・テレビ電波受信が悪い。 ケーブルテレビのみ可能
・自治会費(町内会)支払必要(別荘として使用の場合:月/1,000円)
取り扱い会社

株式会社 山六木材

新潟県三島郡出雲崎町松本99-1

情報登録日 2025/10/06 次回更新予定日 2025/10/24
取引条件有効期限 2026/09/30
  • 新潟市西蒲区間瀬 戸建
    株式会社 山六木材
  • この物件を問い合わせる/無料
  • TEL: 0258-78-4413

この物件の地図・周辺情報・行政情報

この物件の周辺情報・行政情報を詳しく見る
【周辺情報】
物件の近くにあるコンビニや銀行・学校など、アイコン付のマップで詳しく表示できます!
【行政情報】
水道料や下水道料・ガス料金など、暮らしに関係のある情報を表示しています。
新潟市西蒲区役所(市区町村機関)まで11600m
新潟西蒲メディカルセンター病院(病院)まで12300m
間瀬郵便局(郵便局)まで1400m
ローソン新潟岩室店(コンビニ)まで6400m

※カメラのアイコンがある場合は、マウスをポイントするとその施設の画像がご覧いただけます。


担当取扱い店舗情報

取扱い店舗画像
株式会社 山六木材
TEL: 0258-78-4413
所在地: 新潟県三島郡出雲崎町松本99-1
交通: JR 出雲崎駅
営業時間: 8:15~17:30/定休日:水曜・年末年始休暇、GW、夏季休暇
免許番号: 新潟県知事(3)第5114号 この会社の情報を詳しく見る
所属団体名: 新潟県宅地建物取引協会 長岡支部
取引態様: 一般
ホームページ: https://yama-roku-moku.com/