LDKから海が見えます! | |||
物件コード | 00063-200099 | ||
---|---|---|---|
物件名 | 新潟市西蒲区間瀬 戸建 | ||
交通 | 駅:越後線 岩室駅から徒歩220分、バス:五ヶ峠登山口前から徒歩102分 | ||
物件所在地 | 新潟県新潟市西蒲区間瀬6199-2 | ||
物件種別 | 中古一戸建て | ||
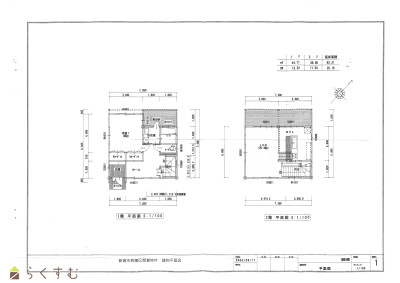
構造 | 木造 | 階建 | 地上2階建 |
建ぺい率/容積率 | 70%/200% | ||
建物面積 | 1階 44.71㎡/ 2階 38.5㎡/ 計 83.21㎡ /25.17坪 | ||
土地面積 | 167.27㎡ /50.59坪 | ||
築年月 | 2006年1月(築19年) | ||
入居時期 | 相談 | ||
用途地域 | 無指定 | 地目 | 宅地 (現状:宅地) |
都市計画 | 市街化調整区域 | 学校区 | 岩室小学校(5,085m)・岩室中学校(5,841m) |
形状 | 間口 12m × 奥行 13m | 道路 | 東側:既存道路 幅員9m |
私道 | - |
所在階/階数 | - | 号室 | - |
---|---|---|---|
販売価格 | 8,800,000円 | 方位 | - |
間取り |
1LDK (洋室:9) LDK:20.4帖 |
||
専有面積 | - | バルコニー面積 | - |
その他面積 | - | 駐車場 | - |
管理費 | - | 修繕積立金 | - |
現況 | 居住中 | ||
仲介手数料 | 330,000円 | ||
利用制限 | - | ||
設備 | 日当り良好、閑静な住宅街、LDK15帖以上、全室フローリング、駐車2台可能、追いだき機能付き、温水洗浄便座、エアコンあり、ウッドデッキ・テラス、LPG、上水道、浄化槽、別荘、田舎暮らし | ||
取引態様 | 一般 | ||
備考 | ・現況有姿取引となります。 ・ウッドデッキあり、ロフトあり、敷地内に物置あり ・テレビ電波受信が悪い。 ケーブルテレビのみ可能 ・自治会費(町内会)支払必要(別荘として使用の場合:月/1,000円) |
||
情報登録日 | 2025/10/06 | 次回更新予定日 | 2025/10/24 |
取引条件有効期限 | 2026/09/30 |
![]() |
![]() |
![]() |
![]() |
TEL: | 0258-78-4413 |
---|---|
所在地: | 新潟県三島郡出雲崎町松本99-1 |
交通: | JR 出雲崎駅 |
営業時間: | 8:15~17:30/定休日:水曜・年末年始休暇、GW、夏季休暇 |
免許番号: | 新潟県知事(3)第5114号 |
所属団体名: | 新潟県宅地建物取引協会 長岡支部 |
取引態様: | 一般 |