物件掲載企業数:301|賃貸物件:3,261件|売買物件:3,251件|今週の登録物件:296
閲覧中のブラウザ(インターネットエクスプローラー)は非推奨ブラウザです。
物件が正しく表示されなかったり、正しく検索されない場合があります。最新のブラウザ(Google Chrome・Edgeなど)にてご利用お願いいたします。
  

新潟県南魚沼市坂戸32-4 投資物件・その他 35,000,000円の物件情報

大浴場付きの保養所です!修繕必要箇所はあります。

物件名/所在地 詳細 価格
表面利回り
南魚沼市坂戸 売ビル(温泉引込可能)
新潟県南魚沼市坂戸32-4
  • 土地面積
    :1,930.98㎡ /584.12坪
  • 建ぺい率
    :80%
  • 容積率
    :400%
35,000,000
-
  • 南魚沼市坂戸 売ビル(温泉引込可能)
    ブレイン・リアルエステート合同会社
  • この物件を問い合わせる/無料
  • TEL: 0258-86-6934

物件画像

外観 間取り
物件画像
※画像クリックで拡大表示
外観
物件画像
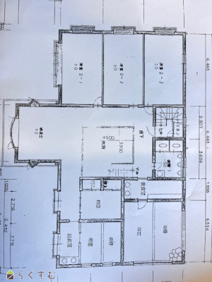
※画像クリックで拡大表示
間取り
詳細画像


物件概要

敷地内は融雪井戸がありますので冬も安心です。
物件コード 00044-200710
物件名 南魚沼市坂戸 売ビル(温泉引込可能)
交通 駅:上越線 六日町駅から徒歩13分、バス:坂戸橋東詰から徒歩2分
物件所在地 新潟県南魚沼市坂戸32-4
物件種別 投資物件・その他
物件区分 その他
構造 鉄筋コン 階建 地上2階建
建ぺい率/容積率 80%/400%
建物面積 1階 242.85㎡/ 2階 220.6㎡/ 計 463.45㎡ /140.19坪
土地面積 1,930.98㎡ /584.12坪
築年月 1992年4月(築34年)
入居(引き渡し)時期 随時入居(引き渡し)可
用途地域 商業地域 地目 宅地
都市計画 非線引き都市計画区域 学校区 六日町小学校(378m)・六日町中学校(1,288m)
形状 間口 49.06m × 奥行 40.21m 道路 南側:公道 16m
私道 - その他の制限 -
  • 南魚沼市坂戸 売ビル(温泉引込可能)
    ブレイン・リアルエステート合同会社
  • この物件を問い合わせる/無料
  • TEL: 0258-86-6934

物件詳細情報

所在階/階数 - 号室 -
販売価格 35,000,000円 方位 -
表面利回り(満室想定時) - 満室想定年収 - (想定月収: - )
現行利回り - 現行年間年収 -
住戸数 -
間取り 5LDK
専有面積 - バルコニー面積 -
その他面積 - 駐車場 無料
管理費 - 修繕積立金 -
現況 居住中
仲介手数料 1,221,000円
利用制限 -
設備 南側道路面す、駐車場(近隣含む)、公営水道、下水道、浄化槽、事業向け、別荘、田舎暮らし
取引態様 一般
備考 ■現況有姿での引渡しとなります。
取り扱い会社

ブレイン・リアルエステート合同会社

新潟県長岡市大島本町3丁目10番8号202号室

情報登録日 2026/04/02 次回更新予定日 2026/06/05
取引条件有効期限 2026/04/20
  • 南魚沼市坂戸 売ビル(温泉引込可能)
    ブレイン・リアルエステート合同会社
  • この物件を問い合わせる/無料
  • TEL: 0258-86-6934

この物件の地図・周辺情報・行政情報

この物件の周辺情報・行政情報を詳しく見る
【周辺情報】
物件の近くにあるコンビニや銀行・学校など、アイコン付のマップで詳しく表示できます!
【行政情報】
水道料や下水道料・ガス料金など、暮らしに関係のある情報を表示しています。

担当取扱い店舗情報

取扱い店舗画像
ブレイン・リアルエステート合同会社
TEL: 0258-86-6934
所在地: 新潟県長岡市大島本町3丁目10番8号202号室
交通:
営業時間: 9:30~18:00/定休日:水曜日、日曜日
免許番号: 新潟県知事(4)第4978号 この会社の情報を詳しく見る
所属団体名: ブレインリアルエステート合同会社
取引態様: 一般
ホームページ: http://www.brain-niigata.co.jp