物件掲載企業数:295|賃貸物件:3,619件|売買物件:3,314件|今週の登録物件:220
閲覧中のブラウザ(インターネットエクスプローラー)は非推奨ブラウザです。
物件が正しく表示されなかったり、正しく検索されない場合があります。最新のブラウザ(Google Chrome・Edgeなど)にてご利用お願いいたします。
  

新潟県長岡市東新町1丁目1-20 中古マンション 3LDK 14,800,000円の物件情報

◆南側バルコニーで陽当りが良いお部屋です♪ ◆売主につき仲介手数料不要! ◆R8までアクセス良好 

物件名/所在地 詳細 価格
サーパス東新町
402号室
新潟県長岡市東新町1丁目1-20
  • 専有面積
    :74.2㎡ /22.44坪
  • 間取り
    :3LDK
  • 築年月
    :2000年10月
14,800,000
  • サーパス東新町
    髙頭不動産 株式会社
  • この物件を問い合わせる/無料
  • TEL: 0120-1818-27

物件画像

外観 間取り
物件画像
※画像クリックで拡大表示
外観
物件画像
※画像クリックで拡大表示
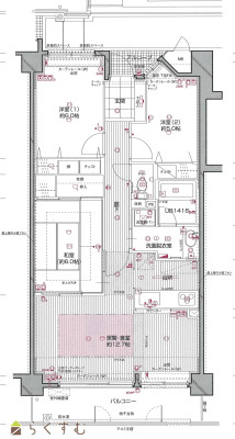
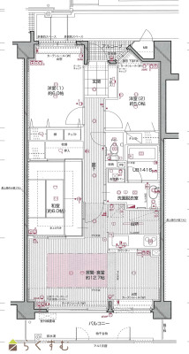
間取図
詳細画像


物件概要

物件コード 00040-201131
物件名 サーパス東新町
交通 駅:上越新幹線 長岡駅から徒歩20分、バス:昭和通りから徒歩5分
物件所在地 新潟県長岡市東新町1丁目1-20
物件種別 中古マンション
構造 鉄筋コン 階建 地上7階建
建ぺい率/容積率 70%/200%
建物面積 計 3,601.19㎡ /1,089.35坪
土地面積 1,633.99㎡ /494.28坪
築年月 2000年10月(築25年)
入居(引き渡し)時期 随時入居(引き渡し)可
用途地域 第1種住居地域 地目 宅地
都市計画 市街化区域 学校区 新町小学校(465m)・北中学校(1,571m)
形状 - 道路 西側公道7.7m、東側公道7.8m、北側公道7.7m
私道 - その他の制限 準防火地域
  • サーパス東新町
    髙頭不動産 株式会社
  • この物件を問い合わせる/無料
  • TEL: 0120-1818-27

物件詳細情報

所在階/階数 4階/7階 号室 402号室
販売価格 14,800,000円 方位
間取り 3LDK (和室:6畳) (洋室:6、5)
LDK12.7
専有面積 74.2㎡ /22.44坪 バルコニー面積 10.05㎡ /3.04坪
その他面積 - 駐車場 6,000円(軽専)
管理費 11,500円 修繕積立金 13,400円
現況 空家
仲介手数料 なし
利用制限 -
設備 2階以上、日当り良好、閑静な住宅街、外観タイル張り、洗濯機置き場、エレベーター、宅配BOX、タイヤ置き場あり、和室あり、平面駐車場、駐輪場、南向き、管理人常駐(日中)、セキュリティー良し、TV付きインターホン、エントランスオートロック、システムキッチン、対面式キッチン、3口コンロ、ガスコンロ設置済み、浴室乾燥機、温水洗浄便座、シャワー付き洗面台、エアコン、床暖房、都市ガス、公営水道、下水道、ルーフバルコニー、シューズBOX、BS端子、CS端子、即入居可能
取引態様 売主
備考 【その他費用】
◆上水道基本料金1,056円、下水道基本料金1,936円(2ヶ月毎に使用料と併せて管理費等と共に徴収)
◆自治会費
月額600円を年4回3ヶ月毎(1,800円)に管理費等と併せて徴収
◆タイヤストッカー使用の場合は、月額500円
取り扱い会社

髙頭不動産 株式会社

新潟県長岡市千歳1-3-25

情報登録日 2025/07/14 次回更新予定日 2025/11/19
取引条件有効期限 2025/09/18
  • サーパス東新町
    髙頭不動産 株式会社
  • この物件を問い合わせる/無料
  • TEL: 0120-1818-27

この物件の地図・周辺情報・行政情報

この物件の周辺情報・行政情報を詳しく見る
【周辺情報】
物件の近くにあるコンビニや銀行・学校など、アイコン付のマップで詳しく表示できます!
【行政情報】
水道料や下水道料・ガス料金など、暮らしに関係のある情報を表示しています。
ファミリーマート 長岡新町二丁目店(コンビニ)まで230m
ウエルシア長岡泉店 (調剤薬局)(ドラッグストア)まで760m

※カメラのアイコンがある場合は、マウスをポイントするとその施設の画像がご覧いただけます。


担当取扱い店舗情報

取扱い店舗画像
髙頭不動産 株式会社
TEL: 0120-1818-27
所在地: 新潟県長岡市千歳1-3-25
交通: 長岡駅
営業時間: 8時30分~17時30分(大手支店は9時~18時)/定休日:本社:土日祝日(事前予約での対応可能)、支店:日曜祝日第5土曜(毎年2月下旬から3月は休みなし)
免許番号: 新潟県知事(17)第191号 この会社の情報を詳しく見る
所属団体名: 新潟県宅地建物取引協会 長岡支部
取引態様: 売主
ホームページ: http://www.takato-f.com