物件掲載企業数:299|賃貸物件:3,601件|売買物件:3,317件|今週の登録物件:312
閲覧中のブラウザ(インターネットエクスプローラー)は非推奨ブラウザです。
物件が正しく表示されなかったり、正しく検索されない場合があります。最新のブラウザ(Google Chrome・Edgeなど)にてご利用お願いいたします。
  

新潟県見附市田井町2657 中古一戸建て 9DK 5,000,000円の物件情報

田井町の自然の魅力満載の高床式住宅 畑をしながらスローライフを楽しんでみませんか? 湧き水も使えます!

物件名/所在地 詳細 価格
和風住宅(高床式)~自然豊かな環境です~
新潟県見附市田井町2657
  • 土地面積
    :795.77㎡ /240.72坪
  • 建物面積
    :355.77㎡ /107.62坪
  • 間取り
    :9DK
  • 築年月
    :2005年3月
5,000,000
  • 和風住宅(高床式)~自然豊かな環境です~
    ふどうさんの相談所 (ライフデザイン合同会社 イオン長岡店)
  • この物件を問い合わせる/無料
  • TEL: 0258-94-4370

物件画像

外観 間取り
物件画像
※画像クリックで拡大表示
外観
物件画像
※画像クリックで拡大表示
間取り
詳細画像


物件概要

田井町の自然の魅力満載の高床式住宅 畑をしながらスローライフを楽しんでみませんか? 湧き水も使えます!
物件コード 00039-200288
物件名 和風住宅(高床式)~自然豊かな環境です~
交通 駅:信越線 押切駅から徒歩70分、バス:田井から徒歩6分
物件所在地 新潟県見附市田井町2657
物件種別 中古一戸建て
構造 木造 階建 地上3階建
建ぺい率/容積率 70%/200%
建物面積 1階 131.51㎡/ 2階 124.89㎡/ 3階 99.37㎡/ 計 355.77㎡ /107.62坪
土地面積 795.77㎡ /240.72坪
築年月 2005年3月(築20年)
入居(引き渡し)時期 相談
用途地域 無指定 地目 宅地
都市計画 市街化調整区域 学校区 田井小学校(574m)・南中学校(1,518m)
形状 - 道路 見附市道(2項道路)
私道 - その他の制限 敷地の一部が土砂災害警戒区域、土砂災害特別警戒区域に存します。
  • 和風住宅(高床式)~自然豊かな環境です~
    ふどうさんの相談所 (ライフデザイン合同会社 イオン長岡店)
  • この物件を問い合わせる/無料
  • TEL: 0258-94-4370

物件詳細情報

所在階/階数 - 号室 -
販売価格 5,000,000円 方位
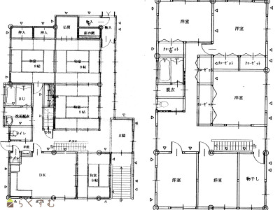
間取り 9DK (和室:8畳、8畳、6畳) (洋室:8、8、8、6、6、6)
DK12
専有面積 - バルコニー面積 -
その他面積 - 駐車場 -
管理費 - 修繕積立金 -
現況 居住中
仲介手数料 330,000円
利用制限 -
設備 閑静な住宅街、駐車3台以上可能、TVインターホン、複層ガラス、システムキッチン、3口コンロ、追いだき機能付き、バス1坪以上、温水洗浄便座、トイレ2か所以上、シャワー付き洗面台、エアコンあり、都市ガス、上水道、下水道、2世帯向き、田舎暮らし
取引態様 一般
備考 居住中のため内覧希望の場合はご希望の日時をお伝えください!
取り扱い会社

ふどうさんの相談所 (ライフデザイン合同会社 イオン長岡店)

新潟県長岡市古正寺1-249-1イオン長岡店3F

情報登録日 2025/10/06 次回更新予定日 2025/10/23
取引条件有効期限 2025/12/30
  • 和風住宅(高床式)~自然豊かな環境です~
    ふどうさんの相談所 (ライフデザイン合同会社 イオン長岡店)
  • この物件を問い合わせる/無料
  • TEL: 0258-94-4370

この物件の地図・周辺情報・行政情報

この物件の周辺情報・行政情報を詳しく見る
【周辺情報】
物件の近くにあるコンビニや銀行・学校など、アイコン付のマップで詳しく表示できます!
【行政情報】
水道料や下水道料・ガス料金など、暮らしに関係のある情報を表示しています。

担当取扱い店舗情報

取扱い店舗画像
ふどうさんの相談所 (ライフデザイン合同会社 イオン長岡店)
TEL: 0258-94-4370
所在地: 新潟県長岡市古正寺1-249-1イオン長岡店3F
交通: 長岡駅
営業時間: 10:00~20:00/定休日:年末年始・特別日はお休みいたします
免許番号: 新潟県知事(3)第5090号 この会社の情報を詳しく見る
所属団体名: 全日本不動産協会 新潟県本部
取引態様: 一般
ホームページ: http://life-dn.com