田井町の自然の魅力満載の高床式住宅 畑をしながらスローライフを楽しんでみませんか? 湧き水も使えます! | |||
物件コード | 00039-200288 | ||
---|---|---|---|
物件名 | 和風住宅(高床式)~自然豊かな環境です~ | ||
交通 | 駅:信越線 押切駅から徒歩70分、バス:田井から徒歩6分 | ||
物件所在地 | 新潟県見附市田井町2657 | ||
物件種別 | 中古一戸建て | ||
構造 | 木造 | 階建 | 地上3階建 |
建ぺい率/容積率 | 70%/200% | ||
建物面積 | 1階 131.51㎡/ 2階 124.89㎡/ 3階 99.37㎡/ 計 355.77㎡ /107.62坪 | ||
土地面積 | 795.77㎡ /240.72坪 | ||
築年月 | 2005年3月(築20年) | ||
入居時期 | 相談 | ||
用途地域 | 無指定 | 地目 | 宅地 |
都市計画 | 市街化調整区域 | 学校区 | 田井小学校(574m)・南中学校(1,518m) |
形状 | - | 道路 | 見附市道(2項道路) |
私道 | - |
所在階/階数 | - | 号室 | - |
---|---|---|---|
販売価格 | 5,000,000円 | 方位 | 南 |
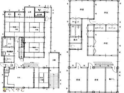
間取り |
9DK (和室:8畳、8畳、6畳) (洋室:8、8、8、6、6、6) DK12 |
||
専有面積 | - | バルコニー面積 | - |
その他面積 | - | 駐車場 | - |
管理費 | - | 修繕積立金 | - |
現況 | 居住中 | ||
仲介手数料 | 330,000円 | ||
利用制限 | - | ||
設備 | 閑静な住宅街、駐車3台以上可能、TVインターホン、複層ガラス、システムキッチン、3口コンロ、追いだき機能付き、バス1坪以上、温水洗浄便座、トイレ2か所以上、シャワー付き洗面台、エアコンあり、都市ガス、上水道、下水道、2世帯向き、田舎暮らし | ||
取引態様 | 一般 | ||
備考 | 居住中のため内覧希望の場合はご希望の日時をお伝えください! | ||
情報登録日 | 2025/10/06 | 次回更新予定日 | 2025/10/23 |
取引条件有効期限 | 2025/12/30 |
![]() |
![]() |
|
|
TEL: | 0258-94-4370 |
---|---|
所在地: | 新潟県長岡市古正寺1-249-1イオン長岡店3F |
交通: | 長岡駅 |
営業時間: | 10:00~20:00/定休日:年末年始・特別日はお休みいたします |
免許番号: | 新潟県知事(3)第5090号 |
所属団体名: | 全日本不動産協会 新潟県本部 |
取引態様: | 一般 |