物件掲載企業数:301|賃貸物件:3,261件|売買物件:3,251件|今週の登録物件:296
閲覧中のブラウザ(インターネットエクスプローラー)は非推奨ブラウザです。
物件が正しく表示されなかったり、正しく検索されない場合があります。最新のブラウザ(Google Chrome・Edgeなど)にてご利用お願いいたします。
  

新潟県長岡市栄町2丁目7-15 投資物件・その他 15,000,000円の物件情報

栃尾 栄町2丁目の医院建物 診療所、介護施設に利用可

物件名/所在地 詳細 価格
表面利回り
栃尾 栄町2丁目 売医院
新潟県長岡市栄町2丁目7-15
  • 土地面積
    :843.99㎡ /255.3坪
  • 建ぺい率
    :60%
  • 容積率
    :200%
15,000,000
-
  • 栃尾 栄町2丁目 売医院
    ふどうさんの相談所 (ライフデザイン合同会社 イオン長岡店)
  • この物件を問い合わせる/無料
  • TEL: 0258-94-4370

物件画像

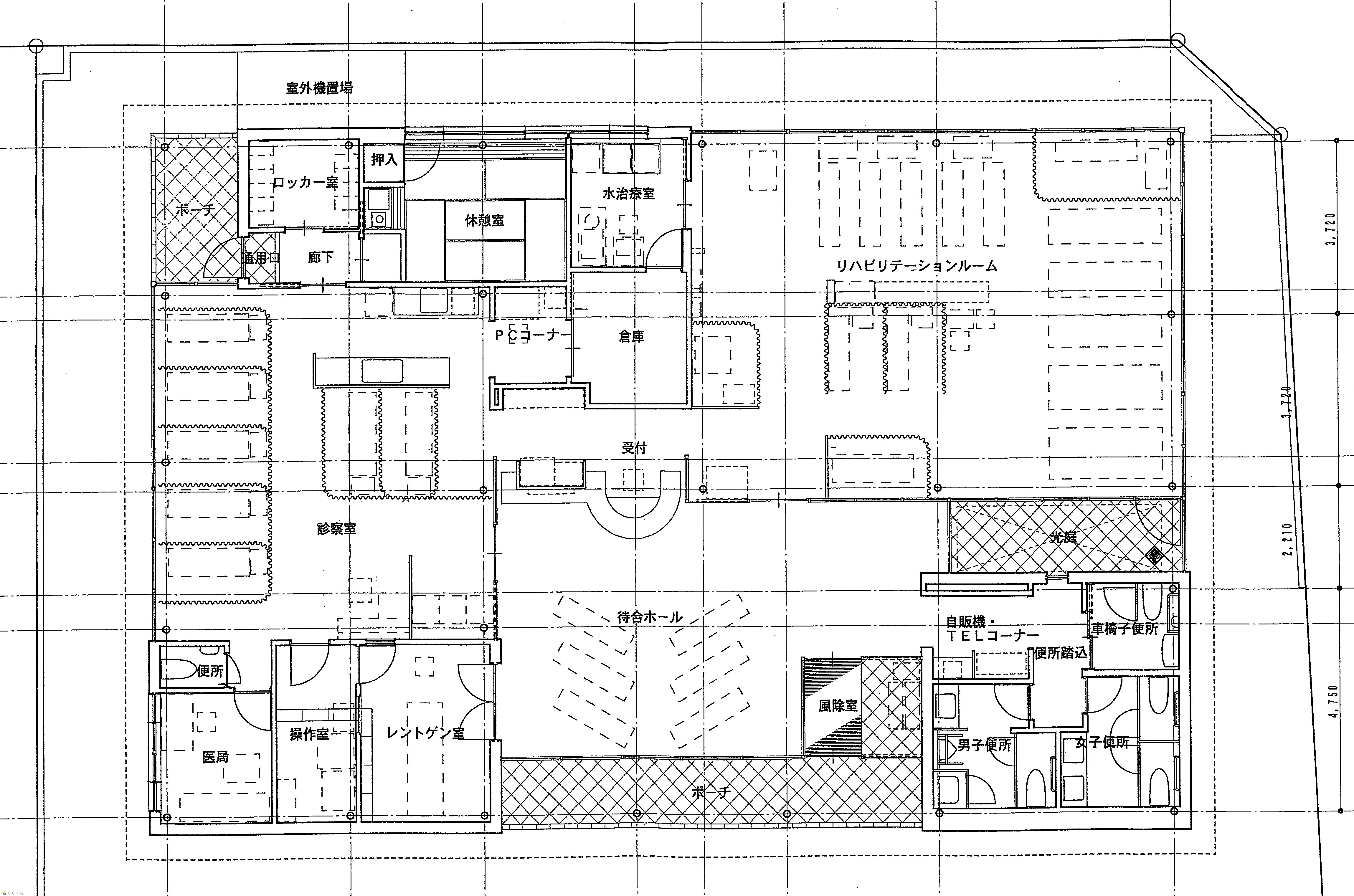
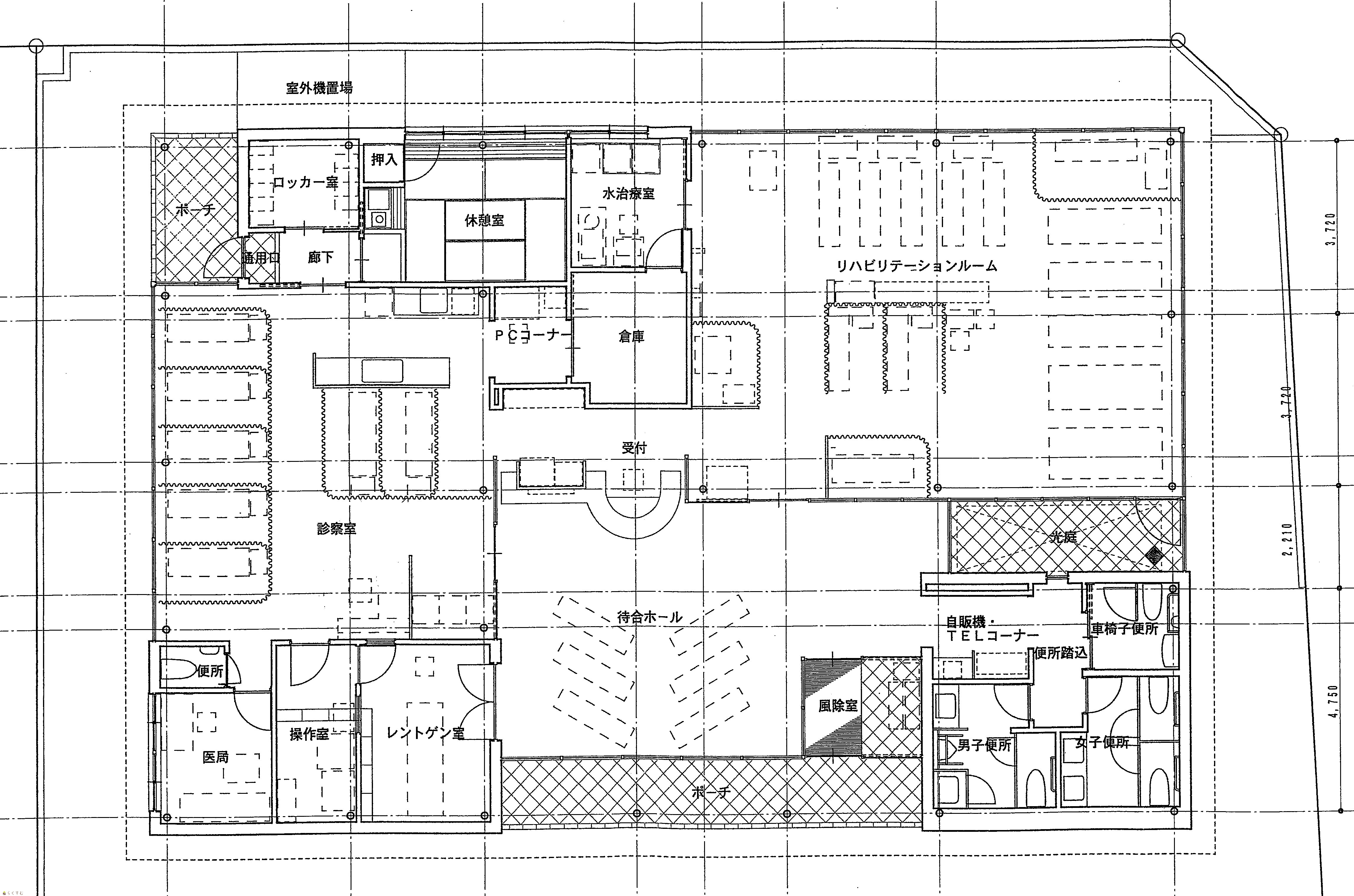
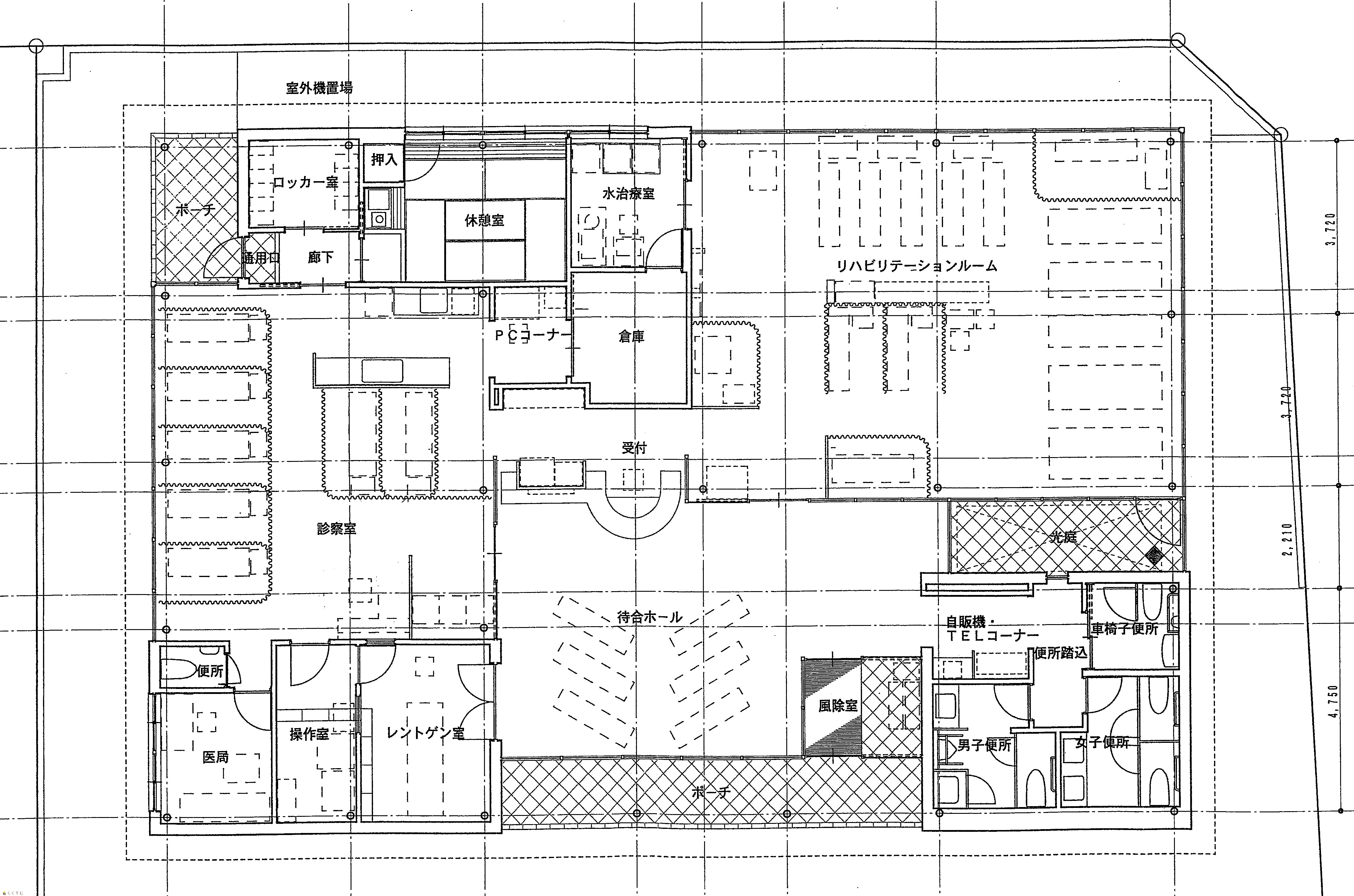
外観 間取り
物件画像
※画像クリックで拡大表示
外観
物件画像
※画像クリックで拡大表示
間取り
詳細画像


物件概要

大手ゼネコン施工の築23年の建物
物件コード 00039-200282
物件名 栃尾 栄町2丁目 売医院
交通 駅:信越線 見附駅から徒歩145分、バス:警察署前から徒歩4分
物件所在地 新潟県長岡市栄町2丁目7-15
物件種別 投資物件・その他
物件区分 その他
構造 鉄骨 階建 地上1階建
建ぺい率/容積率 60%/200%
建物面積 1階 314.55㎡/ 計 314.55㎡ /95.15坪
土地面積 843.99㎡ /255.3坪
築年月 2002年12月(築23年)
入居(引き渡し)時期 相談
用途地域 第1種住居地域 地目 宅地  (現状:建付地)
都市計画 非線引き都市計画区域 学校区 栃尾東小学校(488m)・刈谷田中学校(1,340m)
形状 間口 30m × 奥行 25m 道路 長岡市道
私道 - その他の制限 -
  • 栃尾 栄町2丁目 売医院
    ふどうさんの相談所 (ライフデザイン合同会社 イオン長岡店)
  • この物件を問い合わせる/無料
  • TEL: 0258-94-4370

物件詳細情報

所在階/階数 - 号室 -
販売価格 15,000,000円 方位 -
表面利回り(満室想定時) - 満室想定年収 2,400,000円 (想定月収: 200,000円 )
現行利回り - 現行年間年収 -
住戸数 -
間取り -
専有面積 - バルコニー面積 -
その他面積 - 駐車場 無料
管理費 - 修繕積立金 -
現況 空家
仲介手数料 561,000円
利用制限 -
設備 角地、公営水道、都市ガス、下水道、事業向け
取引態様 売主
備考 -
取り扱い会社

ふどうさんの相談所 (ライフデザイン合同会社 イオン長岡店)

新潟県長岡市古正寺1-249-1イオン長岡店3F

情報登録日 2026/03/15 次回更新予定日 2026/06/05
取引条件有効期限 2026/04/30
  • 栃尾 栄町2丁目 売医院
    ふどうさんの相談所 (ライフデザイン合同会社 イオン長岡店)
  • この物件を問い合わせる/無料
  • TEL: 0258-94-4370

この物件の地図・周辺情報・行政情報

この物件の周辺情報・行政情報を詳しく見る
【周辺情報】
物件の近くにあるコンビニや銀行・学校など、アイコン付のマップで詳しく表示できます!
【行政情報】
水道料や下水道料・ガス料金など、暮らしに関係のある情報を表示しています。

担当取扱い店舗情報

取扱い店舗画像
ふどうさんの相談所 (ライフデザイン合同会社 イオン長岡店)
TEL: 0258-94-4370
所在地: 新潟県長岡市古正寺1-249-1イオン長岡店3F
交通: 長岡駅
営業時間: 10:00~20:00/定休日:年末年始・特別日はお休みいたします
免許番号: 新潟県知事(3)第5090号 この会社の情報を詳しく見る
所属団体名: 全日本不動産協会 新潟県本部
取引態様: 売主
ホームページ: http://life-dn.com