| 大手ゼネコン施工の築23年の建物 | |||
| 物件コード | 00039-200282 | ||
|---|---|---|---|
| 物件名 | 栃尾 栄町2丁目 売医院 | ||
| 交通 | 駅:信越線 見附駅から徒歩145分、バス:警察署前から徒歩4分 | ||
| 物件所在地 | 新潟県長岡市栄町2丁目7-15 | ||
| 物件種別 | 投資物件・その他 | ||
| 物件区分 | その他 | ||
| 構造 | 鉄骨 | 階建 | 地上1階建 |
| 建ぺい率/容積率 | 60%/200% | ||
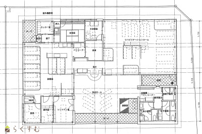
| 建物面積 | 1階 314.55㎡/ 計 314.55㎡ /95.15坪 | ||
| 土地面積 | 843.99㎡ /255.3坪 | ||
| 築年月 | 2002年12月(築23年) | ||
| 入居時期 | 相談 | ||
| 用途地域 | 第1種住居地域 | 地目 | 宅地 (現状:建付地) |
| 都市計画 | 非線引き都市計画区域 | 学校区 | 栃尾東小学校(488m)・刈谷田中学校(1,340m) |
| 形状 | 間口 30m × 奥行 25m | 道路 | 長岡市道 |
| 私道 | - | ||
| 所在階/階数 | - | 号室 | - |
|---|---|---|---|
| 販売価格 | 15,000,000円 | 方位 | - |
| 表面利回り (満室想定時) |
- | 満室想定年収 | 2,400,000円 (想定月収: 200,000円 ) |
| 現行利回り | - | 現行年間年収 | - |
| 住戸数 | - | ||
| 間取り | - | ||
| 専有面積 | - | バルコニー面積 | - |
| その他面積 | - | 駐車場 | 無料 |
| 管理費 | - | 修繕積立金 | - |
| 現況 | 空家 | ||
| 仲介手数料 | 561,000円 | ||
| 利用制限 | - | ||
| 設備 | 角地、公営水道、都市ガス、下水道、事業向け | ||
| 取引態様 | 売主 | ||
| 備考 | - | ||
| 情報登録日 | 2026/03/15 | 次回更新予定日 | 2026/06/05 |
| 取引条件有効期限 | 2026/04/30 | ||
|
|
|
|
|
| TEL: | 0258-94-4370 |
|---|---|
| 所在地: | 新潟県長岡市古正寺1-249-1イオン長岡店3F |
| 交通: | 長岡駅 |
| 営業時間: | 10:00~20:00/定休日:年末年始・特別日はお休みいたします |
| 免許番号: | 新潟県知事(3)第5090号 |
| 所属団体名: | 全日本不動産協会 新潟県本部 |
| 取引態様: | 売主 |