1
物件掲載企業数:
295
社
|賃貸物件:
3,620
件|売買物件:
3,318
件|今週の登録物件:
226
件
閲覧中のブラウザ(インターネットエクスプローラー)は非推奨ブラウザです。
物件が正しく表示されなかったり、正しく検索されない場合があります。最新のブラウザ(Google Chrome・Edgeなど)にてご利用お願いいたします。
Google Chrome
Microsoft Edge
アパート・マンション・一戸建て
駐車場
貸土地
店舗
事務所
倉庫・工場
新築分譲マンション
中古マンション
新築一戸建て
中古一戸建て
売土地・分譲地
その他(投資物件など)
マンション
一戸建て
土地
ホーム
>
検索方法選択
>
エリア選択
> 物件一覧
全エリア
の
新築一戸建て
一覧
164件
該当しました。
<前のページ
1
2
3
4
5
6
7
8
9
次のページ>
表示切替:
一覧表示
/
地図表示
並び替え:
指定なし
新着順
価格が安い順
価格が高い順
画像
物件名/所在地/取扱店
詳細
◆アクセントクロス3面分プレゼントキャンペーン実施中! ■北海道仕様の高気密・高断熱住宅◎エアコン一台でも年中快適に過ごせるお家! ■小学校まで550m(徒歩約7分)、中学校まで900m(徒歩約12分) ■スーパー、ドラッグストアまで700m(徒歩約9分) ■前面道路に消雪設備あり
長岡市川崎1丁目 建売住宅
新潟県長岡市川崎1丁目320-2
ハーバーエステート株式会社
価格
:
29,800,000
円
土地面積
:138㎡ /41.74坪
建物面積
:95.4㎡ /28.85坪
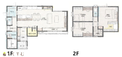
間取り
:3LDK
築年月
:2025年3月
【商業施設・国道・学校が徒歩圏内の良好な住環境です!】◆『Z空調』搭載でどこにいても快適な部屋温度◎◆全棟カーポート付き♪雪の日も安心◆収納充実!お部屋がスッキリ片付きます♪
(新築)柏崎市柳田町 3号棟
新潟県柏崎市柳田町7-15付近
新潟土地建物販売センター 株式会社
価格
:
29,800,000
円
土地面積
:193.11㎡ /58.41坪
建物面積
:112㎡ /33.88坪
間取り
:3LDK
築年月
:2024年4月
カーポート付き♪収納充実の高断熱住宅!
長岡市住吉1丁目 区画1 建売住宅
新潟県長岡市住吉1丁目1246-30(地番)
ハーバーエステート株式会社
価格
:
30,778,000
円
土地面積
:148.74㎡ /44.99坪
建物面積
:89.01㎡ /26.92坪
間取り
:3LDK
築年月
:2025年8月
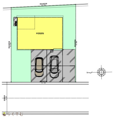
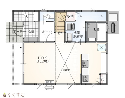
【補助金40万円対象】 ■前面道路8m以上、消雪パイプ完備 ■敷地間口約26m、並列5台駐車可能 ■2帖のテレワークルーム有 ■商業施設や学校が徒歩圏内
(新築住宅)長岡市新保 第1 1号棟
新潟県長岡市新保1丁目8-35付近
新潟土地建物販売センター 株式会社
価格
:
30,800,000
円
土地面積
:305.24㎡ /92.33坪
建物面積
:97.59㎡ /29.52坪
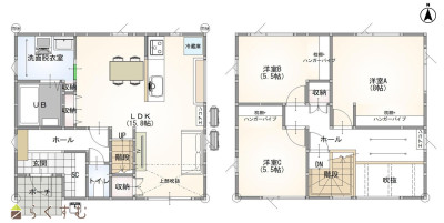
間取り
:4LDK
築年月
:2025年12月
【長岡市川崎に省エネで快適な二重断熱×高気密住宅】 ■前面道路に消雪パイプ完備 ■駐車3台可能 ■エアコン2台完備 ■パントリー・リビング・2階ホール収納付で収納力充実
( 新築住宅)長岡市川崎2丁目
新潟県長岡市川崎2丁目2488-15付近
新潟土地建物販売センター 株式会社
価格
:
30,800,000
円
土地面積
:128㎡ /38.72坪
建物面積
:89.43㎡ /27.05坪
間取り
:3LDK
築年月
:2025年12月
インナーガレージ2台分+自転車置きスペースあり
長岡市陽光台 3LDK
新潟県長岡市陽光台4-1379-167
ハウスドゥ 長岡中央店
価格
:
31,000,000
円
土地面積
:205.22㎡ /62.07坪
建物面積
:115.09㎡ /34.81坪
間取り
:3LDK
築年月
:2024年4月
総漆喰仕上げ、ドイツ製の窓採用!のモデルハウスをこの価格で。カーテン付きですぐに快適な暮らしが始められます
ナチュラルリビングカンパーニュ 新築住宅
上越市中田原105-35
株式会社 武江組
価格
:
31,000,000
円
土地面積
:238.06㎡ /72.01坪
建物面積
:101.02㎡ /30.55坪
間取り
:3LDK
築年月
:2021年5月
☆内見でQUOカードプレゼント☆スキップフロア3層階のデザイン住宅 太陽光パネル搭載、月々の電気代をお得に。インナーガレージ住宅につき、雨でも安心。
長岡市陽光台4丁目 スキップフロア3層階のデザイン住宅
新潟県長岡市陽光台4丁目1379番167
株式会社 エヌ・アール・ケー総合企画
価格
:
31,000,000
円
土地面積
:205.22㎡ /62.07坪
建物面積
:115.09㎡ /34.81坪
間取り
:3LDK
築年月
:2024年4月
2LDK、太陽光発電システム6.375kw+蓄電池システム10kw・床下冷暖房を採用、道向かいに医院あり、スーパーまで徒歩7分
柏崎市春日1丁目平屋モデル “Canva’s”
新潟県柏崎市春日1丁目6番22
株式会社 ホーメックス
価格
:
31,000,000
円
土地面積
:229.8㎡ /69.51坪
建物面積
:80.32㎡ /24.29坪
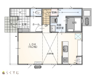
間取り
:2LDK
築年月
:2024年6月
【仲介料不要】医療施設、商業施設、柏崎ICまで近い好立地!全館空調で家中快適です
三和町35坪3LDK+納戸
新潟県柏崎市三和町135-12
株式会社ヒノキヤグループ パパまるハウスカンパニー長岡支店
価格
:
31,500,000
円
土地面積
:188.48㎡ /57.01坪
建物面積
:115.92㎡ /35.06坪
間取り
:3LDK
築年月
:2025年7月
公開期間終了につき、価格改定しました。☆内見でQUOカードプレゼント☆広々敷地79.37坪、平屋住宅25.05坪。3LDK、駐車2台可。家具付き住宅
陽光台モデルハウス
新潟県長岡市陽光台4丁目
株式会社 エヌ・アール・ケー総合企画
価格
:
31,800,000
円
土地面積
:262.39㎡ /79.37坪
建物面積
:82.81㎡ /25.05坪
間取り
:3LDK
築年月
:2024年4月
◆アクセントクロス3面分プレゼントキャンペーン実施中! 【乾太くん・1階物干し・食洗器】完備の家事楽なお家♪4台駐車可能な駐車場♪
長岡市新保4丁目 建売住宅
新潟県長岡市新保4丁目5番地6
ハーバーエステート株式会社
価格
:
31,800,000
円
土地面積
:214.19㎡ /64.79坪
建物面積
:96.05㎡ /29.05坪
間取り
:3LDK
築年月
:2025年9月
【豊田小・旭岡中学校エリアに3LDK平屋住宅】 ■前面道路に消雪パイプ完備 ■熱交換換気扇&二重断熱で快適な住まい ■エアコン2台完備 ■家事動線・収納力に優れた間取り
(新築住宅)長岡市錦
新潟県長岡市錦3丁目5-21付近
新潟土地建物販売センター 株式会社
価格
:
31,800,000
円
土地面積
:208㎡ /62.92坪
建物面積
:74.52㎡ /22.54坪
間取り
:3LDK
築年月
:2025年12月
【駐車4台可能】二重断熱×熱交換換気扇で省エネ&快適な住まい ■前面道路6m、消雪パイプあり ■エアコン2台付き ■人気の衣類乾燥機『乾太くん』設置済み
長岡市新保 新築住宅
新潟県長岡市新保4丁目5-6付近
新潟土地建物販売センター 株式会社
価格
:
31,800,000
円
土地面積
:214.19㎡ /64.79坪
建物面積
:96.05㎡ /29.05坪
間取り
:3LDK
築年月
:2025年9月
\コンビニ、スーパー、公園が徒歩10分圏内のエリア!/ 高天井のリビングなので平屋でも開放的です☆ 二重断熱の3LDK平屋。駐車場は2台分です◎
新潟市江南区亀田中島 新築平屋建売住宅
新潟県新潟市江南区亀田中島2丁目1567番5
戸建エース / (株)アップデート不動産
価格
:
31,800,000
円
土地面積
:208.98㎡ /63.21坪
建物面積
:77.84㎡ /23.54坪
間取り
:3LDK
築年月
:2024年2月
《★完成前ご契約特典》 家具セット&カーテンをプレゼントいたします♪
長岡市上除町A 新築戸建住宅
新潟県長岡市上除町西原甲1945番5
株式会社 ステーツ
価格
:
32,160,000
円
土地面積
:180.46㎡ /54.58坪
建物面積
:100.2㎡ /30.31坪
間取り
:3LDK
築年月
:2025年9月
【仲介料不要】公園近くの長岡で人気の花園エリア!!全館空調で家中快適です
花園2丁目35坪3LDK+ランドリースペース
新潟県長岡市花園2-3-24
株式会社ヒノキヤグループ パパまるハウスカンパニー長岡支店
価格
:
32,500,000
円
土地面積
:165.62㎡ /50.1坪
建物面積
:106.81㎡ /32.31坪
間取り
:3LDK
築年月
:2025年6月
北海道の仕様を取り入れた二重断熱で高気密高断熱住宅!エアコン1台で冬は暖かく、夏は涼しく快適に☆
西区小針4丁目 新築建売住宅
新潟県新潟市西区小針4丁目623-3
株式会社アップデート不動産
価格
:
32,800,000
円
土地面積
:211.67㎡ /64.03坪
建物面積
:92.74㎡ /28.05坪
間取り
:3LDK
築年月
:2024年8月
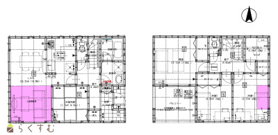
越後線関屋駅から徒歩9分。家事ラク動線の4LDK+ランドリースペース!小学校徒歩4分の安心立地。
中央区堀割町 新築戸建
新潟県新潟市中央区堀割町2番13号5
有限会社 ブライトサクセス
価格
:
32,980,000
円
土地面積
:177.93㎡ /53.82坪
建物面積
:104.62㎡ /31.64坪
間取り
:4LDK
築年月
:2025年2月
【価格改定】 ☆オープンハウス開催中(予約制) ☆関屋駅徒歩9分、小・中学校徒歩圏内の通勤通学に便利な立地! ☆水まわりを集約した家事動線の良い間取り ☆マイクロバブル給湯器・食洗機・浴室暖房乾燥機・幹太くんを標準装備 ☆ランドリースペース付き ☆南東向きバルコニー ☆駐車並列3台可
【テイラーハウス】新潟市中央区堀割町(B棟)
新潟県新潟市中央区堀割町2-13-5B棟
株式会社ハーツリアルエステート 新潟支店
価格
:
32,980,000
円
土地面積
:177.93㎡ /53.82坪
建物面積
:104.62㎡ /31.64坪
間取り
:4LDK
築年月
:2025年2月
表示切替:
一覧表示
/
地図表示
並び替え:
指定なし
新着順
価格が安い順
価格が高い順
価格は物件の代金総額を表示しており、消費税が課税される場合は税込み価格です。
建築条件付き土地価格には、建物価格は含まれません。
物件情報の詳細については取り扱い店までお問い合わせください。
完成予想図はいずれも外構・植栽・外観等実際のものと異なることが多少あります。
CG合成の画像の場合実際と異なることが多少あります。
完成後1年以上経過したものが未入居として記載される場合があります。ご了承ください。
販売予定物件は販売開始するまで契約または予約の申し込みはできません。
ご購入の場合物件詳細や契約内容についてご自身で十分ご確認いただきますようよろしく御願いします。
建築条件付きとは…その土地に建築する建物の建築請負契約が、一定期間内に成立することを条件として売買される土地のことをいいます。請負契約成立に向けて設計プランを協議するため、土地購入者が希望する建物にするために一定の期間(概ね3ヶ月)交渉期間としその期間内に希望するプランが実現できたかどうかによって土地の購入の判断をします。納得のいくプランができず請負契約が未成立になった場合、土地契約にかかった代金(手付金など)は、すべて返却されます。
164件
該当しました。
<前のページ
1
2
3
4
5
6
7
8
9
次のページ>
0件
がマッチ
基本条件
物件種別
新築一戸建て
価格
下限なし
100万円
250万円
500万円
1000万円
1500万円
2000万円
2500万円
3000万円
3500万円
4000万円
4500万円
5000万円
5500万円
6000万円
6500万円
7000万円
7500万円
8000万円
8500万円
9000万円
9500万円
1億円
~
上限なし
100万円
250万円
500万円
1000万円
1500万円
2000万円
2500万円
3000万円
3500万円
4000万円
4500万円
5000万円
5500万円
6000万円
6500万円
7000万円
7500万円
8000万円
8500万円
9000万円
9500万円
1億円
間取り
ワンルーム
1K
1DK
1LDK
2K
2DK
2LDK
3K
3DK
3LDK
4K
4DK
4LDK以上
専有面積
下限なし
20㎡
30㎡
40㎡
50㎡
60㎡
70㎡
80㎡
90㎡
100㎡
~
上限なし
20㎡
30㎡
40㎡
50㎡
60㎡
70㎡
80㎡
90㎡
100㎡
土地面積
下限なし
60㎡ (約18坪)
70㎡ (約21坪)
80㎡ (約24坪)
90㎡ (約27坪)
100㎡ (約30坪)
110㎡ (約33坪)
120㎡ (約36坪)
130㎡ (約39坪)
140㎡ (約42坪)
150㎡ (約45坪)
160㎡ (約48坪)
170㎡ (約51坪)
180㎡ (約54坪)
190㎡ (約57坪)
200㎡ (約60坪)
250㎡ (約75坪)
300㎡ (約90坪)
~
上限なし
60㎡ (約18坪)
70㎡ (約21坪)
80㎡ (約24坪)
90㎡ (約27坪)
100㎡ (約30坪)
110㎡ (約33坪)
120㎡ (約36坪)
130㎡ (約39坪)
140㎡ (約42坪)
150㎡ (約45坪)
160㎡ (約48坪)
170㎡ (約51坪)
180㎡ (約54坪)
190㎡ (約57坪)
200㎡ (約60坪)
250㎡ (約75坪)
300㎡ (約90坪)
建物面積
下限なし
60㎡ (約18坪)
70㎡ (約21坪)
80㎡ (約24坪)
90㎡ (約27坪)
100㎡ (約30坪)
110㎡ (約33坪)
120㎡ (約36坪)
130㎡ (約39坪)
140㎡ (約42坪)
150㎡ (約45坪)
160㎡ (約48坪)
170㎡ (約51坪)
180㎡ (約54坪)
190㎡ (約57坪)
200㎡ (約60坪)
250㎡ (約75坪)
300㎡ (約90坪)
~
上限なし
60㎡ (約18坪)
70㎡ (約21坪)
80㎡ (約24坪)
90㎡ (約27坪)
100㎡ (約30坪)
110㎡ (約33坪)
120㎡ (約36坪)
130㎡ (約39坪)
140㎡ (約42坪)
150㎡ (約45坪)
160㎡ (約48坪)
170㎡ (約51坪)
180㎡ (約54坪)
190㎡ (約57坪)
200㎡ (約60坪)
250㎡ (約75坪)
300㎡ (約90坪)
坪単価
下限なし
5万円
10万円
15万円
20万円
25万円
30万円
35万円
40万円
45万円
50万円
~
上限なし
5万円
10万円
15万円
20万円
25万円
30万円
35万円
40万円
45万円
50万円
築年数
指定なし
新築
3年以内
5年以内
10年以内
15年以内
20年以内
方位
北
北東
東
南東
南
南西
西
北西
おすすめ条件
ペット可・相談
楽器可・相談
情報公開日
指定なし
本日
3日以内
1週間以内
1ヶ月以内
0件
がマッチ
人気のあるこだわり条件
角地(32)
高台に立地(11)
整形地(122)
前面道路6m以上(121)
日当り良好(127)
閑静な住宅街(125)
スーパー近く(89)
長期優良住宅(21)
設計住宅性能評価付き(26)
耐震構造(41)
BELS/省エネ基準適合認定建物(54)
瑕疵担保保険付き(34)
建物確認・完了検査済証あり(39)
フラット35S適合(35)
LDK15畳以上(126)
全室フローリング(125)
天井高2.5m以上(20)
駐車場2台以上(116)
駐車場3台以上(79)
南向き(66)
庭あり(68)
TVインターホン(147)
複層ガラス(139)
ディンプルキー(67)
システムキッチン(154)
カウンターキッチン(95)
IHクッキングヒーター(129)
浄水器(44)
食器洗浄乾燥機(75)
3口コンロ(96)
ガスコンロ設置済み(18)
追いだき機能付き(142)
浴室暖房乾燥機(41)
バス1坪以上(142)
浴室TV(2)
温水洗浄便座(150)
シャワー付き洗面台(145)
エアコン(120)
床暖房(8)
24時間換気システム(124)
全室エアコン(6)
オール電化(96)
太陽光発電システム(8)
省エネ給湯(130)
高気密高断熱住宅(107)
ウッドデッキ・テラス(24)
ルーフバルコニー(3)
都市ガス(69)
LPG(1)
上水道(161)
下水道(155)
浄化槽(8)
電気(146)
その他水道(1)
ウォークインクローゼット(113)
全居室収納あり(135)
床下収納(45)
シューズインクローゼット(64)
シューズBOX(95)
BS端子(17)
CS(2)
CATV(1)
LAN端子(18)
照明器具付き(108)
即引き渡し可能(53)
バリアフリー(51)
条件に合った物件数は、
0 件
です。
立地・環境
角地(32)
高台に立地(11)
整形地(122)
前面道路6m以上(121)
日当り良好(127)
閑静な住宅街(125)
スーパー近く(89)
構造・工法・仕様
長期優良住宅(21)
設計住宅性能評価付き(26)
耐震構造(41)
BELS/省エネ基準適合認定建物(54)
瑕疵担保保険付き(34)
建物確認・完了検査済証あり(39)
フラット35S適合(35)
面積・間取り
LDK15畳以上(126)
全室フローリング(125)
天井高2.5m以上(20)
駐車・駐輪
駐車場2台以上(116)
駐車場3台以上(79)
採光・向き
南向き(66)
ガーデン
庭あり(68)
管理・防犯
TVインターホン(147)
複層ガラス(139)
ディンプルキー(67)
キッチン
システムキッチン(154)
カウンターキッチン(95)
IHクッキングヒーター(129)
浄水器(44)
食器洗浄乾燥機(75)
3口コンロ(96)
ガスコンロ設置済み(18)
浴室
追いだき機能付き(142)
浴室暖房乾燥機(41)
バス1坪以上(142)
浴室TV(2)
トイレ
温水洗浄便座(150)
洗面所
シャワー付き洗面台(145)
冷暖房・空調
エアコン(120)
床暖房(8)
24時間換気システム(124)
全室エアコン(6)
光熱設備
オール電化(96)
太陽光発電システム(8)
省エネ給湯(130)
高気密高断熱住宅(107)
バルコニー・テラス
ウッドデッキ・テラス(24)
ルーフバルコニー(3)
室内仕様・設備
都市ガス(69)
LPG(1)
上水道(161)
下水道(155)
浄化槽(8)
電気(146)
その他水道(1)
収納
ウォークインクローゼット(113)
全居室収納あり(135)
床下収納(45)
シューズインクローゼット(64)
シューズBOX(95)
電気設備
BS端子(17)
CS(2)
CATV(1)
LAN端子(18)
照明器具付き(108)
費用・入居・引渡・条件
即引き渡し可能(53)
その他
バリアフリー(51)
条件に合った物件数は、
0 件
です。
アパート・マンション・一戸建て
/
駐車場
/
貸土地
/
店舗
/
事務所
/
倉庫・工場
新築分譲マンション
/
中古マンション
/
新築一戸建て
/
中古一戸建て
/
売土地
/
投資物件・その他
マンション
/
一戸建て
/
土地
建てる・リフォーム
物件掲載企業一覧
掲載希望の企業様へ
新潟の不動産情報サイト
サービス利用規約
運営会社
サイトマップ
プライバシーポリシー
お問い合わせ
リンク
Copyright (C)
株式会社 コモンライフ・コーポレーション
. All Rights Reserved.
新潟・長岡・柏崎の賃貸・マンション・アパート・住宅の不動産物件情報サイト
不動産検索サイト「らくすむ」及び関連サイトに記載の不動産情報は、会員規約に則り、情報提供会社様の責任のもとに発信されております。
不動産の賃借、購入に関しては賃借者、購入者ご自身が情報を確認され、会社企業様から説明を受けられたうえで判断をお願いいたします。
不動産検索サイト「らくすむ」及び関連サイトに記載の不動産情報、写真、デザイン、コンテンツなどの
無断転載・転用・複製
など禁止します。