物件掲載企業数:295|賃貸物件:3,346件|売買物件:3,307件|今週の登録物件:320
閲覧中のブラウザ(インターネットエクスプローラー)は非推奨ブラウザです。
物件が正しく表示されなかったり、正しく検索されない場合があります。最新のブラウザ(Google Chrome・Edgeなど)にてご利用お願いいたします。
  

南中学校区貸店舗一覧

表示切替: 一覧表示 地図表示    並び替え:
画像 物件名
所在地
取扱店
面積
間取り
所在階
築年数
賃料
管理費等
共益費
敷金
保証金
礼金
柿川沿い小スペースの店舗用。改装自由、各種応談します
物件画像
物件画像
物件画像
物件画像
詳細☆お気に入り★お気に入り
柏町スロウハイツ1階店舗
    新潟県長岡市柏町2-8-29柏町スロウハイツ1階
    (店舗)
    19.44㎡
    (5.88坪)
    -
    1階
    不詳
    3.3万円
    なし
    なし
    3ヶ月
    なし
    なし
    写真たくさんあり!!
    長岡駅近くの店舗物件です。駐車場1台付
    物件画像
    物件画像
    物件画像
    物件画像
    詳細☆お気に入り★お気に入り
    アメジストビル新館3F
      新潟県長岡市坂之上町2-4-11アメジストビル新館3F
      (店舗)
      28.8㎡
      (8.71坪)
      -
      3階
      不詳
      6.05万円
      なし
      なし
      3ヶ月
      なし
      なし
      写真たくさんあり!!
      長岡駅近くの店舗物件です。駐車場1台付
      物件画像
      物件画像
      物件画像
      物件画像
      詳細☆お気に入り★お気に入り
      アメジストビル旧館2F
        新潟県長岡市坂之上町2-4-11アメジストビル旧館2F
        (店舗)
        53.64㎡
        (16.22坪)
        -
        2階
        不詳
        7.7万円
        なし
        なし
        3ヶ月
        なし
        なし
        写真たくさんあり!!
        長岡駅徒歩9分!角地!
        物件画像
        物件画像
        物件画像
        物件画像
        詳細☆お気に入り★お気に入り
        原貸店舗
          新潟県長岡市弓町2丁目2番8号
          (店舗)
          42.44㎡
          (12.83坪)
          -
          1階
          55年
          8万円
          なし
          なし
          3ヶ月
          なし
          なし
          写真たくさんあり!!
          悠久山通りに面した好立地
          物件画像
          物件画像
          物件画像
          物件画像
          詳細☆お気に入り★お気に入り
          四郎丸3丁目 『四郎丸3丁目ビル』 1階
            長岡市四郎丸3-1-1
            (店舗)
            39.5㎡
            (11.94坪)
            -
            1階
            40年
            8万円
            なし
            なし
            2ヶ月
            なし
            なし
            1棟貸しです。リフォーム自由です
            物件画像
            物件画像
            物件画像
            物件画像
            詳細☆お気に入り★お気に入り
            柏町ほたるビル(店舗・事務所)
              新潟県長岡市柏町2-8-25
              (店舗)
              178㎡
              (53.84坪)
              -
              -
              不詳
              11万円
              なし
              なし
              3ヶ月
              なし
              なし
              写真たくさんあり!!
              長岡駅東口から徒歩3分!カフェ向きです!
              物件画像
              物件画像
              物件画像
              物件画像
              詳細☆お気に入り★お気に入り
              台町貸店舗(旧弥エ門)
                新潟県長岡市台町2丁目2-4
                (店舗)
                44.93㎡
                (13.59坪)
                -
                1階
                54年
                11万円
                なし
                なし
                30万円
                なし
                なし
                写真たくさんあり!!
                店舗併用住宅です。悠久山通りに面した好立地
                物件画像
                物件画像
                物件画像
                物件画像
                詳細☆お気に入り★お気に入り
                四郎丸3丁目 『四郎丸3丁目ビル』
                  長岡市四郎丸3-1-1
                  (店舗)
                  118.65㎡
                  (35.89坪)
                  -
                  -
                  40年
                  12.5万円
                  なし
                  なし
                  2ヶ月
                  なし
                  なし
                  写真たくさんあり!!
                  物件画像
                  物件画像
                  物件画像
                  物件画像
                  詳細☆お気に入り★お気に入り
                  旭町キットビル 1F
                    新潟県長岡市旭町2丁目3-6旭町キットビル1F
                    (店舗)
                    181.37㎡
                    (54.86坪)
                    -
                    1階
                    不詳
                    13.2万円
                    なし
                    なし
                    2ヶ月
                    なし
                    なし
                    長岡駅より徒歩3分!!
                    物件画像
                    物件画像
                    物件画像
                    物件画像
                    詳細☆お気に入り★お気に入り
                    川上ビル
                    2号室
                      新潟県長岡市台町1丁目7-38川上ビル 2階
                      (店舗)
                      117.89㎡
                      (35.66坪)
                      -
                      2階
                      39年
                      14.8万円
                      なし
                      なし
                      3ヶ月
                      なし
                      なし
                      長岡駅東口近く♪
                      物件画像
                      物件画像
                      物件画像
                      物件画像
                      詳細☆お気に入り★お気に入り
                      ウェステリア台町 1・2階
                        新潟県長岡市台町1-8-13ウェステリア台町1・2F
                        (店舗)
                        306.1㎡
                        (92.59坪)
                        -
                        1.2階
                        28年
                        16.5万円
                        なし
                        なし
                        1ヶ月
                        なし
                        なし
                        写真たくさんあり!!
                        物件画像
                        物件画像
                        物件画像
                        物件画像
                        詳細☆お気に入り★お気に入り
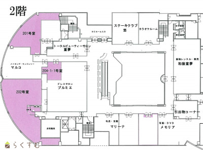
                        ホテルニューオータニ長岡
                        106号室
                          新潟県長岡市台町2丁目8-35106
                          (店舗)
                          85.62㎡
                          (25.9坪)
                          -
                          1階
                          41年
                          18.13万円
                          なし
                          あり
                          10ヶ月
                          なし
                          なし
                          ~ホテルニューオータニ長岡のテナントスペース ~ 中庭を囲むように配置された店舗。ショップやオフィスにおすすめですよ。
                          物件画像
                          物件画像
                          物件画像
                          物件画像
                          詳細☆お気に入り★お気に入り
                          ホテルニューオータニ長岡 テナント 201
                          201号室
                            新潟県長岡市台町2丁目8番35号
                            (店舗)
                            119.77㎡
                            (36.23坪)
                            -
                            2階
                            41年
                            21.738万円
                            なし
                            あり
                            10ヶ月
                            なし
                            なし
                            2階倉庫は無料にて使用可能!広々駐車場5台 さいわいプラザ近く
                            物件画像
                            物件画像
                            物件画像
                            物件画像
                            詳細☆お気に入り★お気に入り
                            【幸町三丁目】 店舗、事務所、倉庫 
                              新潟県長岡市幸町3丁目5番12
                              (店舗)
                              238.48㎡
                              (72.14坪)
                              -
                              -
                              49年
                              22万円
                              なし
                              なし
                              3ヶ月
                              なし
                              1ヶ月
                              写真たくさんあり!!
                              物件画像
                              物件画像
                              物件画像
                              物件画像
                              詳細☆お気に入り★お気に入り
                              貸店舗 千歳1丁目 57坪
                              • 新着
                              新潟県長岡市千歳長岡市千歳1丁目38
                              (店舗)
                              189.95㎡
                              (57.45坪)
                              -
                              -
                              35年
                              22万円
                              なし
                              なし
                              3ヶ月
                              なし
                              なし
                              長岡駅まで徒歩13分の立地で駐車場5台以上! スケルトン渡しです(内装の相談承ります!)
                              物件画像
                              物件画像
                              物件画像
                              物件画像
                              詳細☆お気に入り★お気に入り
                              四郎丸 青空ビル1階
                                新潟県長岡市四郎丸2丁目4-20
                                (店舗)
                                153.55㎡
                                (46.44坪)
                                -
                                1階
                                44年
                                24.2万円
                                3,000円/月
                                なし
                                66万円
                                なし
                                なし
                                写真たくさんあり!!
                                物件画像
                                物件画像
                                物件画像
                                物件画像
                                詳細☆お気に入り★お気に入り
                                ホテルニューオータニ長岡
                                202号室
                                  新潟県長岡市台町2丁目8-35
                                  (店舗)
                                  255.22㎡
                                  (77.2坪)
                                  -
                                  -
                                  41年
                                  46.32万円
                                  なし
                                  386,000円
                                  10ヶ月
                                  なし
                                  なし
                                  200坪超の大型テナント、スーパーマーケット跡の物件です!
                                  物件画像
                                  物件画像
                                  物件画像
                                  物件画像
                                  詳細☆お気に入り★お気に入り
                                  美沢貸店舗
                                    新潟県長岡市美沢3-86-9
                                    (店舗)
                                    966.79㎡
                                    (292.45坪)
                                    -
                                    1階
                                    41年
                                    55万円
                                    なし
                                    なし
                                    2ヶ月
                                    なし
                                    1ヶ月
                                    表示切替: 一覧表示 地図表示    並び替え:
                                    0件がマッチ
                                    基本条件
                                    物件種別 店舗
                                    賃料


                                    間取り
                                    所在階
                                    面積
                                    築年数
                                    方位
                                    おすすめ条件
                                    情報公開日
                                    0件がマッチ
                                    人気のあるこだわり条件