店舗併用住宅です。悠久山通りに面した好立地
| 物件名
							 所在地  | 
							面積
							 間取り 所在階  | 
							築年数
							 方位  | 
							賃料
							 管理費等 共益費  | 
							敷金
							 保証金 礼金  | 
							種別
							 構造  | 
						
|---|---|---|---|---|---|
| 四郎丸3丁目 『四郎丸3丁目ビル』 長岡市四郎丸3-1-1  | 118.65㎡ (35.89坪) - -  | 40年 -  | 14.5万円 なし なし  | 2ヶ月 なし なし  | 店舗 鉄骨  | 
						
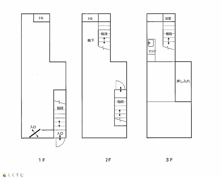
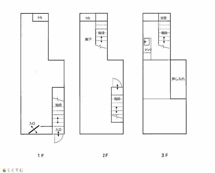
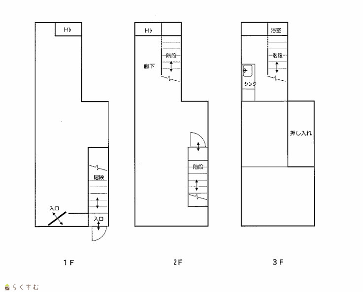
| 外観 | 間取り | 
|---|---|
| 
								 ※画像クリックで拡大表示 外観 
							 | 
							
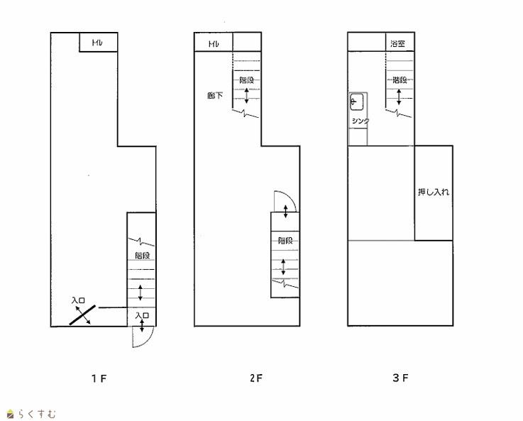
								![]() ※画像クリックで拡大表示 間取り 
							 | 
						
| 詳細画像 | |
| 
								 | 
						|
| 屋上より長岡花火が見れます | |||
| 物件コード | 00011-100529 | ||
|---|---|---|---|
| 物件名 | 四郎丸3丁目 『四郎丸3丁目ビル』 | ||
| 交通 | 駅:信越線 長岡駅から徒歩12分、バス:学校町1丁目から徒歩2分 | ||
| 所在地 | 長岡市四郎丸3-1-1 | ||
| 物件種別 | 店舗 | ||
| 総戸数 | - | ||
| 構造 | 鉄骨 | 階建 | 地上3階建 | 
| 所在階/階数 | - | 号室 | - | 
| 面積 | 118.65㎡ /35.89坪 | 方位 | - | 
| 間取り | - | ||
| 賃料 | 14.5万円/月
								
								 | 
							管理費 | - | 
| 礼金 | - | 敷金 | 2ヶ月
								
								 | 
						
| ほか初期費用 | - | その他諸費用 | - | 
| 更新料 | - | 火災(家財)保険 | - | 
| 共益費 | - | 町内費 | - | 
| 駐車場 | - | バイク料金 | - | 
| 鍵交換費 | - | 清掃料 | - | 
| 更新事務手数料 | - | ||
| 保証区分 | 
								保証会社+緊急連絡先 | 
						||
| 保証会社 | 
							   区分:加入要
							   
							  	 							    保証会社名:その他 (Jリース) -  | 
							
						||
| 連帯保証人 | 
							   区分:不要 -  | 
						||
| 仲介手数料 | 
								
																	159,500円
									 | 
							
						||
| 築年月 | 1985年3月(築40年) | ||
| 利用制限 | ペット:不可、楽器:不可 | ||
| 学校区 | 四郎丸小学校(276m)・南中学校(963m) | ||
| 設備 | 2階以上、エアコン、給湯 | ||
| 入居時期 | 即入居可 | ||
| 取引態様 | 仲介 | ||
| 備考 | 全館内装工事済です。 | ||
| 手数料負担割合/配分割合 | 貸主:-% 借主:100% / 元付:50% 客付:50% | ||
| 取り扱い会社 | 
								 ㈱スタッフサイトウ不動産部 新潟県長岡市蔵王2丁目4番17号  | 
						||
| 情報登録日 | 2025/07/30 | 次回更新予定日 | 2025/11/19 | 
| 
																		マルイ 長岡学校町店(スーパー)まで410m セブン銀行ATM(銀行)まで690m  | 
																
																		長岡四郎丸郵便局(郵便局)まで100m  | 
															
※カメラのアイコンがある場合は、マウスをポイントするとその施設の画像がご覧いただけます。
| TEL: | 0258-24-0623 | |
|---|---|---|
| 所在地: | 新潟県長岡市蔵王2丁目4番17号 | |
| 交通: | JR北長岡駅 | |
| 営業時間: | 8:30~17:30/定休日:第2・4土曜・日曜・祭日 | |
| 免許番号: | 新潟県知事(2)第5364号 | 
										
											 | 
								
| 所属団体名: | 新潟県宅地建物取引業協会 長岡支部 | |
| 取引態様: | 仲介 | |
| ホームページ: | http://hokuetsu-fudousan.com | |