物件掲載企業数:299|賃貸物件:3,040件|売買物件:3,233件|今週の登録物件:347
閲覧中のブラウザ(インターネットエクスプローラー)は非推奨ブラウザです。
物件が正しく表示されなかったり、正しく検索されない場合があります。最新のブラウザ(Google Chrome・Edgeなど)にてご利用お願いいたします。
  

全エリア月極駐車場一覧

表示切替: 一覧表示 地図表示    並び替え:
画像 物件名
所在地
取扱店
面積
間取り
所在階
築年数
賃料
管理費等
共益費
敷金
保証金
礼金
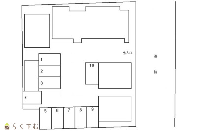
長岡工業高校まで徒歩8分!融雪井戸を新しくしました☆
物件画像
物件画像
物件画像
物件画像
詳細☆お気に入り★お気に入り
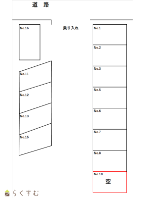
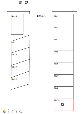
工業高校徒歩8分!千手グリーンパーキングNo.12
    新潟県長岡市西千手3-85
    (駐車場)
    -
    -
    -
    -
    0.8万円
    なし
    なし
    なし
    なし
    なし
      短期間は12,000円です。
      物件画像
      物件画像
      物件画像
      物件画像
      詳細☆お気に入り★お気に入り
      丸山パーキング
        新潟県長岡市新保1丁目9-10
        (駐車場)
        -
        -
        -
        -
        0.8万円
        なし
        なし
        1ヶ月
        なし
        なし
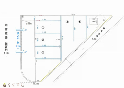
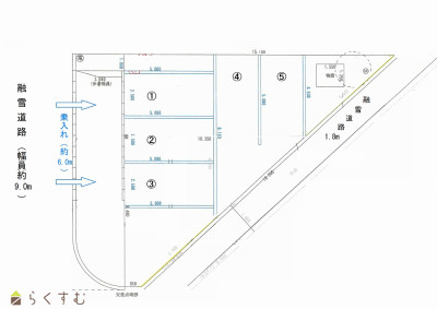
          2026/4/1~利用可(3台/区画2・8・27) 融雪があるので冬場も安心です♪
          物件画像
          物件画像
          物件画像
          物件画像
          詳細☆お気に入り★お気に入り
          あすなろパーキング
            新潟県長岡市西千手1丁目1745
            (駐車場)
            -
            -
            -
            -
            0.8万円
            なし
            なし
            なし
            なし
            なし
            写真たくさんあり!!
              長岡バイパスへのアクセス良好、川崎方面や長岡駅、川西方面へもスムーズです。
              物件画像
              物件画像
              物件画像
              物件画像
              詳細☆お気に入り★お気に入り
              【賃貸】東新町1丁目 駐車場 NO.2
                新潟県長岡市東新町1丁目2-7
                (駐車場)
                -
                -
                -
                -
                0.8万円
                なし
                なし
                なし
                なし
                なし
                写真たくさんあり!!
                動画あり!!
                  長岡バイパスへのアクセス良好、川崎方面や長岡駅、川西方面へもスムーズです。
                  物件画像
                  物件画像
                  物件画像
                  物件画像
                  詳細☆お気に入り★お気に入り
                  【賃貸】東新町1丁目 駐車場 NO.5
                    新潟県長岡市東新町1丁目2-7
                    (駐車場)
                    -
                    -
                    -
                    -
                    0.8万円
                    なし
                    なし
                    なし
                    なし
                    なし
                    写真たくさんあり!!
                    動画あり!!
                      消雪設備有り 冬期・短期利用可(10,000円になります)
                      物件画像
                      物件画像
                      物件画像
                      物件画像
                      詳細☆お気に入り★お気に入り
                      小林パーキング
                        新潟県長岡市末広1-6-12
                        (駐車場)
                        -
                        -
                        -
                        -
                        0.8万円
                        なし
                        なし
                        なし
                        なし
                        なし
                          長岡バイパスへのアクセス良好、川崎方面や長岡駅、川西方面へもスムーズです。
                          物件画像
                          物件画像
                          物件画像
                          物件画像
                          詳細☆お気に入り★お気に入り
                          【賃貸】東新町1丁目 駐車場 NO.6
                            新潟県長岡市東新町1丁目2-7
                            (駐車場)
                            -
                            -
                            -
                            -
                            0.8万円
                            なし
                            なし
                            なし
                            なし
                            なし
                            写真たくさんあり!!
                            動画あり!!
                              貸主につき仲介手数料不要♪
                              物件画像
                              物件画像
                              物件画像
                              物件画像
                              詳細☆お気に入り★お気に入り
                              東神田駐車場
                                新潟県長岡市東神田3丁目甲1617-3 他
                                (駐車場)
                                -
                                -
                                -
                                -
                                0.838万円
                                なし
                                なし
                                なし
                                なし
                                なし
                                  物件画像
                                  物件画像
                                  物件画像
                                  物件画像
                                  詳細☆お気に入り★お気に入り
                                  ミナト月極駐車場
                                    新潟県上越市西本町1-2-26
                                    (駐車場)
                                    -
                                    -
                                    -
                                    -
                                    0.88万円
                                    なし
                                    なし
                                    なし
                                    なし
                                    なし
                                      当駐車場敷地内及び全面道路に融雪設備完備
                                      物件画像
                                      物件画像
                                      物件画像
                                      物件画像
                                      詳細☆お気に入り★お気に入り
                                      MUGIパーキング
                                        新潟県長岡市水道町4丁目2番8号
                                        (駐車場)
                                        -
                                        -
                                        -
                                        -
                                        0.88万円
                                        なし
                                        なし
                                        なし
                                        なし
                                        なし
                                        写真たくさんあり!!
                                          旧国道沿い、神田交差点近く
                                          物件画像
                                          物件画像
                                          物件画像
                                          物件画像
                                          詳細☆お気に入り★お気に入り
                                          パーク稲葉屋
                                            新潟県長岡市新町1丁目4-19
                                            (駐車場)
                                            -
                                            -
                                            -
                                            -
                                            0.88万円
                                            なし
                                            なし
                                            なし
                                            なし
                                            なし
                                            写真たくさんあり!!
                                              中島3丁目にある駐車場★ 長岡駅まで徒歩約14分!! 月額賃料8,000円(税別)です。
                                              物件画像
                                              物件画像
                                              物件画像
                                              物件画像
                                              詳細☆お気に入り★お気に入り
                                              やませ駐車場
                                                新潟県長岡市中島3丁目11-1
                                                (駐車場)
                                                -
                                                -
                                                -
                                                -
                                                0.88万円
                                                なし
                                                なし
                                                なし
                                                なし
                                                なし
                                                写真たくさんあり!!
                                                  融雪設備あり♪蔵王1丁目にあります!賃料月額8,800円です♪
                                                  物件画像
                                                  物件画像
                                                  物件画像
                                                  物件画像
                                                  詳細☆お気に入り★お気に入り
                                                  蔵王一丁目駐車場
                                                    新潟県長岡市蔵王1丁目2-9
                                                    (駐車場)
                                                    -
                                                    -
                                                    -
                                                    -
                                                    0.88万円
                                                    なし
                                                    なし
                                                    なし
                                                    なし
                                                    なし
                                                      神田町1丁目にある駐車場! 長岡駅まで徒歩約12分です。 月額賃料9,000円★
                                                      物件画像
                                                      物件画像
                                                      物件画像
                                                      物件画像
                                                      詳細☆お気に入り★お気に入り
                                                      こめさだパーキング
                                                        新潟県長岡市神田町1丁目1-9
                                                        (駐車場)
                                                        -
                                                        -
                                                        -
                                                        -
                                                        0.9万円
                                                        なし
                                                        なし
                                                        なし
                                                        なし
                                                        なし
                                                          2024年8月末までのお申込みの方は駐車料月額9,000円
                                                          物件画像
                                                          物件画像
                                                          物件画像
                                                          物件画像
                                                          詳細☆お気に入り★お気に入り
                                                          タウンパーキング
                                                            新潟県長岡市千手3丁目1-28、29
                                                            (駐車場)
                                                            -
                                                            -
                                                            -
                                                            -
                                                            0.9万円
                                                            なし
                                                            なし
                                                            なし
                                                            なし
                                                            なし
                                                              福住3丁目にある駐車場! 長岡駅まで徒歩約12分! 月額賃料9,000円★
                                                              物件画像
                                                              物件画像
                                                              物件画像
                                                              物件画像
                                                              詳細☆お気に入り★お気に入り
                                                              星野駐車場(福住)
                                                                新潟県長岡市福住3丁目130-9
                                                                (駐車場)
                                                                -
                                                                -
                                                                -
                                                                -
                                                                0.9万円
                                                                なし
                                                                なし
                                                                なし
                                                                なし
                                                                なし
                                                                写真たくさんあり!!
                                                                  四郎丸1丁目!  長岡駅まで徒歩約15分^^ 月額賃料9,000円です★
                                                                  物件画像
                                                                  物件画像
                                                                  物件画像
                                                                  物件画像
                                                                  詳細☆お気に入り★お気に入り
                                                                  赤城パーキング (青空)
                                                                    新潟県長岡市四郎丸1丁目1903-1
                                                                    (駐車場)
                                                                    -
                                                                    -
                                                                    -
                                                                    -
                                                                    0.9万円
                                                                    なし
                                                                    なし
                                                                    なし
                                                                    なし
                                                                    なし
                                                                      冬期間(12月~3月)のみ利用したい場合は、月額12,000円となります。
                                                                      物件画像
                                                                      物件画像
                                                                      物件画像
                                                                      物件画像
                                                                      詳細☆お気に入り★お気に入り
                                                                      パーキング佐藤
                                                                        新潟県長岡市今朝白2-2-29
                                                                        (駐車場)
                                                                        -
                                                                        -
                                                                        -
                                                                        -
                                                                        0.9万円
                                                                        なし
                                                                        なし
                                                                        なし
                                                                        なし
                                                                        なし
                                                                          物件画像
                                                                          物件画像
                                                                          物件画像
                                                                          物件画像
                                                                          詳細☆お気に入り★お気に入り
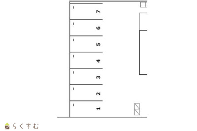
                                                                          今朝白駐車場 第5パーキング 区画9番(軽専用)
                                                                            新潟県長岡市今朝白1丁目
                                                                            (駐車場)
                                                                            -
                                                                            -
                                                                            -
                                                                            -
                                                                            0.9万円
                                                                            なし
                                                                            なし
                                                                            なし
                                                                            なし
                                                                            なし
                                                                              物件画像
                                                                              物件画像
                                                                              物件画像
                                                                              物件画像
                                                                              詳細☆お気に入り★お気に入り
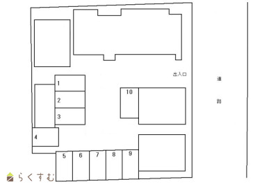
                                                                              中島立見屋駐車場
                                                                                新潟県長岡市中島5-27
                                                                                (駐車場)
                                                                                -
                                                                                -
                                                                                -
                                                                                -
                                                                                0.9万円
                                                                                なし
                                                                                なし
                                                                                なし
                                                                                なし
                                                                                なし
                                                                                写真たくさんあり!!
                                                                                  表示切替: 一覧表示 地図表示    並び替え:
                                                                                  0件がマッチ
                                                                                  基本条件
                                                                                  物件種別 駐車場
                                                                                  賃料


                                                                                  間取り
                                                                                  所在階
                                                                                  面積
                                                                                  築年数
                                                                                  方位
                                                                                  おすすめ条件
                                                                                  情報公開日
                                                                                  0件がマッチ
                                                                                  人気のあるこだわり条件