物件掲載企業数:297|賃貸物件:3,610件|売買物件:3,333件|今週の登録物件:272
閲覧中のブラウザ(インターネットエクスプローラー)は非推奨ブラウザです。
物件が正しく表示されなかったり、正しく検索されない場合があります。最新のブラウザ(Google Chrome・Edgeなど)にてご利用お願いいたします。
  

新潟県長岡市福住3丁目甲1106番3 駐車場 0.88万円の物件情報

消雪設備有り、前面消雪道路、JR長岡駅まで徒歩約10分

物件名
所在地
面積
間取り
所在階
築年数
方位
賃料
管理費等
共益費
敷金
保証金
礼金
種別
構造
フェリーチェ駐車場
新潟県長岡市福住3丁目甲1106番3
-
-
-
-
-
0.88万円
なし
なし
なし
なし
なし
駐車場
-
  • フェリーチェ駐車場
    ドアーズ 株式会社
  • この物件を問い合わせる/無料
  • TEL: 0258-21-3751

物件画像

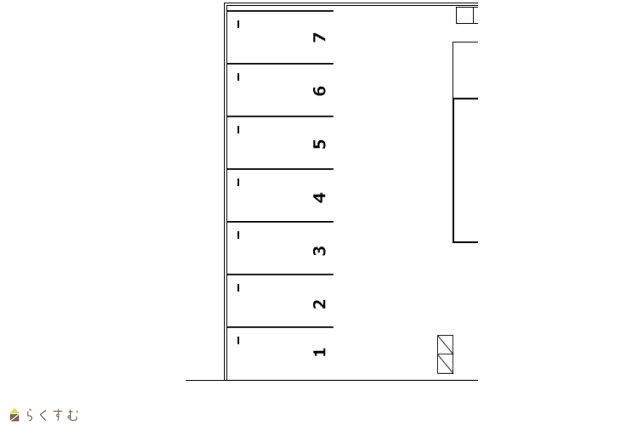
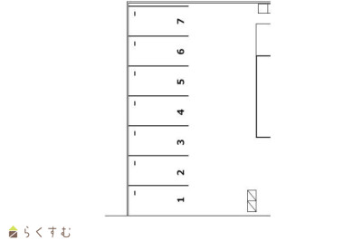
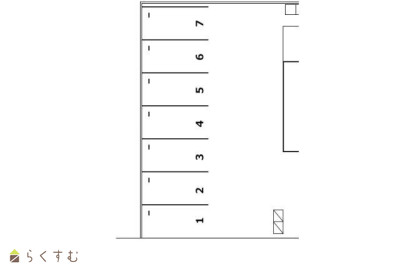
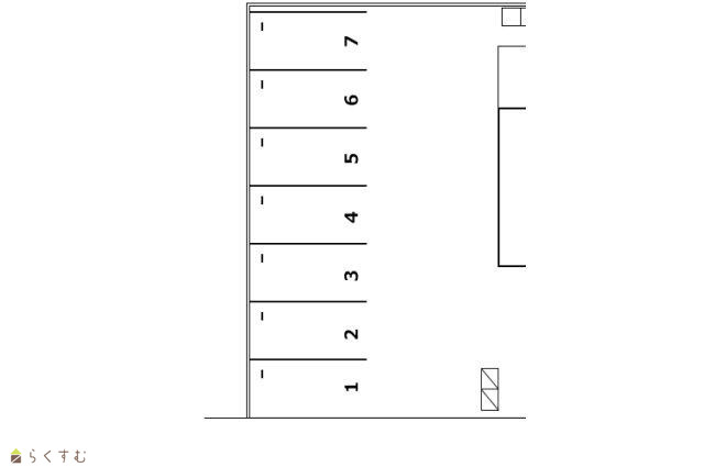
外観 間取り
物件画像
※画像クリックで拡大表示
外観
物件画像
※画像クリックで拡大表示
間取り
詳細画像


物件概要

賃貸保証料(初回):月額総賃料80%
物件コード 00043-104640
物件名 フェリーチェ駐車場
交通 駅:信越線 長岡駅から徒歩10分、バス:神田1丁目から徒歩7分
所在地 新潟県長岡市福住3丁目甲1106番3
物件種別 駐車場
総戸数 -
構造 - 階建 -
所在階/階数 - 号室 -
面積 - 方位 -
間取り -
賃料 0.88万円/月
管理費 -
礼金 - 敷金 -
ほか初期費用 - その他諸費用 -
更新料 - 火災(家財)保険 -
共益費 - 町内費 -
駐車場 - バイク料金 -
鍵交換費 - 清掃料 -
口座振替料 330円
更新事務手数料 -
保証区分 保証会社+緊急連絡先
保証会社 区分:加入要
保証会社名:ジェイリース
-
家賃保証金 7,040円
連帯保証人 区分:不要
-
仲介手数料 8,800円
築年月 -
利用制限 -
学校区 川崎小学校(494m)・東北中学校(1,105m)
設備 舗装、即利用可能、融雪井戸あり、保証会社要加入
入居時期 即入居可
取引態様 代理
備考 消雪設備有り、前面消雪道路、JR長岡駅まで徒歩約10分
手数料負担割合/配分割合 貸主:0%   借主:100% / 元付:50%   客付:50%  
取り扱い会社

ドアーズ 株式会社

新潟県長岡市古正寺町108-1

情報登録日 2025/08/11 次回更新予定日 2026/01/13
  • フェリーチェ駐車場
    ドアーズ 株式会社
  • この物件を問い合わせる/無料
  • TEL: 0258-21-3751

この物件の地図・周辺情報・行政情報

この物件の周辺情報・行政情報を詳しく見る
【周辺情報】
物件の近くにあるコンビニや銀行・学校など、アイコン付のマップで詳しく表示できます!
【行政情報】
水道料や下水道料・ガス料金など、暮らしに関係のある情報を表示しています。

担当取扱い店舗情報

取扱い店舗画像
ドアーズ 株式会社
TEL: 0258-21-3751
所在地: 新潟県長岡市古正寺町108-1
交通: 越後交通「西病院前」バス停徒歩約5分
営業時間: 9:00~18:00/定休日:年末・年始・GW・夏期(お盆)
免許番号: 新潟県知事(10)第2891号 この会社の情報を詳しく見る
所属団体名: 新潟県宅地建物取引業協会 長岡支部
取引態様: 代理
ホームページ: https://www.doors-net.jp