駅近く☆駐車場5台分・消雪設備有り☆
| 物件名
所在地 |
面積
間取り 所在階 |
築年数
方位 |
賃料
管理費等 共益費 |
敷金
保証金 礼金 |
種別
構造 |
|---|---|---|---|---|---|
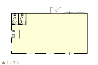
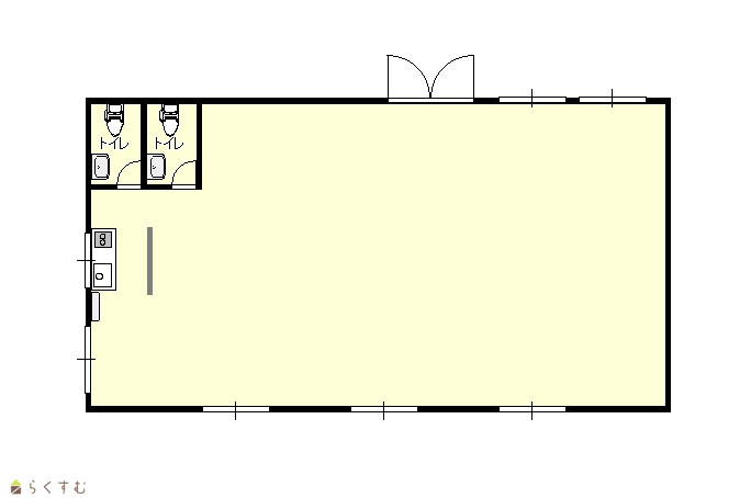
| 杉山ビル 1階事務所 新潟県上越市中通町5番7号 | 107.62㎡ (32.55坪) - 1階 | 40年 - | 8万円 なし なし | 3ヶ月 なし なし | 事務所 鉄骨 |
| 物件コード | 00308-100638 | ||
|---|---|---|---|
| 物件名 | 杉山ビル 1階事務所 | ||
| 交通 | 駅:妙高はねうまライン 南高田駅から徒歩2分、バス:南高田町から徒歩2分 | ||
| 所在地 | 新潟県上越市中通町5番7号 | ||
| 物件種別 | 事務所 | ||
| 総戸数 | - | ||
| 構造 | 鉄骨 | 階建 | 地上3階建 |
| 所在階/階数 | 1階/3階 | 号室 | - |
| 面積 | 107.62㎡ /32.55坪 | 方位 | - |
| 間取り | - | ||
| 賃料 | 8万円/月
|
管理費 | - |
| 礼金 | - | 敷金 | 3ヶ月
|
| ほか初期費用 | - | その他諸費用 | - |
| 更新料 | - | 火災(家財)保険 | 要加入 |
| 共益費 | - | 町内費 | 実費 |
| 駐車場 |
5台(追加 応相談) |
バイク料金 | - |
| 鍵交換費 | - | 清掃料 | - |
| 駐車場管理費(12月~2月のみ) |
10,000円
|
||
| 更新事務手数料 | - | ||
| 保証区分 |
保証会社+緊急連絡先 |
||
| 保証会社 |
区分:加入要
保証会社名:CIZ 月額総賃料の77%(契約時)事務手数料 2,200円 申込内容で変更有 |
||
| 家賃保証金 |
63,800円
|
||
| 連帯保証人 |
区分:不要 - |
||
| 仲介手数料 |
88,000円
|
||
| 築年月 | 1985年10月(築40年) | ||
| 利用制限 | - | ||
| 学校区 | 高田西小学校(1,237m)・城西中学校(319m) | ||
| 設備 | 融雪設備あり、エアコン、駐車場あり | ||
| 入居時期 | 即入居可 | ||
| 取引態様 | 仲介 | ||
| 備考 | - | ||
| 手数料負担割合/配分割合 | 貸主:-% 借主:100% / 元付:50% 客付:50% | ||
| 取り扱い会社 |
上越宅地販売株式会社 新潟県上越市南高田町1-2アサノビル1階 |
||
| 情報登録日 | 2025/11/08 | 次回更新予定日 | 2026/03/07 |
|
ローソン 上越中通町店(コンビニ)まで140m 上越地域医療センター病院(病院)まで570m |
高田中通簡易郵便局(郵便局)まで110m |
※カメラのアイコンがある場合は、マウスをポイントするとその施設の画像がご覧いただけます。
| TEL: | 025-522-3838 | |
|---|---|---|
| 所在地: | 新潟県上越市南高田町1-2アサノビル1階 | |
| 交通: | 妙高はねうまライン 南高田駅 徒歩1分 | |
| 営業時間: | 9:00~18:30/定休日:毎週水曜日・GW・夏季・・年末年始 | |
| 免許番号: | 新潟県知事(9)第3372号 | |
| 所属団体名: | 公社 新潟県宅地建物取引協会 上越支部 | |
| 取引態様: | 仲介 | |
| ホームページ: | http://takuhan.com/ | |