| 物件コード | 00308-100638 | ||
|---|---|---|---|
| 物件名 | 杉山ビル 1階事務所 | ||
| 交通 | 駅:妙高はねうまライン 南高田駅から徒歩2分、バス:南高田町から徒歩2分 | ||
| 所在地 | 新潟県上越市中通町5番7号 | ||
| 物件種別 | 事務所 | ||
| 総戸数 | - | ||
| 構造 | 鉄骨 | 階建 | 地上3階建 | 
| 所在階/階数 | 1階/3階 | 号室 | - | 
| 面積 | 107.62㎡ (32.55坪) | 方位 | - | 
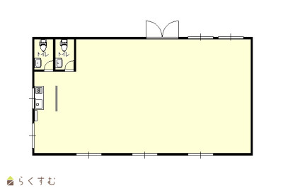
| 間取り | 
						 | 
					||
| 賃料 | 8万円/月
								
								 | 
							管理費 | - | 
| 礼金 | - | 敷金 | 3ヶ月
								
								 | 
						
| ほか初期費用 | - | その他諸費用 | - | 
| 更新料 | - | 火災(家財)保険 | 要加入 | 
| 共益費 | - | 町内費 | 実費 | 
| 駐車場 | 
																									
										
										 5台(追加 応相談)  | 
							
							バイク料金 | - | 
| 鍵交換費 | - | 清掃料 | - | 
| 駐車場管理費(12月~2月のみ) | 
									10,000円
									 | 
														||
| 更新事務手数料 | - | ||
| 保証区分 | 
								保証会社+緊急連絡先 | 
						||
| 保証会社 | 
							   区分:加入要 保証会社名:CIZ 月額総賃料の77%(契約時)申込内容で変更有  | 
							
						||
| 家賃保証金 | 
							61,600円							
															 | 
						||
| 連帯保証人 | 
							   区分:不要 -  | 
						||
| 仲介手数料 | 
								
																	88,000円
									 | 
							
						||
| 築年月 | 1985年10月(築40年) | ||
| 利用制限 | - | ||
| 学校区 | 高田西小学校(1,237m)・城西中学校(319m) | ||
| 設備 | 融雪設備あり、エアコン、駐車場あり | ||
| 入居時期 | 即入居可 | ||
| 取引態様 | 仲介 | ||
| 備考 | - | ||
| 手数料負担割合/配分割合 | 貸主:-% 借主:100% / 元付:50% 客付:50% | ||
| 情報登録日 | 2025/09/13 | 次回更新予定日 | 2025/11/19 | 
| 
							 | 
						
							 
						 | 
					
| 
							 | 
						
							 | 
					
| TEL: | 025-522-3838 | 
|---|---|
| 所在地: | 新潟県上越市南高田町1-2アサノビル1階 | 
| 交通: | 妙高はねうまライン 南高田駅 徒歩1分 | 
| 営業時間: | 9:00~18:30/定休日:毎週水曜日・GW・夏季・臨時休業(9/21日曜日)・年末年始 | 
| 免許番号: | 新潟県知事(9)第3372号 | 
| 所属団体名: | 公社 新潟県宅地建物取引協会 上越支部 | 
| 取引態様: | 仲介 |