物件掲載企業数:297|賃貸物件:3,610件|売買物件:3,333件|今週の登録物件:272
閲覧中のブラウザ(インターネットエクスプローラー)は非推奨ブラウザです。
物件が正しく表示されなかったり、正しく検索されない場合があります。最新のブラウザ(Google Chrome・Edgeなど)にてご利用お願いいたします。
  

新潟県長岡市坂之上町2丁目4番地5 店舗 30万円の物件情報

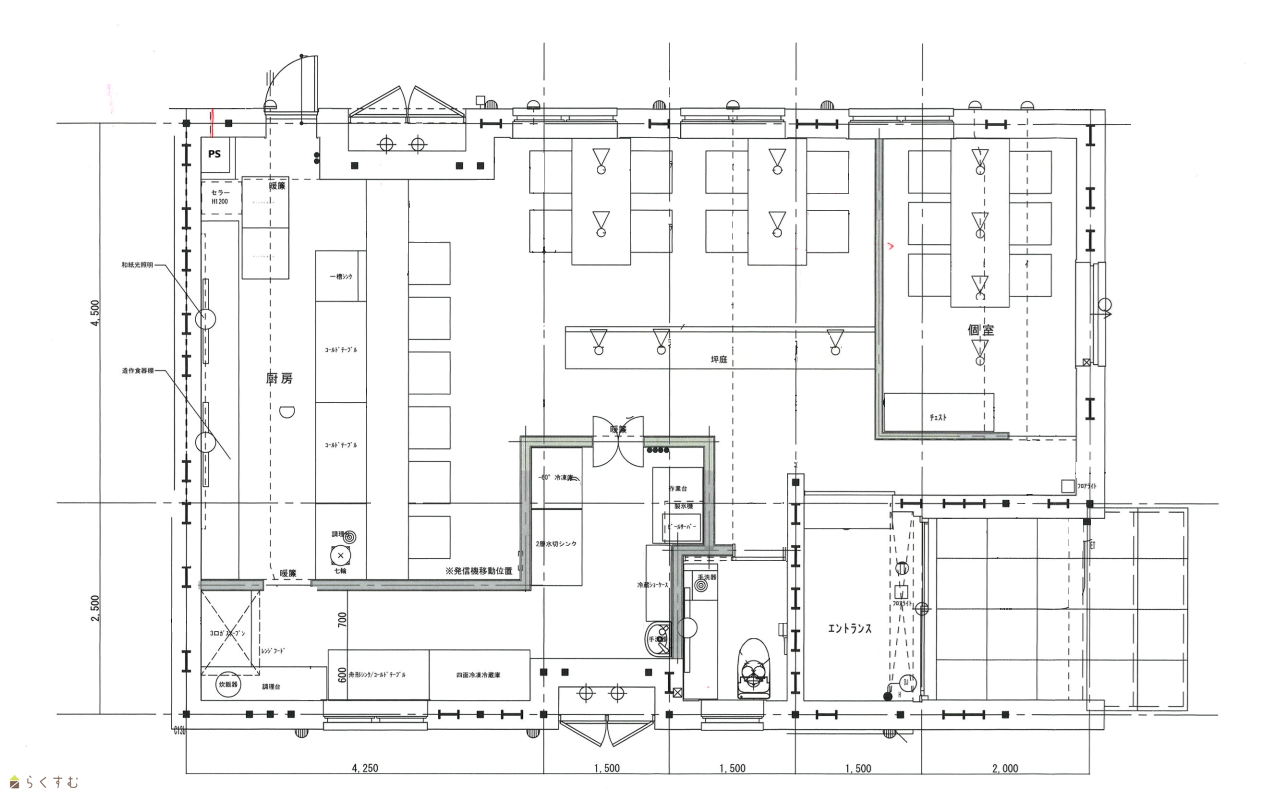
居抜き飲食店(寿司屋)、設備については引続き使用可(性能保証なし)、落ち着いた雰囲気の内装、高級感のある店内、店内に箱庭あり。

物件名
所在地
面積
間取り
所在階
築年数
方位
賃料
管理費等
共益費
敷金
保証金
礼金
種別
構造
居抜き 飲食店(鮨割烹) 店舗 
1号室
新潟県長岡市坂之上町2丁目4番地5
69.47㎡
(21.01坪)
-
1階
4年
-
30万円
8,000円/月
なし
3ヶ月
なし
1ヶ月
店舗
鉄骨
  • 居抜き 飲食店(鮨割烹) 店舗 
    SUMORE NAGAOKA KONOMA Real Estate co.,ltd.
  • この物件を問い合わせる/無料
  • TEL: 0258-89-7833

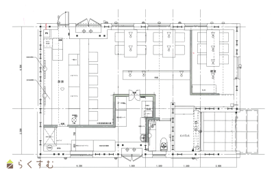
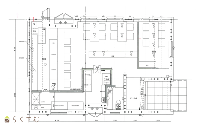
物件画像

外観 間取り
物件画像
※画像クリックで拡大表示
外観
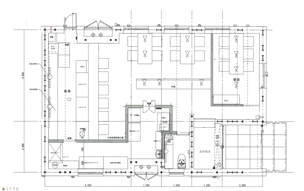
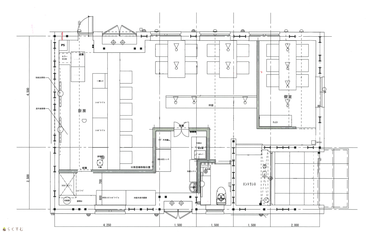
物件画像
※画像クリックで拡大表示
平面図
詳細画像


物件概要

ダウン照明、冷蔵・冷凍設備、机椅子、カウンターあり。工事無しで即開店できる店舗。
物件コード 00344-100010
物件名 居抜き 飲食店(鮨割烹) 店舗 
交通 駅:長岡駅から徒歩7分
所在地 新潟県長岡市坂之上町2丁目4番地5
物件種別 店舗
総戸数 1戸
構造 鉄骨 階建 地上3階建
所在階/階数 1階/3階 号室 1号室
面積 69.47㎡ /21.01坪 方位 -
間取り -
賃料 30万円/月
管理費 8,000円/月
共益費含む
礼金 1ヶ月
敷金 3ヶ月
ほか初期費用 - その他諸費用 -
更新料 - 火災(家財)保険 -
共益費 - 町内費 400円
直接支払い
駐車場 - バイク料金 -
鍵交換費 20,000円
概算
清掃料 -
更新事務手数料 -
保証区分 連帯保証人+保証会社
保証会社 区分:加入要
保証会社名:その他 (ユーセン)
家賃保証 その他
家賃保証金 300,000円
連帯保証人 区分:要
音響設備、レジ設備、その他オプションにて対応可能
仲介手数料 300,000円
築年月 2021年1月(築4年)
利用制限 法人:可、学生:相談、単身者:可、ペット:不可、楽器:相談、事務所利用:相談、ルームシェア:相談
学校区 阪之上小学校(752m)・東中学校(1,223m)
設備 1階、融雪設備あり、エアコン、飲食店可、居抜き、給湯
入居時期 2025年4月1日以降
取引態様 仲介
備考 寿司店舗の入居優遇。和食店舗相談。
手数料負担割合/配分割合 貸主:-%   借主:100% / 元付:50%   客付:50%  
取り扱い会社

SUMORE NAGAOKA KONOMA Real Estate co.,ltd.

新潟県長岡市坂之上町二丁目3番地9sumoreビル

情報登録日 2025/03/10 次回更新予定日 2026/01/13
  • 居抜き 飲食店(鮨割烹) 店舗 
    SUMORE NAGAOKA KONOMA Real Estate co.,ltd.
  • この物件を問い合わせる/無料
  • TEL: 0258-89-7833

この物件の地図・周辺情報・行政情報

この物件の周辺情報・行政情報を詳しく見る
【周辺情報】
物件の近くにあるコンビニや銀行・学校など、アイコン付のマップで詳しく表示できます!
【行政情報】
水道料や下水道料・ガス料金など、暮らしに関係のある情報を表示しています。
セブン-イレブン 長岡表町店(コンビニ)まで280m
セブン-イレブン アオーレ長岡店(コンビニ)まで360m
長岡郵便局(郵便局)までm

※カメラのアイコンがある場合は、マウスをポイントするとその施設の画像がご覧いただけます。


担当取扱い店舗情報

取扱い店舗画像
SUMORE NAGAOKA KONOMA Real Estate co.,ltd.
TEL: 0258-89-7833
所在地: 新潟県長岡市坂之上町二丁目3番地9sumoreビル
交通: JR長岡駅
営業時間: 9:00~18:00/定休日:日・祝日(事前予約受付しています)
免許番号: 新潟県知事(1)第5700号 この会社の情報を詳しく見る
所属団体名: 公社新潟県宅地建物取引協会 長岡支部
取引態様: 仲介
ホームページ: https://sumore.co.jp/