物件掲載企業数:297|賃貸物件:3,610件|売買物件:3,333件|今週の登録物件:271
閲覧中のブラウザ(インターネットエクスプローラー)は非推奨ブラウザです。
物件が正しく表示されなかったり、正しく検索されない場合があります。最新のブラウザ(Google Chrome・Edgeなど)にてご利用お願いいたします。
  

新潟県上越市中通町5番7号 事務所 8万円の物件情報

駅近く☆駐車場5台分・消雪設備有り☆

物件名
所在地
面積
間取り
所在階
築年数
方位
賃料
管理費等
共益費
敷金
保証金
礼金
種別
構造
杉山ビル 1階事務所
新潟県上越市中通町5番7号
107.62㎡
(32.55坪)
-
1階
40年
-
8万円
なし
なし
3ヶ月
なし
なし
事務所
鉄骨
  • 杉山ビル 1階事務所
    上越宅地販売株式会社
  • この物件を問い合わせる/無料
  • TEL: 025-522-3838

物件画像

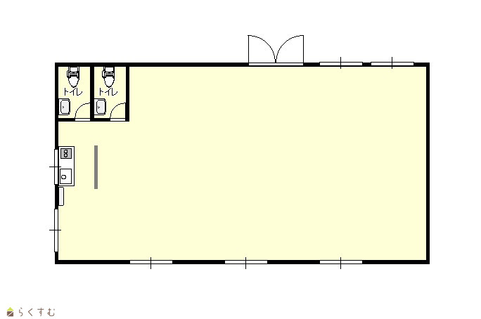
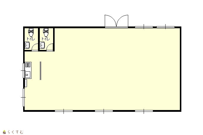
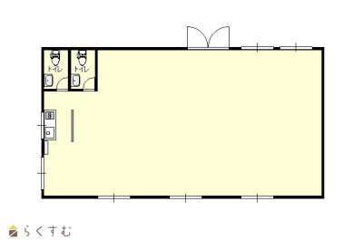
外観 間取り
物件画像
※画像クリックで拡大表示
外観
物件画像
※画像クリックで拡大表示
間取り
詳細画像


物件概要

物件コード 00308-100638
物件名 杉山ビル 1階事務所
交通 駅:妙高はねうまライン 南高田駅から徒歩2分、バス:南高田町から徒歩2分
所在地 新潟県上越市中通町5番7号
物件種別 事務所
総戸数 -
構造 鉄骨 階建 地上3階建
所在階/階数 1階/3階 号室 -
面積 107.62㎡ /32.55坪 方位 -
間取り -
賃料 8万円/月
管理費 -
礼金 - 敷金 3ヶ月
ほか初期費用 - その他諸費用 -
更新料 - 火災(家財)保険 要加入
共益費 - 町内費 実費
駐車場
5台(追加 応相談)
バイク料金 -
鍵交換費 - 清掃料 -
駐車場管理費(12月~2月のみ) 10,000円
更新事務手数料 -
保証区分 保証会社+緊急連絡先
保証会社 区分:加入要
保証会社名:CIZ
月額総賃料の77%(契約時)事務手数料 2,200円 申込内容で変更有
家賃保証金 63,800円
連帯保証人 区分:不要
-
仲介手数料 88,000円
築年月 1985年10月(築40年)
利用制限 -
学校区 高田西小学校(1,237m)・城西中学校(319m)
設備 融雪設備あり、エアコン、駐車場あり
入居時期 即入居可
取引態様 仲介
備考 -
手数料負担割合/配分割合 貸主:-%   借主:100% / 元付:50%   客付:50%  
取り扱い会社

上越宅地販売株式会社

新潟県上越市南高田町1-2アサノビル1階

情報登録日 2025/11/08 次回更新予定日 2026/01/13
  • 杉山ビル 1階事務所
    上越宅地販売株式会社
  • この物件を問い合わせる/無料
  • TEL: 025-522-3838

この物件の地図・周辺情報・行政情報

この物件の周辺情報・行政情報を詳しく見る
【周辺情報】
物件の近くにあるコンビニや銀行・学校など、アイコン付のマップで詳しく表示できます!
【行政情報】
水道料や下水道料・ガス料金など、暮らしに関係のある情報を表示しています。
ローソン 上越中通町店(コンビニ)まで140m
上越地域医療センター病院(病院)まで570m
高田中通簡易郵便局(郵便局)まで110m

※カメラのアイコンがある場合は、マウスをポイントするとその施設の画像がご覧いただけます。


担当取扱い店舗情報

取扱い店舗画像
上越宅地販売株式会社
TEL: 025-522-3838
所在地: 新潟県上越市南高田町1-2アサノビル1階
交通: 妙高はねうまライン 南高田駅 徒歩1分
営業時間: 9:00~18:30/定休日:毎週水曜日・GW・夏季・・年末年始
免許番号: 新潟県知事(9)第3372号 この会社の情報を詳しく見る
所属団体名: 公社 新潟県宅地建物取引協会 上越支部
取引態様: 仲介
ホームページ: http://takuhan.com/