物件掲載企業数:301|賃貸物件:3,261件|売買物件:3,251件|今週の登録物件:296
閲覧中のブラウザ(インターネットエクスプローラー)は非推奨ブラウザです。
物件が正しく表示されなかったり、正しく検索されない場合があります。最新のブラウザ(Google Chrome・Edgeなど)にてご利用お願いいたします。
  

新潟県長岡市関東町5-5 事務所 22.89万円の物件情報

長岡に本格的オフィスビルが登場!

物件名
所在地
面積
間取り
所在階
築年数
方位
賃料
管理費等
共益費
敷金
保証金
礼金
種別
構造
長岡ファーストビル
202号室
新潟県長岡市関東町5-5
89.04㎡
(26.93坪)
-
2階
40年
-
22.89万円
なし
なし
6ヶ月
なし
なし
事務所
鉄骨鉄筋コン
  • 長岡ファーストビル
    フェニックス不動産 株式会社
  • この物件を問い合わせる/無料
  • TEL: 0258-38-6077

物件画像

外観 間取り
物件画像
※画像クリックで拡大表示
外観
物件画像
※画像クリックで拡大表示
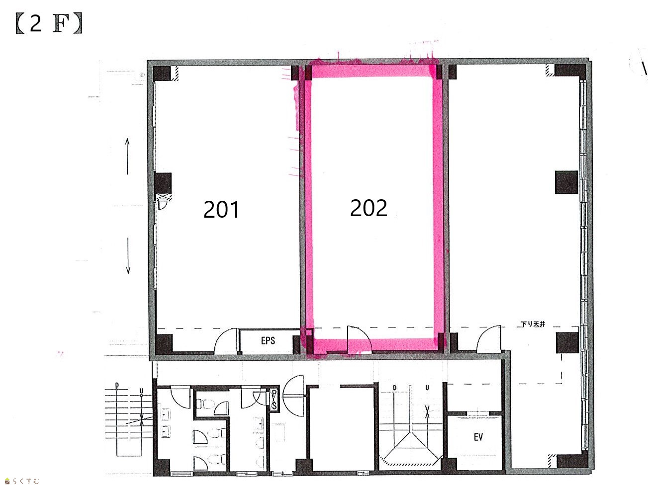
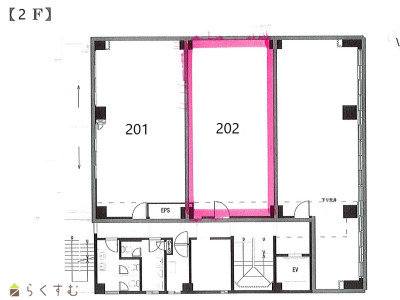
間取り
詳細画像


物件概要

業種・業態相談可能☆敷地内駐車場も確保可能!事務所スペースもラインナップを揃えています!
物件コード 00181-100310
物件名 長岡ファーストビル
交通 駅:上越新幹線 長岡駅から徒歩10分、バス:神田1丁目から徒歩2分
所在地 新潟県長岡市関東町5-5
物件種別 事務所
総戸数 14戸
構造 鉄骨鉄筋コン 階建 地上9階建
所在階/階数 2階/9階 号室 202号室
面積 89.04㎡ /26.93坪 方位 -
間取り -
賃料 22.89万円/月
228,905円(8,500円税別)
管理費 -
礼金 -
敷金 6ヶ月
ほか初期費用 - その他諸費用 -
更新料 - 火災(家財)保険 加入必須
共益費 - 町内費 -
駐車場 平置き 1.0万円 空き状況問い合わせください バイク料金 -
鍵交換費 - 清掃料 -
セキュリティカード 1,600円
引き渡し時に2枚償貸与 追加料金1枚1600円
更新事務手数料 -
保証区分 連帯保証人のみ
保証会社 区分:指定なし
-
連帯保証人 区分:要
-
仲介手数料 251,795円
築年月 1985年6月(築40年)
利用制限 法人:可、事務所利用:可
学校区 阪之上小学校(741m)・東中学校(962m)
設備 2階以上、光ファイバー、エアコン、男女トイレ別、エレベーター、給湯、OAフロア、駐車場あり
入居時期 2026年5月11日~
取引態様 仲介
備考 -
手数料負担割合/配分割合 貸主:-%   借主:-% / 元付:-%   客付:-%  
取り扱い会社

フェニックス不動産 株式会社

新潟県長岡市神田町1-2-33

情報登録日 2025/11/28 次回更新予定日 2026/06/05
  • 長岡ファーストビル
    フェニックス不動産 株式会社
  • この物件を問い合わせる/無料
  • TEL: 0258-38-6077

この物件の地図・周辺情報・行政情報

この物件の周辺情報・行政情報を詳しく見る
【周辺情報】
物件の近くにあるコンビニや銀行・学校など、アイコン付のマップで詳しく表示できます!
【行政情報】
水道料や下水道料・ガス料金など、暮らしに関係のある情報を表示しています。
セブン-イレブン 長岡呉服町店(コンビニ)まで210m
ローソン 長岡駅大手口店(コンビニ)まで630m
吉田病院(病院)まで270m
大光銀行 神田支店(銀行)まで440m
第四北越銀行 長岡本店営業部(銀行)までm
長岡呉服町郵便局(郵便局)までm

※カメラのアイコンがある場合は、マウスをポイントするとその施設の画像がご覧いただけます。


担当取扱い店舗情報

取扱い店舗画像
フェニックス不動産 株式会社
TEL: 0258-38-6077
所在地: 新潟県長岡市神田町1-2-33
交通: 長岡駅
営業時間: 9:30~18:00/定休日:水・日・祝(事前予約をいただければ営業いたします)
免許番号: 新潟県知事(2)第5376号 この会社の情報を詳しく見る
所属団体名: 公社 全日本不動産協会 新潟県本部
取引態様: 仲介
ホームページ: http://www.phoenix-fudousan.com/