| 業種・業態相談可能☆敷地内駐車場も確保可能!事務所スペースもラインナップを揃えています! | |||
| 物件コード | 00181-100310 | ||
|---|---|---|---|
| 物件名 | 長岡ファーストビル | ||
| 交通 | 駅:上越新幹線 長岡駅から徒歩10分、バス:神田1丁目から徒歩2分 | ||
| 所在地 | 新潟県長岡市関東町5-5 | ||
| 物件種別 | 事務所 | ||
| 総戸数 | 14戸 | ||
| 構造 | 鉄骨鉄筋コン | 階建 | 地上9階建 |
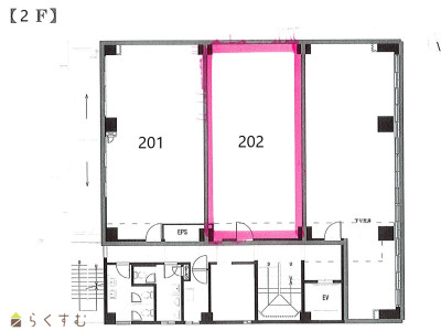
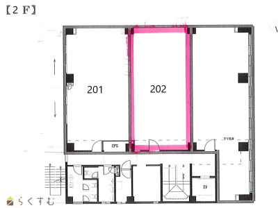
| 所在階/階数 | 2階/9階 | 号室 | 202号室 |
| 面積 | 89.04㎡ (26.93坪) | 方位 | - |
| 間取り |
|
||
| 賃料 | 22.89万円/月
228,905円(8,500円税別) |
管理費 | - |
| 礼金 | -
|
敷金 | 6ヶ月
|
| ほか初期費用 | - | その他諸費用 | - |
| 更新料 | - | 火災(家財)保険 | 加入必須 |
| 共益費 | - | 町内費 | - |
| 駐車場 | 平置き 1.0万円 空き状況問い合わせください | バイク料金 | - |
| 鍵交換費 | - | 清掃料 | - |
| セキュリティカード |
1,600円
引き渡し時に2枚償貸与 追加料金1枚1600円 |
||
| 更新事務手数料 | - | ||
| 保証区分 |
連帯保証人のみ |
||
| 保証会社 |
区分:指定なし - |
||
| 連帯保証人 |
区分:要 - |
||
| 仲介手数料 |
251,795円
|
||
| 築年月 | 1985年6月(築40年) | ||
| 利用制限 | 法人:可、事務所利用:可 | ||
| 学校区 | 阪之上小学校(741m)・東中学校(962m) | ||
| 設備 | 2階以上、光ファイバー、エアコン、男女トイレ別、エレベーター、給湯、OAフロア、駐車場あり | ||
| 入居時期 | 2026年5月11日~ | ||
| 取引態様 | 仲介 | ||
| 備考 | - | ||
| 手数料負担割合/配分割合 | 貸主:-% 借主:-% / 元付:-% 客付:-% | ||
| 情報登録日 | 2025/11/28 | 次回更新予定日 | 2026/06/06 |
|
|
|
|
|
|
| TEL: | 0258-38-6077 |
|---|---|
| 所在地: | 新潟県長岡市神田町1-2-33 |
| 交通: | 長岡駅 |
| 営業時間: | 9:30~18:00/定休日:水・日・祝(事前予約をいただければ営業いたします) |
| 免許番号: | 新潟県知事(2)第5376号 |
| 所属団体名: | 公社 全日本不動産協会 新潟県本部 |
| 取引態様: | 仲介 |