物件掲載企業数:297|賃貸物件:3,610件|売買物件:3,333件|今週の登録物件:273
閲覧中のブラウザ(インターネットエクスプローラー)は非推奨ブラウザです。
物件が正しく表示されなかったり、正しく検索されない場合があります。最新のブラウザ(Google Chrome・Edgeなど)にてご利用お願いいたします。
  

新潟県長岡市干場1丁目6-24 マンション 4LDK 9.8万円の物件情報

☆穴吹工務店分の分譲賃貸マンション☆エントランスオートロック付◎

物件名
所在地
面積
間取り
所在階
築年数
方位
賃料
管理費等
共益費
敷金
保証金
礼金
種別
構造
サーパス干場東
509号室
新潟県長岡市干場1丁目6-24
86.76㎡
(26.24坪)
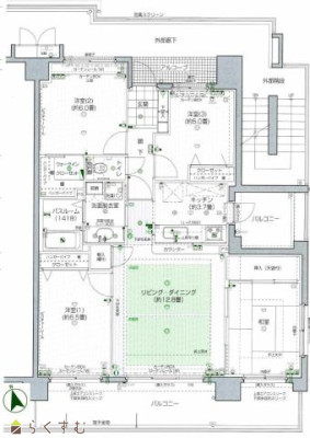
4LDK
5階
21年
9.8万円
なし
あり
2ヶ月
なし
1ヶ月
アパート・マンション・一戸建て
鉄筋コン
  • サーパス干場東
    株式会社アールス
  • この物件を問い合わせる/無料
  • TEL: 0258-94-4624

物件画像

外観 間取り
物件画像
※画像クリックで拡大表示
外観
物件画像
※画像クリックで拡大表示
間取り図
詳細画像


物件概要

スーパーまで徒歩10分・ドラッグストアまで徒歩12分とお買い物に便利な立地です♪
物件コード 00062-101143
物件名 サーパス干場東
交通 駅:信越線 長岡駅から徒歩19分、バス:干場から徒歩3分
所在地 新潟県長岡市干場1丁目6-24
物件種別 アパート・マンション・一戸建て
総戸数 -
構造 鉄筋コン 階建 地上6階建
所在階/階数 5階/6階 号室 509号室
面積 86.76㎡ /26.24坪 方位
間取り 4LDK (和室:6畳) (洋室:6.5、6、5)
LDK16.5
※床暖房はLDのみです
賃料 9.8万円/月
管理費 -
礼金 1ヶ月
敷金 2ヶ月
ほか初期費用 - その他諸費用 -
更新料 - 火災(家財)保険 15,000円
共益費 7,000円
町内費 -
駐車場 15,000円
※2年に1回抽選あり※2台目→近隣月極駐車場ご紹介可
バイク料金 -
鍵交換費 - 清掃料 -
月額保証料 800円
更新事務手数料 -
保証区分 保証会社のみ
保証会社 区分:加入要
保証会社名:日本セーフティ
初回保証料:月額総賃料50%(最低保証料20,000円)、継続保証料:毎月800円、口座振替手数料440円
家賃保証金 60,000円
連帯保証人 区分:不要
-
仲介手数料 124,300円
築年月 2004年5月(築21年)
利用制限 法人:可、二人入居:可、子供:可、ペット:不可、楽器:不可、事務所利用:不可、ルームシェア:不可
学校区 川崎小学校(166m)・東北中学校(625m)
設備 閑静な住宅街、分譲タイプ、エレベーター、宅配BOX、敷地内ゴミ置き場、LDK12畳以上、駐輪場あり、南向き、角住居、ダブルロックキー、エントランスオートロック、システムキッチン、対面キッチン、ガスコンロ 設置済み、3口コンロ、バストイレ別、追いだき機能付き、浴室乾燥機、温水洗浄便座、暖房便座、洗面所独立、床暖房システム、エアコン3基、都市ガス、バルコニー、2面バルコニー、複層サッシ、洗濯機置場 室内、脱衣所、ウォークインクロゼット、クロゼット、全室収納、押入、シューズBOX、TVモニター付きインターホン、各居室照明、インターネット接続可、即入居可、保証会社要加入
入居時期 即入居可
取引態様 仲介
備考 ※駐車場・タイヤストッカーは2年に1回、抽選となります。
手数料負担割合/配分割合 貸主:0%   借主:100% / 元付:50%   客付:50%  
取り扱い会社

株式会社アールス

新潟県長岡市宮関1丁目2-24

情報登録日 2025/10/07 次回更新予定日 2026/01/13
  • サーパス干場東
    株式会社アールス
  • この物件を問い合わせる/無料
  • TEL: 0258-94-4624

この物件の地図・周辺情報・行政情報

この物件の周辺情報・行政情報を詳しく見る
【周辺情報】
物件の近くにあるコンビニや銀行・学校など、アイコン付のマップで詳しく表示できます!
【行政情報】
水道料や下水道料・ガス料金など、暮らしに関係のある情報を表示しています。
ファミリーマート 長岡川崎店(コンビニ)まで560m
ラ・ムー 長岡愛宕店(スーパー)まで710m
原信 今朝白店(スーパー)まで790m
長尾医院(病院)まで560m
ココカラファイン今朝白店(ドラッグストア)まで850m

※カメラのアイコンがある場合は、マウスをポイントするとその施設の画像がご覧いただけます。


担当取扱い店舗情報

取扱い店舗画像
株式会社アールス
TEL: 0258-94-4624
所在地: 新潟県長岡市宮関1丁目2-24
交通: 長岡駅
営業時間: 10:00~18:00/定休日:水曜日 ※その他(GW・お盆・年末年始)
免許番号: 新潟県知事(2)第5306号 この会社の情報を詳しく見る
所属団体名: 全日本不動産協会 新潟県本部
取引態様: 仲介
ホームページ: http://www.fjs-rs.info