| スーパーまで徒歩10分・ドラッグストアまで徒歩12分とお買い物に便利な立地です♪ | |||
| 物件コード | 00062-101143 | ||
|---|---|---|---|
| 物件名 | サーパス干場東 | ||
| 交通 | 駅:信越線 長岡駅から徒歩19分、バス:干場から徒歩3分 | ||
| 所在地 | 新潟県長岡市干場1丁目6-24 | ||
| 物件種別 | アパート・マンション・一戸建て | ||
| 総戸数 | - | ||
| 構造 | 鉄筋コン | 階建 | 地上6階建 |
| 所在階/階数 | 5階/6階 | 号室 | 509号室 |
| 面積 | 86.76㎡ (26.24坪) | 方位 | 南 |
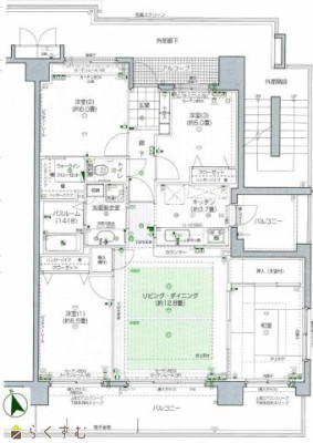
| 間取り | 4LDK (和室:6畳) (洋室:6.5、6、5)
LDK16.5 ※床暖房はLDのみです |
||
| 賃料 | 9.8万円/月
|
管理費 | - |
| 礼金 | 1ヶ月
|
敷金 | 2ヶ月
|
| ほか初期費用 | - | その他諸費用 | - |
| 更新料 | - | 火災(家財)保険 |
15,000円
|
| 共益費 |
7,000円
|
町内費 | - |
| 駐車場 |
15,000円
※2年に1回抽選あり※2台目→近隣月極駐車場ご紹介可 |
バイク料金 | - |
| 鍵交換費 | - | 清掃料 | - |
| 月額保証料 |
800円
|
||
| 更新事務手数料 | - | ||
| 保証区分 |
保証会社のみ |
||
| 保証会社 |
区分:加入要 保証会社名:日本セーフティ 初回保証料:月額総賃料50%(最低保証料20,000円)、継続保証料:毎月800円、口座振替手数料440円 |
||
| 家賃保証金 |
60,000円
|
||
| 連帯保証人 |
区分:不要 - |
||
| 仲介手数料 |
124,300円
|
||
| 築年月 | 2004年5月(築21年) | ||
| 利用制限 | 法人:可、二人入居:可、子供:可、ペット:不可、楽器:不可、事務所利用:不可、ルームシェア:不可 | ||
| 学校区 | 川崎小学校(166m)・東北中学校(625m) | ||
| 設備 | 閑静な住宅街、分譲タイプ、エレベーター、宅配BOX、敷地内ゴミ置き場、LDK12畳以上、駐輪場あり、南向き、角住居、ダブルロックキー、エントランスオートロック、システムキッチン、対面キッチン、ガスコンロ 設置済み、3口コンロ、バストイレ別、追いだき機能付き、浴室乾燥機、温水洗浄便座、暖房便座、洗面所独立、床暖房システム、エアコン3基、都市ガス、バルコニー、2面バルコニー、複層サッシ、洗濯機置場 室内、脱衣所、ウォークインクロゼット、クロゼット、全室収納、押入、シューズBOX、TVモニター付きインターホン、各居室照明、インターネット接続可、即入居可、保証会社要加入 | ||
| 入居時期 | 即入居可 | ||
| 取引態様 | 仲介 | ||
| 備考 | ※駐車場・タイヤストッカーは2年に1回、抽選となります。 | ||
| 手数料負担割合/配分割合 | 貸主:0% 借主:100% / 元付:50% 客付:50% | ||
| 情報登録日 | 2025/10/07 | 次回更新予定日 | 2026/01/13 |
|
|
|
|
|
| TEL: | 0258-94-4624 |
|---|---|
| 所在地: | 新潟県長岡市宮関1丁目2-24 |
| 交通: | 長岡駅 |
| 営業時間: | 10:00~18:00/定休日:水曜日 ※その他(GW・お盆・年末年始) |
| 免許番号: | 新潟県知事(2)第5306号 |
| 所属団体名: | 全日本不動産協会 新潟県本部 |
| 取引態様: | 仲介 |