物件掲載企業数:301|賃貸物件:3,261件|売買物件:3,251件|今週の登録物件:296
閲覧中のブラウザ(インターネットエクスプローラー)は非推奨ブラウザです。
物件が正しく表示されなかったり、正しく検索されない場合があります。最新のブラウザ(Google Chrome・Edgeなど)にてご利用お願いいたします。
  

新潟県長岡市古正寺3-100 駐車場 0.66万円の物件情報

仲介料無料!敷金・礼金なし

物件名
所在地
面積
間取り
所在階
築年数
方位
賃料
管理費等
共益費
敷金
保証金
礼金
種別
構造
ディルス古正寺パーキング
新潟県長岡市古正寺3-100
-
-
-
-
-
0.66万円
なし
なし
なし
なし
なし
駐車場
-
  • ディルス古正寺パーキング
    ドアーズ 株式会社
  • この物件を問い合わせる/無料
  • TEL: 0258-21-3751

物件画像

外観 間取り
物件画像
※画像クリックで拡大表示
外観
物件画像
※画像クリックで拡大表示
区画図
詳細画像


物件概要

仲介料無料!敷金・礼金なし
物件コード 00043-104468
物件名 ディルス古正寺パーキング
交通 駅:信越線 長岡駅から徒歩53分、バス:寺島から徒歩4分
所在地 新潟県長岡市古正寺3-100
物件種別 駐車場
総戸数 -
構造 - 階建 -
所在階/階数 - 号室 -
面積 - 方位 -
間取り -
賃料 0.66万円/月
管理費 -
礼金 - 敷金 -
ほか初期費用 - その他諸費用 -
更新料 - 火災(家財)保険 -
共益費 - 町内費 -
駐車場 - バイク料金 -
鍵交換費 - 清掃料 -
口座振替料 330円
更新事務手数料 -
保証区分 保証会社+緊急連絡先
保証会社 区分:加入要
保証会社名:ジェイリース
-
家賃保証金 5,280円
連帯保証人 区分:不要
-
仲介手数料 -
築年月 -
利用制限 -
学校区 大島小学校(1,279m)・大島中学校(1,011m)
設備 舗装、即利用可能、融雪井戸あり、保証会社要加入
入居時期 2026年7月1日
取引態様 貸主
備考 ※消雪設備はありますが全体的に雪消え悪いですので借主様にて除雪をお願いします。
そのため周辺相場より安い賃料となっております。
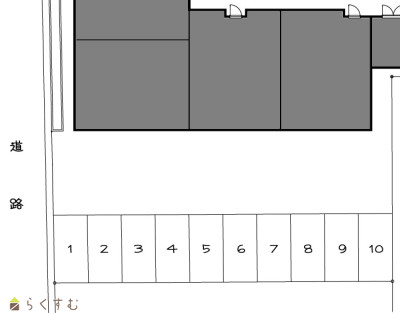
区画№8・9・10は雪の消えが非常に悪いため冬期間(12月~翌年2月まで)駐車料無料となります。
上記を了承のうえ除雪は借主様にて行ってください。※区画№8・9・10は1年未満解約の場合、賃料2ヶ月相当の違約金発生
手数料負担割合/配分割合 貸主:0%   借主:100% / 元付:0%   客付:100%  
取り扱い会社

ドアーズ 株式会社

新潟県長岡市古正寺町108-1

情報登録日 2026/05/17 次回更新予定日 2026/06/05
  • ディルス古正寺パーキング
    ドアーズ 株式会社
  • この物件を問い合わせる/無料
  • TEL: 0258-21-3751

この物件の地図・周辺情報・行政情報

この物件の周辺情報・行政情報を詳しく見る
【周辺情報】
物件の近くにあるコンビニや銀行・学校など、アイコン付のマップで詳しく表示できます!
【行政情報】
水道料や下水道料・ガス料金など、暮らしに関係のある情報を表示しています。

担当取扱い店舗情報

取扱い店舗画像
ドアーズ 株式会社
TEL: 0258-21-3751
所在地: 新潟県長岡市古正寺町108-1
交通: 越後交通「西病院前」バス停徒歩約5分
営業時間: 9:00~18:00/定休日:年末・年始・GW・夏期(お盆)
免許番号: 新潟県知事(10)第2891号 この会社の情報を詳しく見る
所属団体名: 新潟県宅地建物取引業協会 長岡支部
取引態様: 貸主
ホームページ: https://www.doors-net.jp