| 仲介料無料!敷金・礼金なし | |||
| 物件コード | 00043-104468 | ||
|---|---|---|---|
| 物件名 | ディルス古正寺パーキング | ||
| 交通 | 駅:信越線 長岡駅から徒歩53分、バス:寺島から徒歩4分 | ||
| 所在地 | 新潟県長岡市古正寺3-100 | ||
| 物件種別 | 駐車場 | ||
| 総戸数 | - | ||
| 構造 | - | 階建 | - |
| 所在階/階数 | - | 号室 | - |
| 面積 | - | 方位 | - |
| 間取り |
|
||
| 賃料 | 0.66万円/月
|
管理費 | - |
| 礼金 | - | 敷金 | - |
| ほか初期費用 | - | その他諸費用 | - |
| 更新料 | - | 火災(家財)保険 | - |
| 共益費 | - | 町内費 | - |
| 駐車場 | - | バイク料金 | - |
| 鍵交換費 | - | 清掃料 | - |
| 口座振替料 |
330円
|
||
| 更新事務手数料 | - | ||
| 保証区分 |
保証会社+緊急連絡先 |
||
| 保証会社 |
区分:加入要 保証会社名:ジェイリース - |
||
| 家賃保証金 |
5,280円
|
||
| 連帯保証人 |
区分:不要 - |
||
| 仲介手数料 | - | ||
| 築年月 | - | ||
| 利用制限 | - | ||
| 学校区 | 大島小学校(1,279m)・大島中学校(1,011m) | ||
| 設備 | 舗装、即利用可能、融雪井戸あり、保証会社要加入 | ||
| 入居時期 | 2026年7月1日 | ||
| 取引態様 | 貸主 | ||
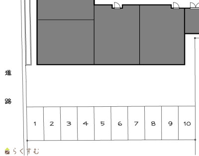
| 備考 | ※消雪設備はありますが全体的に雪消え悪いですので借主様にて除雪をお願いします。 そのため周辺相場より安い賃料となっております。 区画№8・9・10は雪の消えが非常に悪いため冬期間(12月~翌年2月まで)駐車料無料となります。 上記を了承のうえ除雪は借主様にて行ってください。※区画№8・9・10は1年未満解約の場合、賃料2ヶ月相当の違約金発生 |
||
| 手数料負担割合/配分割合 | 貸主:0% 借主:100% / 元付:0% 客付:100% | ||
| 情報登録日 | 2026/05/17 | 次回更新予定日 | 2026/06/05 |
|
|
|
|
| TEL: | 0258-21-3751 |
|---|---|
| 所在地: | 新潟県長岡市古正寺町108-1 |
| 交通: | 越後交通「西病院前」バス停徒歩約5分 |
| 営業時間: | 9:00~18:00/定休日:年末・年始・GW・夏期(お盆) |
| 免許番号: | 新潟県知事(10)第2891号 |
| 所属団体名: | 新潟県宅地建物取引業協会 長岡支部 |
| 取引態様: | 貸主 |