物件掲載企業数:301|賃貸物件:3,261件|売買物件:3,251件|今週の登録物件:296
閲覧中のブラウザ(インターネットエクスプローラー)は非推奨ブラウザです。
物件が正しく表示されなかったり、正しく検索されない場合があります。最新のブラウザ(Google Chrome・Edgeなど)にてご利用お願いいたします。
  

新潟県長岡市大手通1丁目4-3 事務所 13.2万円の物件情報

物件名
所在地
面積
間取り
所在階
築年数
方位
賃料
管理費等
共益費
敷金
保証金
礼金
種別
構造
ドルミー駅前ビル B棟
4F号室
新潟県長岡市大手通1丁目4-3
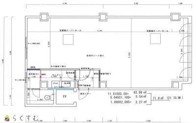
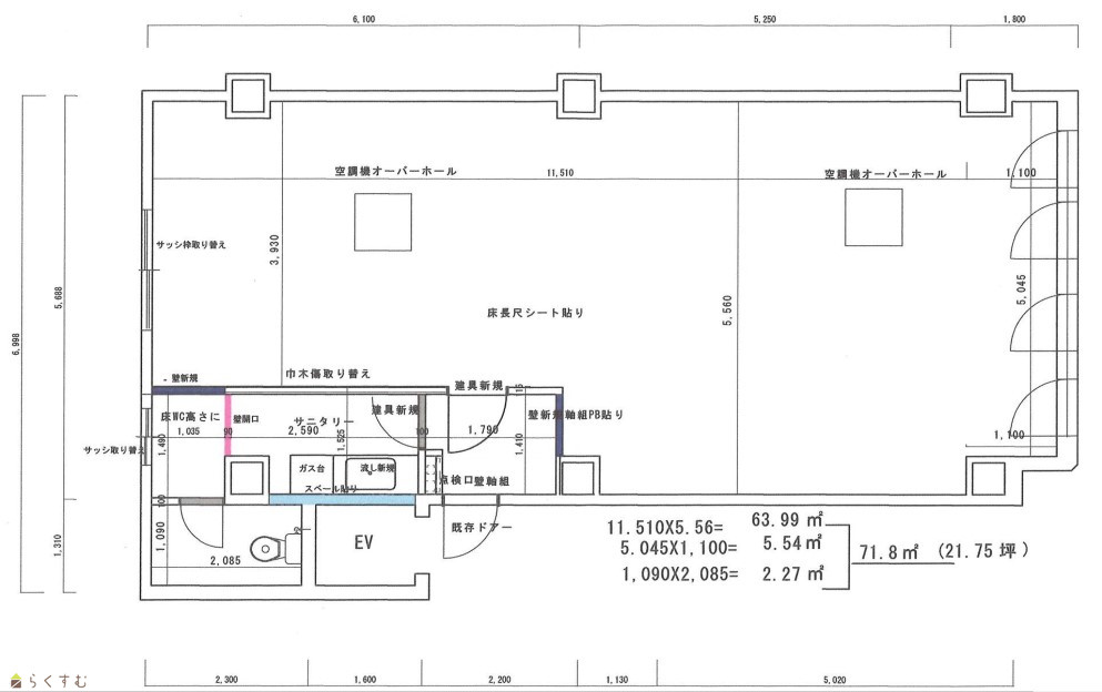
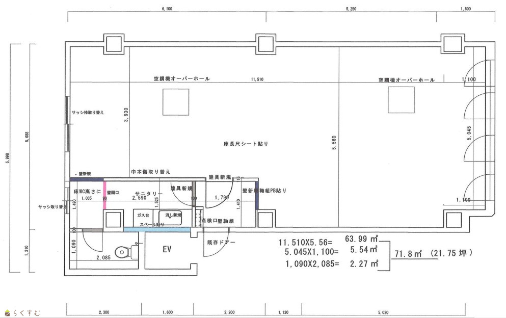
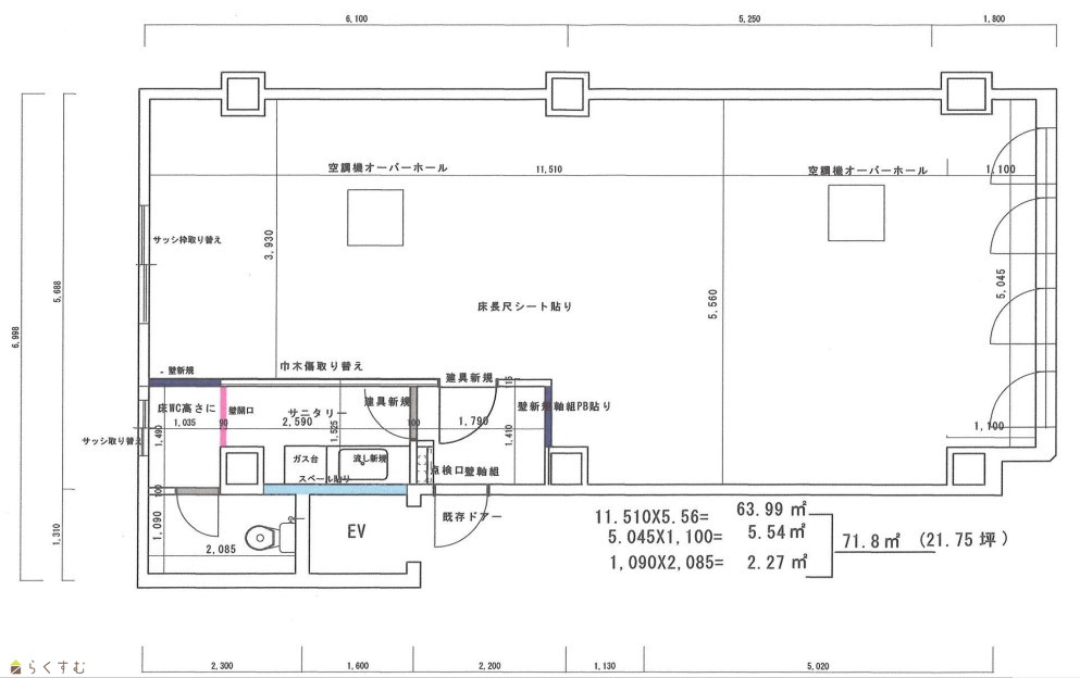
71.9㎡
(21.74坪)
-
4階
47年
-
13.2万円
なし
なし
36万円
なし
1ヶ月
事務所
鉄骨
  • ドルミー駅前ビル B棟
    髙頭不動産 株式会社
  • この物件を問い合わせる/無料
  • TEL: 0120-410-420

物件画像

外観 間取り
物件画像
※画像クリックで拡大表示
外観
物件画像
※画像クリックで拡大表示
間取り
詳細画像


物件概要

物件コード 00040-101111
物件名 ドルミー駅前ビル B棟
交通 駅:上越新幹線 長岡駅から徒歩4分
所在地 新潟県長岡市大手通1丁目4-3
物件種別 事務所
総戸数 -
構造 鉄骨 階建 地上4階建
所在階/階数 4階/4階 号室 4F号室
面積 71.9㎡ /21.74坪 方位 -
間取り -
賃料 13.2万円/月
管理費 -
礼金 1ヶ月
敷金 36万円
ほか初期費用 - その他諸費用 -
更新料 - 火災(家財)保険 -
共益費 - 町内費 -
駐車場 - バイク料金 -
鍵交換費 - 清掃料 -
更新事務手数料 -
保証区分 保証会社+緊急連絡先
保証会社 区分:加入要
保証会社名:日本インシュア
初回:賃料1ヶ月分、更新時:月額総賃料の10%(1年毎)
家賃保証金 132,000円
連帯保証人 区分:不要
-
仲介手数料 -
築年月 1978年12月(築47年)
利用制限 -
学校区 阪之上小学校(536m)
設備 エアコン、居抜き、給湯
入居時期 即入居可
取引態様 貸主
備考 -
手数料負担割合/配分割合 貸主:-%   借主:-% / 元付:-%   客付:-%  
取り扱い会社

髙頭不動産 株式会社

新潟県長岡市千歳1-3-25

情報登録日 2025/08/26 次回更新予定日 2026/06/05
  • ドルミー駅前ビル B棟
    髙頭不動産 株式会社
  • この物件を問い合わせる/無料
  • TEL: 0120-410-420

この物件の地図・周辺情報・行政情報

この物件の周辺情報・行政情報を詳しく見る
【周辺情報】
物件の近くにあるコンビニや銀行・学校など、アイコン付のマップで詳しく表示できます!
【行政情報】
水道料や下水道料・ガス料金など、暮らしに関係のある情報を表示しています。
セブン-イレブン アオーレ長岡店(コンビニ)まで40m

※カメラのアイコンがある場合は、マウスをポイントするとその施設の画像がご覧いただけます。


担当取扱い店舗情報

取扱い店舗画像
髙頭不動産 株式会社
TEL: 0120-1818-27
所在地: 新潟県長岡市千歳1-3-25
交通: 長岡駅
営業時間: 8時30分~17時30分(大手支店は9時~18時)/定休日:本社:土日祝日(事前予約での対応可能)、支店:日曜祝日第5土曜(毎年2月下旬から3月は休みなし)
免許番号: 新潟県知事(17)第191号 この会社の情報を詳しく見る
所属団体名: 新潟県宅地建物取引協会 長岡支部
取引態様: 貸主
ホームページ: http://www.takato-f.com