| 物件コード | 00040-101111 | ||
|---|---|---|---|
| 物件名 | ドルミー駅前ビル B棟 | ||
| 交通 | 駅:上越新幹線 長岡駅から徒歩4分 | ||
| 所在地 | 新潟県長岡市大手通1丁目4-3 | ||
| 物件種別 | 事務所 | ||
| 総戸数 | - | ||
| 構造 | 鉄骨 | 階建 | 地上4階建 |
| 所在階/階数 | 4階/4階 | 号室 | 4F号室 |
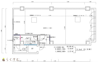
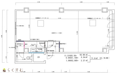
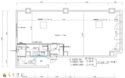
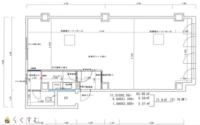
| 面積 | 71.9㎡ (21.74坪) | 方位 | - |
| 間取り |
|
||
| 賃料 | 13.2万円/月
|
管理費 | - |
| 礼金 | 1ヶ月
|
敷金 | 36万円
|
| ほか初期費用 | - | その他諸費用 | - |
| 更新料 | - | 火災(家財)保険 | - |
| 共益費 | - | 町内費 | - |
| 駐車場 | - | バイク料金 | - |
| 鍵交換費 | - | 清掃料 | - |
| 更新事務手数料 | - | ||
| 保証区分 |
保証会社+緊急連絡先 |
||
| 保証会社 |
区分:加入要 保証会社名:日本インシュア 初回:賃料1ヶ月分、更新時:月額総賃料の10%(1年毎) |
||
| 家賃保証金 |
132,000円
|
||
| 連帯保証人 |
区分:不要 - |
||
| 仲介手数料 | - | ||
| 築年月 | 1978年12月(築47年) | ||
| 利用制限 | - | ||
| 学校区 | 阪之上小学校(536m) | ||
| 設備 | エアコン、居抜き、給湯 | ||
| 入居時期 | 即入居可 | ||
| 取引態様 | 貸主 | ||
| 備考 | - | ||
| 手数料負担割合/配分割合 | 貸主:-% 借主:-% / 元付:-% 客付:-% | ||
| 情報登録日 | 2025/08/26 | 次回更新予定日 | 2026/06/06 |
|
|
|
|
|
|
| TEL: | 0120-1818-27 |
|---|---|
| 所在地: | 新潟県長岡市千歳1-3-25 |
| 交通: | 長岡駅 |
| 営業時間: | 8時30分~17時30分(大手支店は9時~18時)/定休日:本社:土日祝日(事前予約での対応可能)、支店:日曜祝日第5土曜(毎年2月下旬から3月は休みなし) |
| 免許番号: | 新潟県知事(17)第191号 |
| 所属団体名: | 新潟県宅地建物取引協会 長岡支部 |
| 取引態様: | 貸主 |