物件掲載企業数:301|賃貸物件:3,261件|売買物件:3,251件|今週の登録物件:245
閲覧中のブラウザ(インターネットエクスプローラー)は非推奨ブラウザです。
物件が正しく表示されなかったり、正しく検索されない場合があります。最新のブラウザ(Google Chrome・Edgeなど)にてご利用お願いいたします。
  

長岡市草生津3-4-13 アパート 3DK 5.7万円の物件情報

2階の居住スペース

物件名
所在地
面積
間取り
所在階
築年数
方位
賃料
管理費等
共益費
敷金
保証金
礼金
種別
構造
住居用 『草生津3丁目』 2階
1号室
長岡市草生津3-4-13
75㎡
(22.68坪)
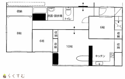
3DK
2階
56年
-
5.7万円
なし
なし
2ヶ月
なし
なし
アパート・マンション・一戸建て
鉄筋コン
  • 住居用 『草生津3丁目』 2階
    ㈱スタッフサイトウ不動産部
  • この物件を問い合わせる/無料
  • TEL: 0258-24-0623

物件画像

外観 間取り
物件画像
※画像クリックで拡大表示
外観
物件画像
※画像クリックで拡大表示
間取り
詳細画像


物件概要

物件コード 00011-100535
物件名 住居用 『草生津3丁目』 2階
交通 駅:上越新幹線 長岡駅から徒歩20分、バス:長生橋東詰から徒歩2分
所在地 長岡市草生津3-4-13
物件種別 アパート・マンション・一戸建て
総戸数 -
構造 鉄筋コン 階建 地上2階建
所在階/階数 2階/2階 号室 1号室
面積 75㎡ /22.68坪 方位 -
間取り 3DK
床面積は部屋の間取りで表示しておりますので、若干違う場合があります
賃料 5.7万円/月
管理費 -
礼金 - 敷金 2ヶ月
ほか初期費用 - その他諸費用 -
更新料 - 火災(家財)保険 -
共益費 - 町内費 別途
駐車場
別途料金かかります。7000円/台
バイク料金 -
鍵交換費 - 清掃料 -
更新事務手数料 -
保証区分 連帯保証人+緊急連絡先
保証会社 区分:指定なし
-
連帯保証人 区分:要
-
仲介手数料 62,700円
築年月 1969年7月(築56年)
利用制限 ペット:不可、楽器:不可
学校区 千手小学校(409m)・南中学校(792m)
設備 日当り良好、バストイレ別、追いだき機能付き、暖房便座、洗面所独立、エアコン、都市ガス、公営水道、下水、全居室フローリング、洗濯機置場 室内
入居時期 相談
取引態様 代理
備考 駐車場 別途7000円/台かかります
電気、水道は子メーターとなります
手数料負担割合/配分割合 貸主:-%   借主:100% / 元付:50%   客付:50%  
取り扱い会社

㈱スタッフサイトウ不動産部

新潟県長岡市蔵王2丁目4番17号

情報登録日 2025/10/02 次回更新予定日 2026/06/06
  • 住居用 『草生津3丁目』 2階
    ㈱スタッフサイトウ不動産部
  • この物件を問い合わせる/無料
  • TEL: 0258-24-0623

この物件の地図・周辺情報・行政情報

この物件の周辺情報・行政情報を詳しく見る
【周辺情報】
物件の近くにあるコンビニや銀行・学校など、アイコン付のマップで詳しく表示できます!
【行政情報】
水道料や下水道料・ガス料金など、暮らしに関係のある情報を表示しています。
セブン-イレブン 長岡西千手店(コンビニ)まで200m
江部医院(病院)まで290m
長岡柳原郵便局(郵便局)まで490m

※カメラのアイコンがある場合は、マウスをポイントするとその施設の画像がご覧いただけます。


担当取扱い店舗情報

取扱い店舗画像
㈱スタッフサイトウ不動産部
TEL: 0258-24-0623
所在地: 新潟県長岡市蔵王2丁目4番17号
交通: JR北長岡駅
営業時間: 8:30~17:30/定休日:第2・4土曜・日曜・祭日
免許番号: 新潟県知事(2)第5364号 この会社の情報を詳しく見る
所属団体名: 新潟県宅地建物取引業協会 長岡支部
取引態様: 代理
ホームページ: http://hokuetsu-fudousan.com