| 物件コード | 00011-100535 | ||
|---|---|---|---|
| 物件名 | 住居用 『草生津3丁目』 2階 | ||
| 交通 | 駅:上越新幹線 長岡駅から徒歩20分、バス:長生橋東詰から徒歩2分 | ||
| 所在地 | 長岡市草生津3-4-13 | ||
| 物件種別 | アパート・マンション・一戸建て | ||
| 総戸数 | - | ||
| 構造 | 鉄筋コン | 階建 | 地上2階建 |
| 所在階/階数 | 2階/2階 | 号室 | 1号室 |
| 面積 | 75㎡ (22.68坪) | 方位 | - |
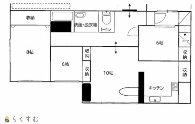
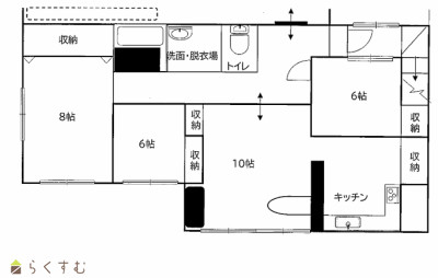
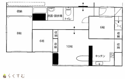
| 間取り | 3DK
床面積は部屋の間取りで表示しておりますので、若干違う場合があります |
||
| 賃料 | 5.7万円/月
|
管理費 | - |
| 礼金 | - | 敷金 | 2ヶ月
|
| ほか初期費用 | - | その他諸費用 | - |
| 更新料 | - | 火災(家財)保険 | - |
| 共益費 | - | 町内費 | 別途 |
| 駐車場 |
別途料金かかります。7000円/台 |
バイク料金 | - |
| 鍵交換費 | - | 清掃料 | - |
| 更新事務手数料 | - | ||
| 保証区分 |
連帯保証人+緊急連絡先 |
||
| 保証会社 |
区分:指定なし - |
||
| 連帯保証人 |
区分:要 - |
||
| 仲介手数料 |
62,700円
|
||
| 築年月 | 1969年7月(築56年) | ||
| 利用制限 | ペット:不可、楽器:不可 | ||
| 学校区 | 千手小学校(409m)・南中学校(792m) | ||
| 設備 | 日当り良好、バストイレ別、追いだき機能付き、暖房便座、洗面所独立、エアコン、都市ガス、公営水道、下水、全居室フローリング、洗濯機置場 室内 | ||
| 入居時期 | 相談 | ||
| 取引態様 | 代理 | ||
| 備考 | 駐車場 別途7000円/台かかります 電気、水道は子メーターとなります |
||
| 手数料負担割合/配分割合 | 貸主:-% 借主:100% / 元付:50% 客付:50% | ||
| 情報登録日 | 2025/10/02 | 次回更新予定日 | 2026/06/05 |
|
|
|
|
|
| TEL: | 0258-24-0623 |
|---|---|
| 所在地: | 新潟県長岡市蔵王2丁目4番17号 |
| 交通: | JR北長岡駅 |
| 営業時間: | 8:30~17:30/定休日:第2・4土曜・日曜・祭日 |
| 免許番号: | 新潟県知事(2)第5364号 |
| 所属団体名: | 新潟県宅地建物取引業協会 長岡支部 |
| 取引態様: | 代理 |