売買見附市葛巻1丁目 分譲地【全5区画】 ※建築条件付き 詳細

外観
区画図
間取り
価格表
その他の画像
現地写真
現地写真
現地写真
現地写真
現地写真
現地写真
現地写真
現地写真
周辺施設 葛巻小学校
周辺施設 西中学校
周辺施設 見附ショッピングセンター
【区画1】建物プラン例(外観パース)
【区画1】建物プラン例(1F間取図)
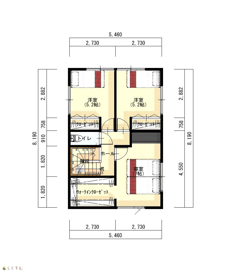
【区画1】建物プラン例(2F間取図)
物件詳細へ戻る
Copyright (C) 株式会社 コモンライフ・コーポレーション. All Rights Reserved.
不動産検索サイト「らくすむ」及び関連サイトに記載の不動産情報は、会員規約に則り、情報提供会社様の責任のもとに発信されております。
不動産の賃借、購入に関しては賃借者、購入者ご自身が情報を確認され、会社企業様から説明を受けられたうえで判断をお願いいたします。
不動産検索サイト「らくすむ」及び関連サイトに記載の不動産情報、写真、デザイン、コンテンツなどの無断転載・転用・複製など禁止します。