売買小千谷市三仏生 【中古一戸建て】  詳細

外観
全景(建物西側・玄関)
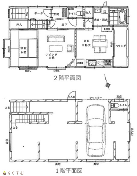
間取り
平面図(1階基礎・物置、2階居宅)
その他の画像
全景(樹木、居宅、鉄骨倉庫)
建物南側
外階段・玄関
DK8帖
リビング8帖
LDK天井(丸太梁の現し)
和室6帖
浴室
トイレ
1階基礎(車庫)
1階基礎(物置)
1階基礎(トイレ)
かまぼこ型倉庫(鉄骨二階建て)
敷地裏からの全景
敷地東側(空地・畑)
前面道路(県道・消雪道路)
敷地全体と建物配置図(概略)
印刷用地図
物件詳細へ戻る
Copyright (C) 株式会社 コモンライフ・コーポレーション. All Rights Reserved.
不動産検索サイト「らくすむ」及び関連サイトに記載の不動産情報は、会員規約に則り、情報提供会社様の責任のもとに発信されております。
不動産の賃借、購入に関しては賃借者、購入者ご自身が情報を確認され、会社企業様から説明を受けられたうえで判断をお願いいたします。
不動産検索サイト「らくすむ」及び関連サイトに記載の不動産情報、写真、デザイン、コンテンツなどの無断転載・転用・複製など禁止します。