
【糸魚川市上刈1丁目中古住宅】 詳細
お気に入り
追加済み
物件画像を詳しく見る
物件概要
-
物件コード
00388-200002
-
物件名
【糸魚川市上刈1丁目中古住宅】
-
交通
駅:北陸新幹線 糸魚川駅から徒歩9分、バス:糸魚川小学校前から徒歩2分
-
所在地
新潟県糸魚川市上刈1丁目4-1
物件へのルート表示
-
物件種別
中古一戸建て
-
構造
木造鉄筋コン
-
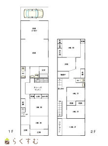
階建
地上3階建
-
建ぺい率/容積率
70%/200%
-
建物面積
247.79㎡
/74.95坪
-
土地面積
241.4㎡
/73.02坪
-
築年月
1996年7月(築29年)
-
入居時期
相談
-
用途地域
第1種住居地域
-
地目
宅地 (現状:建付け地)
-
都市計画
非線引き都市計画区域
-
形状
-
-
道路
糸魚川市道「上刈白馬通線 「分水道線」*消雪P敷設
-
私道
なし
-
その他の制限
-
物件詳細情報
-
所在階/階数
-
-
号室
-
-
販売価格
11,500,000円
-
方位
東
-
間取り
8DK
-
専有面積
-
-
バルコニー面積
-
-
その他面積
-
-
駐車場
-
-
管理費
-
-
修繕積立金
-
-
現況
空家
-
仲介手数料
481,140円
-
利用制限
-
-
学校区
糸魚川小学校(244m)・糸魚川中学校(704m)
-
設備
角地、システムキッチン、3口コンロ、追いだき機能付き、温水洗浄便座、エアコンあり、ルーフバルコニー、都市ガス、上水道、下水道、BS端子、CS
-
取引態様
仲介
-
情報登録日
2025/07/08
-
次回更新予定日
2026/04/17
-
取引条件有効期限
2025/09/08
備考
*建物一部除却する事により駐車場スペース概ね2台分程度確保できます。
その他必要な費用
●所有権移転登記費用 概算25万円程度
●ローン利用の場合の諸経費 各種金融機関による
●物件取得後数カ月で不動産取得税を納税ください。(県税)
●詳細はお問い合わせください。
【物件予約等に関する注意事項】
当社では物件購入申込(予約)に際し以下の点をお願いしております。
①自己資金のみでご購入の場合・・・・残高証明書のご提示
②住宅ローン等利用の方の場合・・・・融資証明書のご提示
③自己資金とローン併用の場合・・・・物件価格以上のいずれかのご提示
*融資審査中においての物件取り置きはご遠慮ください。
*申し込みには本人確認書類・印鑑・住民票・申込金10万円(*契約後売買代金充当)が必要です。
取扱い会社
株式会社 糸魚川不動産
-
TEL
025-552-1115
-
所在地
新潟県糸魚川市中央1-7-4
-
交通
JR北陸新幹線糸魚川駅
-
営業時間
9:00~17:00/定休日:日曜・祝祭日他(年末年始・お盆期間・GW)
-
免許番号
新潟県知事(15)第684号
-
所属団体名
公社 新潟県宅地建物取引協会 上越支部
-
取引態様
仲介
Copyright (C) 株式会社 コモンライフ・コーポレーション. All Rights Reserved.
不動産検索サイト「らくすむ」及び関連サイトに記載の不動産情報は、会員規約に則り、情報提供会社様の責任のもとに発信されております。
不動産の賃借、購入に関しては賃借者、購入者ご自身が情報を確認され、会社企業様から説明を受けられたうえで判断をお願いいたします。
不動産検索サイト「らくすむ」及び関連サイトに記載の不動産情報、写真、デザイン、コンテンツなどの無断転載・転用・複製など禁止します。