
上越市桜町売地 詳細
お気に入り
追加済み
物件画像を詳しく見る

角地で解放感があります
物件概要
上越モールまで800mでお買い物らくらく♪価格相談可
-
物件コード
00377-200007
-
物件名
上越市桜町売地
-
交通
駅:妙高はねうまライン 南高田駅から徒歩44分、バス:桜町入口から徒歩6分
-
所在地
新潟県上越市桜町
物件へのルート表示
-
物件種別
売土地・分譲地
-
物件区分
売土地
-
構造
-
-
階建
-
-
建ぺい率/容積率
70%/200%
-
建物面積
-
-
土地面積
437.88㎡
/132.45坪
-
築年月
-
-
入居時期
随時入居(引き渡し)可
-
用途地域
第1種低層住居専用地域
-
地目
畑 (現状:畑 宅地)
-
都市計画
市街化調整区域
-
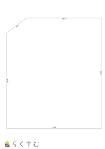
形状
間口 19m × 奥行 19m
-
道路
北東 公道 9.0m 北西 公道 9.0m
-
私道
-
-
その他の制限
景観法/新町今池土地区画整理事業 29条開発許可申請必要(買主負担) 農地法第5条許可申請必要(買主負担) ガス・水道引込み有 浄化槽補助金対象区域
物件詳細情報
-
所在階/階数
-
-
号室
-
-
販売価格
11,880,000円
-
方位
-
-
間取り
-
-
専有面積
-
-
バルコニー面積
-
-
その他面積
-
-
駐車場
-
-
管理費
-
-
修繕積立金
-
-
現況
-
仲介手数料
458,040円
-
利用制限
-
-
学校区
三郷小学校(1,087m)・城西中学校(2,995m)
-
設備
角地、整形地、前道6m以上、更地、閑静な住宅街、所有権、側溝、都市ガス(前面道路)、上水道(前面道路)、都市ガス(宅地内)、上水道(宅地内)、住宅向け
-
取引態様
一般
-
情報登録日
2026/03/31
-
次回更新予定日
2026/04/18
-
取引条件有効期限
2026/04/30
備考
取扱い会社
合同会社エフアセット
Copyright (C) 株式会社 コモンライフ・コーポレーション. All Rights Reserved.
不動産検索サイト「らくすむ」及び関連サイトに記載の不動産情報は、会員規約に則り、情報提供会社様の責任のもとに発信されております。
不動産の賃借、購入に関しては賃借者、購入者ご自身が情報を確認され、会社企業様から説明を受けられたうえで判断をお願いいたします。
不動産検索サイト「らくすむ」及び関連サイトに記載の不動産情報、写真、デザイン、コンテンツなどの無断転載・転用・複製など禁止します。