
西城町 貸家 詳細
お気に入り
追加済み
物件画像を詳しく見る

高田城址公園近くで元店舗の貸家物件!
物件概要
現在賃貸中です。
-
物件コード
00308-200314
-
物件名
西城町 貸家
-
交通
駅:妙高はねうまライン 高田駅から徒歩15分、バス:西城町一丁目から徒歩1分
-
所在地
新潟県上越市西城町1丁目6番3号
物件へのルート表示
-
物件種別
投資物件・その他
-
物件区分
その他
-
構造
木造
-
階建
地上2階建
-
建ぺい率/容積率
60%/200%
-
建物面積
149.6㎡
/45.25坪
-
土地面積
148.98㎡
/45.06坪
-
築年月
1973年9月(築52年)
-
入居時期
随時入居(引き渡し)可
-
用途地域
第2種中高層住居専用地域
-
地目
宅地
-
都市計画
市街化区域
-
形状
-
-
道路
北側15m
-
私道
-
-
その他の制限
-
物件詳細情報
-
所在階/階数
-
-
号室
-
-
販売価格
7,500,000円
-
表面利回り
(満室想定時)
9%
-
満室想定年収
540,000円
(想定月収:
45,000円
)
-
現行利回り
7.2%
-
現行年間年収
540,000円
-
住戸数
1
-
方位
-
-
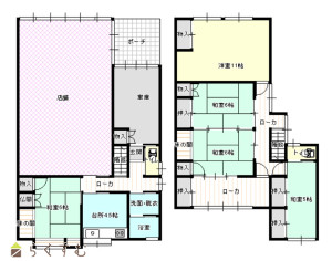
間取り
-
-
専有面積
149.6㎡
/45.25坪
~
149.6㎡
/45.25坪
-
バルコニー面積
-
-
その他面積
-
-
駐車場
敷地内1台
-
管理費
-
-
修繕積立金
-
-
現況
賃貸中
-
仲介手数料
330,000円
-
利用制限
-
-
学校区
大町小学校(773m)・城東中学校(625m)
-
設備
公営水道、都市ガス、下水道
-
取引態様
一般
-
情報登録日
2026/03/07
-
次回更新予定日
2026/06/05
-
取引条件有効期限
2026/05/31
備考
取扱い会社
上越宅地販売株式会社
-
TEL
025-522-3838
-
所在地
新潟県上越市南高田町1-2アサノビル1階
-
交通
妙高はねうまライン 南高田駅 徒歩1分
-
営業時間
9:00~18:30/定休日:毎週水曜日・GW(5/2~5/6)・夏季・・年末年始
-
免許番号
新潟県知事(9)第3372号
-
所属団体名
公社 新潟県宅地建物取引協会 上越支部
-
取引態様
一般
Copyright (C) 株式会社 コモンライフ・コーポレーション. All Rights Reserved.
不動産検索サイト「らくすむ」及び関連サイトに記載の不動産情報は、会員規約に則り、情報提供会社様の責任のもとに発信されております。
不動産の賃借、購入に関しては賃借者、購入者ご自身が情報を確認され、会社企業様から説明を受けられたうえで判断をお願いいたします。
不動産検索サイト「らくすむ」及び関連サイトに記載の不動産情報、写真、デザイン、コンテンツなどの無断転載・転用・複製など禁止します。