
寺町1丁目 高田貸家 詳細
1号室
お気に入り
追加済み
物件画像を詳しく見る

家賃1ヶ月フリーレント☆広々間取でファミリー向け
物件概要
-
賃料
4.5万円/月
-
管理費
なし
-
敷/礼
1ヶ月/
なし
-
間取り
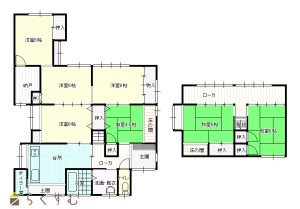
7DK (和室:6畳、6畳、4.5畳) (洋室:6、6、6、6)、DK7
-
広さ
128.1㎡
/38.75坪
-
階建
地上2階建
-
築年数
1989年6月(築36年)
-
種別
アパート・マンション・一戸建て
-
住所
新潟県上越市寺町1丁目2-20
物件へのルート表示
-
交通
駅:妙高はねうまライン 南高田駅から徒歩13分、バス:本町一丁目から徒歩10分
★ペット飼育相談可(小型犬のみ)。
-
物件コード
00308-100414
-
物件名
寺町1丁目 高田貸家
-
交通
駅:妙高はねうまライン 南高田駅から徒歩13分、バス:本町一丁目から徒歩10分
-
所在地
新潟県上越市寺町1丁目2-20
物件へのルート表示
-
物件種別
アパート・マンション・一戸建て
-
総戸数
-
-
構造
木造
-
階建
地上2階建
-
所在階/階数
1階/2階
-
号室
1号室
-
専有面積
128.1㎡
/38.75坪
-
方位
-
-
間取り
7DK (和室:6畳、6畳、4.5畳) (洋室:6、6、6、6)、DK7
-
賃料
4.5万円/月
-
管理費
-
-
礼金
-
-
敷金
1ヶ月
ペット飼育の際は3カ月
-
共益費
-
-
ほか初期費用
-
-
その他諸費用
-
-
更新料
20,000円
3年毎
-
火災(家財)保険
18,000円
2年間
-
駐車場
5,000円
2台 近隣にあり
-
町内費
実費
-
バイク料金
-
-
鍵交換費
-
-
清掃料
-
-
更新事務手数料
-
-
保証区分
保証会社+緊急連絡先
-
保証会社
区分:加入要
保証会社名:CIZ
月額総賃料の77%(契約時)事務手数料1,100円
-
家賃保証金
39,600円
-
連帯保証人
[区分]
不要
-
-
仲介手数料
49,500円
-
手数料負担割合
貸主:-%
借主:100%
-
手数料配分割合
元付:50%
客付:50%
-
築年月
1989年6月(築36年)
-
利用制限
ペット:相談、楽器:不可
-
学校区
高田西小学校(550m)・城西中学校(717m)
-
設備
駐車2台可、バストイレ別、洗面所独立、エアコン、都市ガス、公営水道、下水、洗濯機置場 室内、脱衣所、押入、各居室照明、即入居可、ペット相談可、保証会社要加入
-
入居時期
即入居可
-
取引態様
仲介
-
情報登録日
2026/02/20
-
次回更新予定日
2026/04/18
備考
物件に対し説明有り(敷地内心理的瑕疵あり)。法人で事務所・寮などとして家族以外での申し込みの場合は賃料が55,000円となります。ペット(小型犬)要相談 その際は敷金3カ月。
取扱い会社
上越宅地販売株式会社
Copyright (C) 株式会社 コモンライフ・コーポレーション. All Rights Reserved.
不動産検索サイト「らくすむ」及び関連サイトに記載の不動産情報は、会員規約に則り、情報提供会社様の責任のもとに発信されております。
不動産の賃借、購入に関しては賃借者、購入者ご自身が情報を確認され、会社企業様から説明を受けられたうえで判断をお願いいたします。
不動産検索サイト「らくすむ」及び関連サイトに記載の不動産情報、写真、デザイン、コンテンツなどの無断転載・転用・複製など禁止します。