物件画像を詳しく見る

セーリングなどのマリンスポーツ用具の倉庫としての利用にもオススメです
物件概要
-
賃料
3.3万円/月
-
管理費
なし
-
敷/礼
2ヶ月/
なし
-
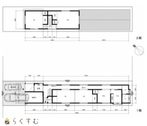
間取り
-
-
広さ
113.83㎡
/34.43坪
-
階建
地上2階建
-
築年数
1976年8月(築49年)
-
種別
倉庫・工場・その他
-
住所
新潟県柏崎市中央町
物件へのルート表示
-
交通
駅:越後線 東柏崎駅から徒歩7分
使用用途相談可能! まずはお気軽にお問い合わせください。 セーリング・サーフボード・釣り用具など、海に近い立地を利用して気軽に利用可能な倉庫として活用はいかがでしょうか♪ マリンスポーツが盛んな柏崎で隠れた物件です♪
-
物件コード
00297-100038
-
物件名
柏崎市中央町 賃貸倉庫 スペース中央町
-
交通
駅:越後線 東柏崎駅から徒歩7分
-
所在地
新潟県柏崎市中央町
物件へのルート表示
-
物件種別
倉庫・工場・その他
-
総戸数
1戸
-
構造
木造
-
階建
地上2階建
-
所在階/階数
-
-
号室
-
-
専有面積
113.83㎡
/34.43坪
-
方位
-
-
間取り
-
-
賃料
3.3万円/月
-
管理費
-
-
礼金
-
-
敷金
2ヶ月
-
共益費
-
-
ほか初期費用
-
-
その他諸費用
-
-
更新料
-
-
火災(家財)保険
プランにより金額が異なります
-
駐車場
普通車1台、軽1台
-
町内費
-
-
バイク料金
-
-
鍵交換費
-
-
清掃料
-
-
更新事務手数料
-
-
保証区分
連帯保証人のみ
-
保証会社
区分:指定なし
-
-
連帯保証人
[区分]
要
-
-
仲介手数料
36,300円
-
手数料負担割合
貸主:-%
借主:-%
-
手数料配分割合
元付:-%
客付:-%
-
築年月
1976年8月(築49年)
-
利用制限
-
-
学校区
柏崎小学校(708m)・第一中学校(573m)
-
設備
即引き渡し、駐車場あり
-
入居時期
即入居可
-
取引態様
仲介
-
情報登録日
2026/03/23
-
次回更新予定日
2026/04/19
備考
【物置として利用】
・保管する物品の内容は契約前に確認要
・消防法上の危険物(第1~6類)の保管、重量物の保管、動物等の飼育は禁止
【事務所として利用】
・トイレ・手洗い等が無い為、家賃を含め応相談
【その他概要】
・1F床:張替済
・電力(引込有)、下水道(排水桝有)
・ガス、上水道(引込無/予定も無)
・トイレ、エアコン使用不可
※セーリングなどマリンスポーツの備品庫としての利用など、使用用途は多彩です
お気軽にお問い合わせください。
取扱い会社
田中不動産株式会社