
池 詳細
お気に入り
追加済み
物件画像を詳しく見る

☆敷地が広々とした田舎暮らし物件です☆
物件概要
-
物件コード
00277-200458
-
物件名
池
-
交通
駅:妙高はねうまライン 上越妙高駅から徒歩72分
-
所在地
新潟県上越市池180
物件へのルート表示
-
物件種別
中古一戸建て
-
構造
木造
-
階建
地上2階建
-
建ぺい率/容積率
70%/200%
-
建物面積
188.72㎡
/57.08坪
-
土地面積
1,439.53㎡
/435.45坪
-
築年月
1971年5月(築54年)
-
入居時期
相談
-
用途地域
無指定
-
地目
宅地 (現状:宅地)
-
都市計画
市街化調整区域
-
形状
間口 31.5m
-
道路
西側約5.8m
-
私道
-
-
その他の制限
-
物件詳細情報
-
所在階/階数
-
-
号室
-
-
販売価格
13,000,000円
-
方位
南
-
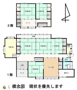
間取り
7DK (和室:6畳、6畳、8畳、8畳、8畳、8畳) (洋室:7)、DK7
-
専有面積
-
-
バルコニー面積
-
-
その他面積
-
-
駐車場
-
-
管理費
-
-
修繕積立金
-
-
現況
空家
-
仲介手数料
495,000円
-
固定資産税
51,370円
年額の金額となります。
-
利用制限
-
-
学校区
上雲寺小学校(1,005m)・雄志中学校(2,076m)
-
設備
駐車3台以上可能、南向き、温水洗浄便座、エアコンあり、LPG、上水道、下水道、田舎暮らし
-
取引態様
一般
-
情報登録日
2025/10/21
-
次回更新予定日
2026/04/17
-
取引条件有効期限
2035/12/31
備考
・敷地435坪!昔ながらの佇まいが魅力的な中古住宅です☆
・敷地内には蔵があり、古き良き雰囲気を倍増してくれます♪
・下水道にも接続されていて衛生的☆
・土地、建物、設備に関しては現状渡しです。
※本体代金に別途諸費用が掛かります。
取扱い会社
有限会社田村家具店
-
TEL
025-523-2438
-
所在地
新潟県上越市稲田4-5-21
-
交通
高田駅
-
営業時間
午前9:00~午後18:00/定休日:水曜日 第1、第3日曜日
-
免許番号
新潟県知事(10)第2792号
-
所属団体名
公社 新潟県宅地建物取引協会 上越支部
-
取引態様
一般
Copyright (C) 株式会社 コモンライフ・コーポレーション. All Rights Reserved.
不動産検索サイト「らくすむ」及び関連サイトに記載の不動産情報は、会員規約に則り、情報提供会社様の責任のもとに発信されております。
不動産の賃借、購入に関しては賃借者、購入者ご自身が情報を確認され、会社企業様から説明を受けられたうえで判断をお願いいたします。
不動産検索サイト「らくすむ」及び関連サイトに記載の不動産情報、写真、デザイン、コンテンツなどの無断転載・転用・複製など禁止します。