売買柏崎市 下田尻 売住宅 詳細
お気に入り


外観

追加

追加

追加

追加

追加

作業所

車庫

追加

追加

追加

追加

追加

追加

物件画像を詳しく見る 360度画像を詳しく見る
インター近くで、部屋数豊富、広い敷地!!
物件概要
  • 物件コード 00251-200003
  • 物件名 柏崎市 下田尻 売住宅
  • 交通 駅:信越線 茨目駅から徒歩17分、バス:下田尻西から徒歩2分
  • 所在地 新潟県柏崎市大字下田尻1758番地 物件へのルート表示
  • 物件種別 中古一戸建て
  • 構造 木造
  • 階建 地上2階建
  • 建ぺい率/容積率 70%/200%
  • 建物面積 215.81㎡ /65.28坪
  • 土地面積 1,023.86㎡ /309.71坪
  • 築年月 1971年6月(築54年)
  • 入居時期 相談
  • 用途地域 無指定
  • 地目 宅地
  • 都市計画 非線引き都市計画区域
  • 形状 -
  • 道路 市道柏崎9-62号線 東側 幅員3.4m 他西側道路
  • 私道 -
  • その他の制限 要セットバック
物件詳細情報
  • 所在階/階数 -
  • 号室 -
  • 販売価格 3,500,000円
  • 方位 指定なし
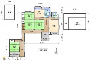
  • 間取り 8LDK (和室:10畳、8畳、8畳、6畳、8畳、6畳、7畳) (洋室:7、4)、車庫(19.83㎡)、作業所(77.68㎡)
  • 専有面積 -
  • バルコニー面積 -
  • その他面積 -
  • 駐車場 -
  • 管理費 -
  • 修繕積立金 -
  • 現況 空家
  • 仲介手数料 330,000円
  • 利用制限 -
  • 学校区 田尻小学校(1,181m)・東中学校(693m)
  • 設備 閑静な住宅街、駐車3台以上可能、南向き、追いだき機能付き、バス1坪以上、都市ガス、上水道、下水道、2世帯向き
  • 取引態様 一般
  • 情報登録日 2026/01/06
  • 次回更新予定日 2026/04/18
  • 取引条件有効期限 2024/12/31
備考
現況有姿での売買となります。
間取りと現況に相違がある場合、現況を優先します。
売主契約不適合責任免責物件となります。
取扱い会社
株式会社 タカノ建築
  • TEL 0257-35-6025
  • 所在地 新潟県柏崎市加納2776-1
  • 交通
  • 営業時間 8:00~18:30/定休日:日曜日・祝日
  • 免許番号 新潟県知事(2)第5462号
  • 所属団体名 公社 新潟県宅地建物取引協会 
  • 取引態様 一般
Copyright (C) 株式会社 コモンライフ・コーポレーション. All Rights Reserved.
不動産検索サイト「らくすむ」及び関連サイトに記載の不動産情報は、会員規約に則り、情報提供会社様の責任のもとに発信されております。
不動産の賃借、購入に関しては賃借者、購入者ご自身が情報を確認され、会社企業様から説明を受けられたうえで判断をお願いいたします。
不動産検索サイト「らくすむ」及び関連サイトに記載の不動産情報、写真、デザイン、コンテンツなどの無断転載・転用・複製など禁止します。