外観イメージ(南西側より) ※外構工事中のため後日掲載予定。
【完成前購入特典】家具セット&カーテンをプレゼント!
物件画像を詳しく見る

《★完成前ご契約特典アリ》 家具、カーテンをプレゼント!勾配天井×間接照明で魅せる快適な住まい
物件概要
2026年5月完成予定!市立劇場、さいわいプラザまで徒歩5分。 子育て世帯にぴったりの暮らしやすい環境です。
-
物件コード
00243-200020
-
物件名
長岡市三和A 新築戸建住宅
-
交通
駅:信越線 宮内駅から徒歩24分、バス:三和町から徒歩4分
-
所在地
新潟県長岡市三和三丁目2番1他9筆の一部
物件へのルート表示
-
物件種別
新築一戸建て
-
構造
木造
-
階建
地上2階建
-
建ぺい率/容積率
60%/200%
-
建物面積
92.68㎡
/28.03坪
-
土地面積
168.4㎡
/50.94坪
-
築年月
2026年5月完成予定
-
入居時期
2026年10月末 予定
-
用途地域
第2種中高層住居専用地域
-
地目
田
-
都市計画
市街化区域
-
形状
-
-
道路
西 8.0m 公道 接面11.5m
-
私道
-
-
その他の制限
-
物件詳細情報
-
所在階/階数
-
-
号室
-
-
販売価格
36,400,000円
-
方位
南
-
間取り
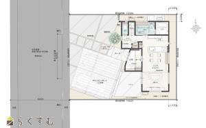
3LDK (洋室:6.1、4.9、4.9)、LDK 16.6、■土地+建物+外構 セットの価格です。
-
専有面積
-
-
バルコニー面積
-
-
その他面積
-
-
駐車場
-
-
管理費
-
-
修繕積立金
-
-
現況
指定なし
-
仲介手数料
なし
-
利用制限
-
-
学校区
宮内小学校(1,200m)・宮内中学校(1,600m)
-
設備
前面道路6m以上、閑静な住宅街、スーパー近く、設計住宅性能評価付き、耐震構造、瑕疵担保保険付き、LDK15畳以上、全室フローリング、駐車場3台以上、TVインターホン、複層ガラス、ディンプルキー、システムキッチン、IHクッキングヒーター、食器洗浄乾燥機、追いだき機能付き、浴室暖房乾燥機、バス1坪以上、温水洗浄便座、シャワー付き洗面台、エアコン、24時間換気システム、オール電化、省エネ給湯、高気密高断熱住宅、ウッドデッキ・テラス、都市ガス、上水道、下水道、電気、ウォークインクローゼット、床下収納、照明器具付き
-
取引態様
売主
-
情報登録日
2026/03/09
-
次回更新予定日
2026/04/17
-
取引条件有効期限
2026/09/30
備考
※引渡し時期について:完成後、しばらくの間、見学可能な展示場として公開予定です。引渡しは展示期間終了後(2026年10月末以降~)となります。
~建売のポイント~
(1.住みやすさ)
人気の宮内小学校エリア!静かな住宅街で、スーパーや商業施設等、子育てに嬉しい施設が集結。
日常や週末の買い物にとっても便利な生活環境。大きな公園も多く、子育てファミリーにおすすめです。
(2.交通環境)
車での出入りもスムーズ!歩道付き、8m幅の前面道路&駐車スペース3台分確保。
(3.物件の特長)
・木目柄の勾配天井を活かした、開放感あふれるリビング空間。
間接照明が、空間に上品な雰囲気と心地よさをプラス。
・30坪の家に、オシャレな造作TVボードや造作洗面台、天候に左右されないランドリールームなど、暮らしを便利にする設備が充実。
・ゆったりリラックス♪おうちアウトドア気分を満喫できる広いテラス。
・シューズクローク、パントリー、ウォークインクローゼットなど収納も豊富!
~ステーツの魅力~
◆ 最高ランク 「耐震等級3」 地震に強い家
◆ ZEHを超える高断熱性能「HEAT20 G1グレード」以上の高性能
◆ 「構造・雨漏り最長60年保証&無償定期点検」・「設備10年保証」など、建てた後も安心の住まい
-----■「長岡市三和A」建売 月々の返済例-----
(2025年9月現在)
---------------
[月々の返済額]86,366円
※ボーナス払いなしの場合
---------------
■諸条件
[価 格] 3,640万円
[頭 金] 100万円
[借入金] 3,540万円
[金利タイプ]変動金利
[金 利] 0.810%
[借入年数] 40年
※ローン諸費用別途
取扱い会社
株式会社 ステーツ