売買柏崎市関町 収益リノベーション戸建て 詳細
お気に入り


内装リフォーム済!車庫付きの収益戸建です

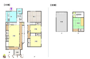
本棟+別棟

【リフォーム後内装写真】1階洋室

【リフォーム後内装写真】1階洋室

【リフォーム後内装写真】ダイニングキッチン

【リフォーム後内装写真】洗面台

【リフォーム後内装写真】浴室

【リフォーム後内装写真】トイレ

【リフォーム後内装写真】2階洋室

車庫

前面道路

物件画像を詳しく見る
【利回り12%!土地積算98%のリノベーション戸建】◆設備を一新したファミリー物件◆国道8号線至近、柏崎駅まで車約4分で利便性良好◆賃貸保証会社契約済で安心
物件概要
  • 物件コード 00239-200440
  • 物件名 柏崎市関町 収益リノベーション戸建て
  • 交通 駅:越後線 柏崎駅から徒歩13分、バス:宮場町から徒歩5分
  • 所在地 新潟県柏崎市関町6-5アンジュ枇杷島 物件へのルート表示
  • 物件種別 投資物件・その他
  • 物件区分 その他
  • 構造 木造
  • 階建 地上2階建
  • 建ぺい率/容積率 60%/200%
  • 建物面積 101.45㎡ /30.68坪
  • 土地面積 261.01㎡ /78.95坪
  • 築年月 1976年10月(築49年)
  • 入居時期 随時入居(引き渡し)可
  • 用途地域 第1種低層住居専用地域
  • 地目 宅地
  • 都市計画 非線引き都市計画区域
  • 形状 -
  • 道路 北側3.8m 42条2項道路
  • 私道 -
  • その他の制限 建築基準法22条区域内/斜線制限(道路・隣地) /日影制限
物件詳細情報
  • 所在階/階数 -
  • 号室 -
  • 販売価格 6,200,000円
  • 表面利回り
    (満室想定時)
    12%
  • 満室想定年収 744,000円 (想定月収: 62,000円 )
  • 現行利回り 12%
  • 現行年間年収 744,000円
  • 住戸数 -
  • 方位 -
  • 間取り 3DKS
  • 専有面積 -
  • バルコニー面積 -
  • その他面積 -
  • 駐車場 2~3台
  • 管理費 6,000円
  • 修繕積立金 -
  • 現況 賃貸中
  • 仲介手数料 330,000円
  • 利用制限 ペット:可
  • 学校区 枇杷島小学校(220m)・鏡が沖中学校(1,200m)
  • 設備 駐車場(近隣含む)、公営水道、都市ガス、下水道
  • 取引態様 一般
  • 情報登録日 2025/12/22
  • 次回更新予定日 2026/04/19
  • 取引条件有効期限 2026/12/31
備考
※オーナーチェンジ物件※
・現在入居中のため現地見学は不可

■周辺のアパートは満室!賃貸需要の高いエリア
■倉庫(車庫+1室)付き
■固定資産税路線価:23,700円
■土地評価額:6,075,994円
■建物(本棟)評価額:1,466、288円
■建物(車庫)評価額:271,820円

【売買条件】
・境界非明示
・車庫は未登記のまま引渡し

【2024年2月 下記修繕・新設】
・お湯配管
・追い炊き配管
・給湯器
・温水洗浄暖房便座
・システムキッチン
・独立洗面台
・浴槽、鏡、混合水栓、換気扇、シャワーヘッド
・風呂バスナフローレ
・照明器具
・エアコン3基
・モニター付きインターホン
取扱い会社
新潟土地建物販売センター 株式会社
  • TEL 0258-89-8245
  • 所在地 新潟県長岡市台町1-7-331階
  • 交通 長岡駅
  • 営業時間 9:00~18:00/定休日:なし
  • 免許番号 新潟県知事(3)第5151号
  • 所属団体名 公社 新潟県宅地建物取引協会 新潟支部
  • 取引態様 一般
Copyright (C) 株式会社 コモンライフ・コーポレーション. All Rights Reserved.
不動産検索サイト「らくすむ」及び関連サイトに記載の不動産情報は、会員規約に則り、情報提供会社様の責任のもとに発信されております。
不動産の賃借、購入に関しては賃借者、購入者ご自身が情報を確認され、会社企業様から説明を受けられたうえで判断をお願いいたします。
不動産検索サイト「らくすむ」及び関連サイトに記載の不動産情報、写真、デザイン、コンテンツなどの無断転載・転用・複製など禁止します。