
柏崎市安田 売工場(食品工業) 詳細
お気に入り
追加済み
物件画像を詳しく見る

売工場(食品工場)すぐ使用できます。
物件概要
調理用什器一式含みます。
-
物件コード
00227-200075
-
物件名
柏崎市安田 売工場(食品工業)
-
交通
駅:信越線 安田駅から徒歩28分、バス:平井から徒歩3分
-
所在地
新潟県柏崎市安田4112-1
物件へのルート表示
-
物件種別
投資物件・その他
-
物件区分
その他
-
構造
鉄骨
-
階建
地上1階建
-
建ぺい率/容積率
70%/200%
-
建物面積
-
-
土地面積
7,873.98㎡
/2,381.87坪
-
築年月
1974年4月(築52年)
-
入居時期
随時入居(引き渡し)可
-
用途地域
無指定
-
地目
宅地 (現状:宅地)
-
都市計画
非線引き都市計画区域
-
形状
-
-
道路
柏崎市道
-
私道
-
-
その他の制限
-
物件詳細情報
-
所在階/階数
-
-
号室
-
-
販売価格
98,000,000円
-
表面利回り
(満室想定時)
-
-
満室想定年収
-
(想定月収:
-
)
-
現行利回り
-
-
現行年間年収
-
-
住戸数
-
-
方位
-
-
間取り
-
-
専有面積
-
-
バルコニー面積
-
-
その他面積
-
-
駐車場
-
-
管理費
-
-
修繕積立金
-
-
現況
空家
-
仲介手数料
3,300,000円
-
利用制限
-
-
学校区
田尻小学校(806m)・東中学校(563m)
-
設備
南側道路面す、公営水道、LPG、下水道、事業向け
-
取引態様
一般
-
情報登録日
2024/09/17
-
次回更新予定日
2026/06/05
-
取引条件有効期限
2024/12/17
備考
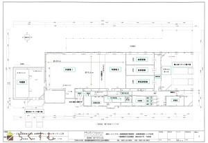
売工場(食品工場)冷凍加工食品
令和6年7月末まで稼働。すぐ使用できます。
全館空調、プレハブ冷凍庫、パスツルー冷蔵庫、エアカーテン、オゾン殺菌、調理用什器一式含みます。
駐車20台以上可能。
別棟の作業場あり。(空調有)
取扱い会社
リメイク株式会社
Copyright (C) 株式会社 コモンライフ・コーポレーション. All Rights Reserved.
不動産検索サイト「らくすむ」及び関連サイトに記載の不動産情報は、会員規約に則り、情報提供会社様の責任のもとに発信されております。
不動産の賃借、購入に関しては賃借者、購入者ご自身が情報を確認され、会社企業様から説明を受けられたうえで判断をお願いいたします。
不動産検索サイト「らくすむ」及び関連サイトに記載の不動産情報、写真、デザイン、コンテンツなどの無断転載・転用・複製など禁止します。